Nyomtatás
|
Amerikai konyhás: Igen; Kertkapcsolatos: Igen;
|
||
Eladó Budapest, XXIII. kerület óváros |
ID szám: 84162 | |
|
Eladó Budapest, XXIII. kerület óváros
ID szám: 84162
Amerikai konyhás: Igen; Kertkapcsolatos: Igen;
Ajánlat
Eladó
Típus
Újépítésű
Épület jellege
Új családi ház
Ár
77.50 MFt
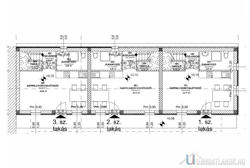
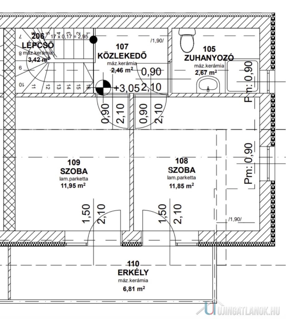
Ingatlan adatai
| Épült | 2025 |
|---|---|
| Kerület | Budapest XXIII. kerület |
| Övezet | Soroksár |
| Komfort | Összkomfort |
| Épületszintek tetőtér pinceszint földszint |
1 emelet
|
| Lift |
|
| Hasznos alapterület | 64 nm |
| Telek területe | 319 nm |
| Lakáshoz tartozó kert | 319 nm |
| Erkély területe | 7 nm |
| Terasz területe | 13 nm |
| Egész szobák száma | 3 db |
| Parkolás | Udvaron-felszíni beálló |
| Emelet egyszerű emelet tetőtér tetőtéri kétszintes |
Nincs adat
|
Nagyításhoz kattintson a képre
Az Ön üzletkötője:
Pakot Judit
+36-30-377-5727


