Nyomtatás
Amerikai konyhás: Igen; Kertkapcsolatos: Igen;
|
Eladó családi ház Budapest, X. kerület Kovakő utca |
ID szám: 85208 |
|
Az Ön üzletkötője:
 Hallai Mónika
 +36-30-649-5546
|
Főbb adatok:
| Ajánlat |
Eladó |
| Típus |
Újszerű |
| Jelleg |
Új családi ház |
| Ár |
190 MFt |
|
Ingatlan adatai
| Épült |
2026 |
| Kerület |
Budapest X. kerület |
| Komfort |
Dupla komfort |
|
Épületszintek
|
2 emelet |
| Lift |
nincs |
| Hasznos alapterület |
178 nm |
| Telek területe |
409 nm |
| Lakáshoz tartozó kert |
409 nm |
| Erkély területe |
8 nm |
| Terasz területe |
5 nm |
| Egész szobák száma |
5 db |
| Parkolás |
Teremgarázs-garázs |
| Emelet |
Nincs adat + Egyszerű emelet |
|
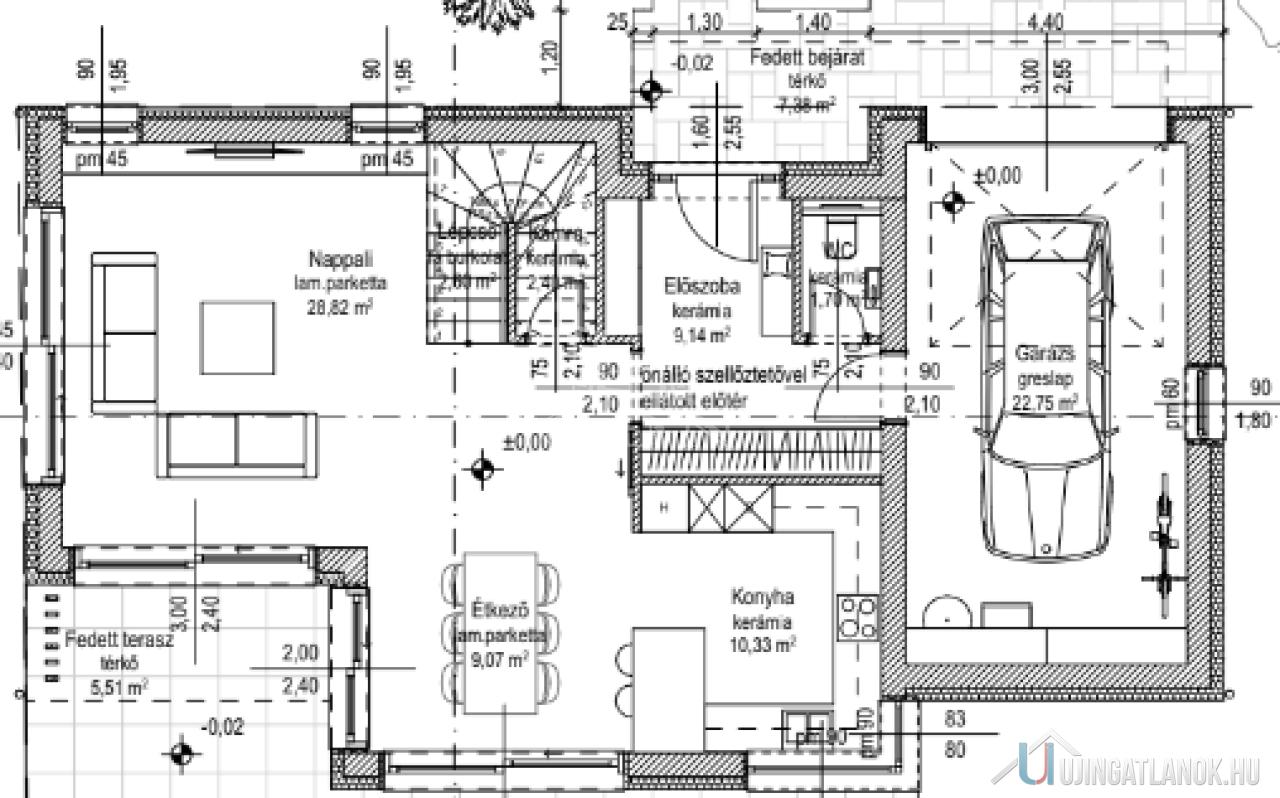
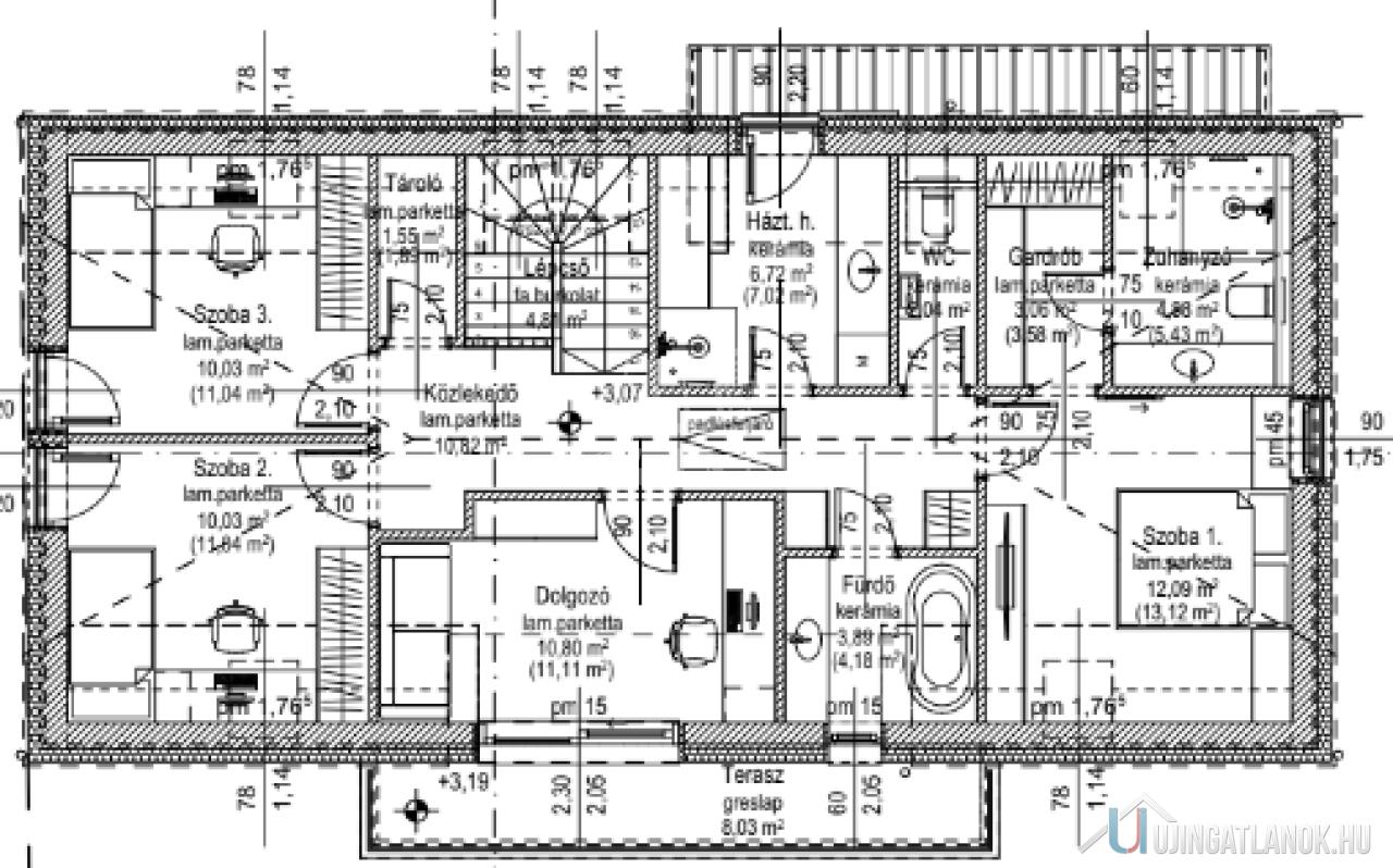
Ingatlan bemutatása
Eladó családi ház Budapest X. kerületében, a Panka közben, csendes, kertvárosi környezetben, magas műszaki tartalommal.
A nettó 145 m2 alapterületű otthonhoz 22,75 m2 garázs tartozik.
Önálló 409 m2-es telek!
Az ingatlan korszerű, időtálló szerkezetekkel épül: fő falazata 30 cm vastag POROTHERM 30 N+F téglából készül, a homlokzaton 15 cm vastag grafitos hőszigeteléssel. A lábazati részen XPS, míg a vasbeton szerkezetek külső oldalán kiegészítő EPS hőszigetelés biztosítja a kiváló energiahatékonyságot. A belső válaszfalak 10 cm vastag kerámia falazóelemekből épülnek.
A tető Terrán Zenit Max cserépfedést kap elegáns Moon szürke színben. A nyílászárók korszerű, háromrétegű hőszigetelt üvegezésű, fenyő színű műanyag szerkezetek, többpontos biztonsági bejárati ajtóval.
A burkolatok igényes kialakításúak: a hálószobákban laminált parketta, míg a vizes helyiségekben kerámia járólap és csempe készül. A külső terek is rendezettek, a gépkocsi beálló és a járdák térkő burkolatot kapnak.
A gépészet modern és energiatakarékos: levegő–levegő rendszerű hőszivattyú biztosítja a mennyezeti hűtés-fűtést, amelyet a nappali szinten padlófűtés egészít ki a maximális komfort érdekében.
Ez az ingatlan ideális választás mindazok számára, akik minőségi kivitelezésű, alacsony fenntartású, modern otthont keresnek a főváros egyik nyugodt részén.
ID: 394708
|
|
Eladó családi ház Budapest, X. kerület Kovakő utca
ID szám: 85208
Amerikai konyhás: Igen; Kertkapcsolatos: Igen;
Ajánlat
Eladó
Típus
Újszerű
Épület jellege
Új családi ház
Ár
190 MFt
Ingatlan adatai
| Épült |
2026 |
| Kerület |
Budapest X. kerület |
| Komfort |
Dupla komfort |
|
Épületszintek
tetőtér
pinceszint
földszint
|
2 emelet
|
| Lift |
|
| Hasznos alapterület |
178 nm |
| Telek területe |
409 nm |
| Lakáshoz tartozó kert |
409 nm |
| Erkély területe |
8 nm |
| Terasz területe |
5 nm |
| Egész szobák száma |
5 db |
| Parkolás |
Teremgarázs-garázs |
| Emelet
egyszerű emelet
tetőtér
tetőtéri kétszintes
|
Nincs adat
|
Ingatlan bemutatása
Eladó családi ház Budapest X. kerületében, a Panka közben, csendes, kertvárosi környezetben, magas műszaki tartalommal.
A nettó 145 m2 alapterületű otthonhoz 22,75 m2 garázs tartozik.
Önálló 409 m2-es telek!
Az ingatlan korszerű, időtálló szerkezetekkel épül: fő falazata 30 cm vastag POROTHERM 30 N+F téglából készül, a homlokzaton 15 cm vastag grafitos hőszigeteléssel. A lábazati részen XPS, míg a vasbeton szerkezetek külső oldalán kiegészítő EPS hőszigetelés biztosítja a kiváló energiahatékonyságot. A belső válaszfalak 10 cm vastag kerámia falazóelemekből épülnek.
A tető Terrán Zenit Max cserépfedést kap elegáns Moon szürke színben. A nyílászárók korszerű, háromrétegű hőszigetelt üvegezésű, fenyő színű műanyag szerkezetek, többpontos biztonsági bejárati ajtóval.
A burkolatok igényes kialakításúak: a hálószobákban laminált parketta, míg a vizes helyiségekben kerámia járólap és csempe készül. A külső terek is rendezettek, a gépkocsi beálló és a járdák térkő burkolatot kapnak.
A gépészet modern és energiatakarékos: levegő–levegő rendszerű hőszivattyú biztosítja a mennyezeti hűtés-fűtést, amelyet a nappali szinten padlófűtés egészít ki a maximális komfort érdekében.
Ez az ingatlan ideális választás mindazok számára, akik minőségi kivitelezésű, alacsony fenntartású, modern otthont keresnek a főváros egyik nyugodt részén.
ID: 394708