Nyomtatás
|
Amerikai konyhás: Nem; Kertkapcsolatos: Igen;
|
||
Eladó családi ház Budapest, X. kerület központi elhelyezkedés mellett |
ID szám: 85198 | |
|
Eladó családi ház Budapest, X. kerület központi elhelyezkedés mellett
ID szám: 85198
Amerikai konyhás: Nem; Kertkapcsolatos: Igen;
Ajánlat
Eladó
Típus
Újszerű
Épület jellege
Új családi ház
Ár
129.90 MFt
Ingatlan adatai
| Épült | 2024 |
|---|---|
| Kerület | Budapest X. kerület |
| Komfort | Összkomfort |
| Épületszintek tetőtér pinceszint földszint |
1 emelet
|
| Lift |
|
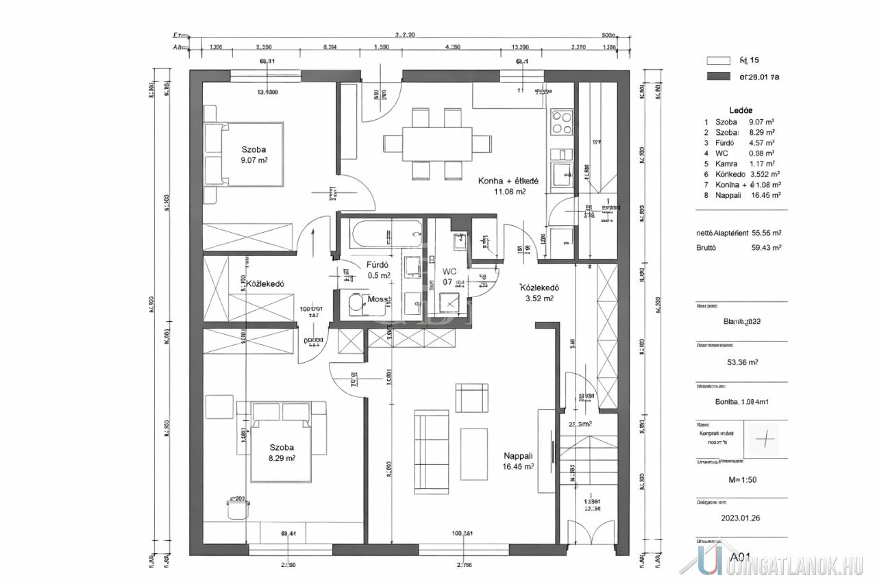
| Hasznos alapterület | 110 nm |
| Telek területe | 40 nm |
| Lakáshoz tartozó kert | 40 nm |
| Fűtési mód | Cirkófűtés |
| Egész szobák száma | 3 db |
| Félszobák száma | 1 db |
| Emelet egyszerű emelet tetőtér tetőtéri kétszintes |
Nincs adat
|
Nagyításhoz kattintson a képre
Az Ön üzletkötője:
Balogh Csaba
+36-20-310-4234


