Nyomtatás
Amerikai konyhás: Igen; Kertkapcsolatos: Igen;
|
Eladó családi ház Budapest, XVIII. kerület Alacskai út |
ID szám: 85111 |
|
Az Ön üzletkötője:
 Gombár Renáta
 +36-70-603-3288
|
Főbb adatok:
| Ajánlat |
Eladó |
| Típus |
Újszerű |
| Jelleg |
Új családi ház |
| Ár |
142 MFt |
|
Ingatlan adatai
| Épült |
2025 |
| Kerület |
Budapest XVIII. kerület |
| Övezet |
Almáskert |
| Komfort |
Dupla komfort |
| Fűtési mód |
Egyéb |
|
Épületszintek
|
2 emelet |
| Lift |
nincs |
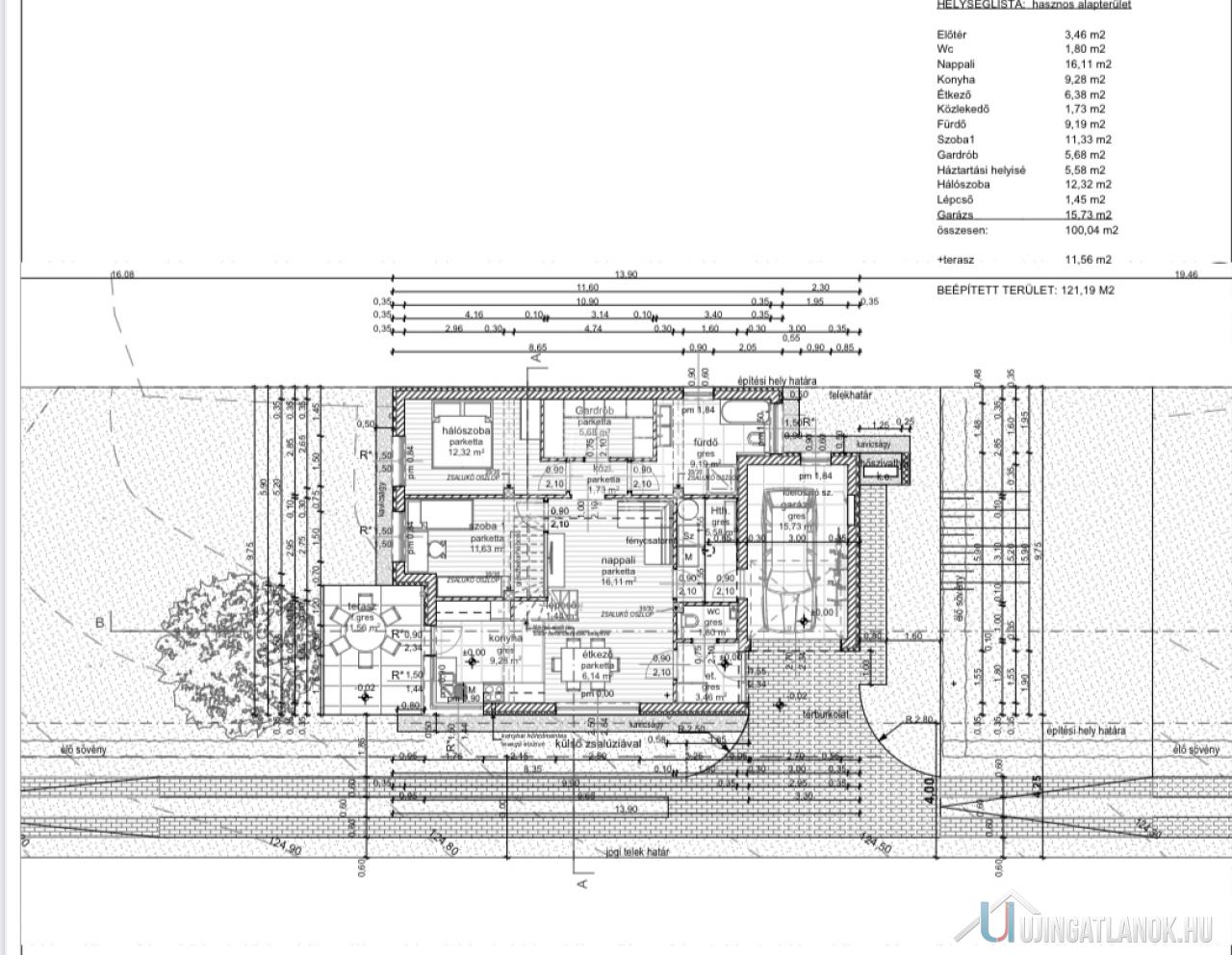
| Hasznos alapterület |
131 nm |
| Telek területe |
400 nm |
| Lakáshoz tartozó kert |
400 nm |
| Erkély területe |
10 nm |
| Terasz területe |
16 nm |
| Fűtési mód |
Egyéb |
| Egész szobák száma |
4 db |
| Parkolás |
Teremgarázs-garázs |
| Emelet |
Nincs adat + Egyszerű emelet |
|
Ingatlan bemutatása
Almáskert Villa Park – Új építésű luxus családi házak a XVIII. kerület egyik legkedveltebb részén!
Fedezze fel Budapest egyik legnyugodtabb, családbarát övezetét az Almáskertben, ahol három különálló, új építésű, modern családi ház várja leendő tulajdonosait!
Mit kínálunk?
✅ Önálló, belső kétszintes házak (földszint + emelet)
✅ Nappali + 3 hálószoba
✅ 3 mellékhelyiség, kádas-zuhanyzós, dupla mosdós fürdőszoba
✅ Tágas gardrób, tetőterasz, saját parkosított kert
✅ Fűtött garázs elektromos, szekcionált kapuval
Minőség kompromisszumok nélkül!
Az otthonok a legkorszerűbb anyagokból készülnek:
25 cm-es extra hőszigetelő Ytong falazat
10 cm grafitos dryvit szigetelés
3 rétegű antracit nyílászárók, elektromos alumínium redőnyök
20 cm födémszigetelés, időtálló cserépfedés
Energiahatékony és jövőálló otthon:
Hőszivattyús fűtés és hűtés (H-tarifa)
Fan-coil és padlófűtés minden helyiségben
Előkészített napelemrendszer és elektromos autótöltő
Rugalmas kialakítás:
A burkolatok, szaniterek, beltéri ajtók egyedi igény szerint választhatók
A fürdőszobákat bútorozva adjuk át
Egyedi módosítások még kivitelezhetők az építkezés előrehaladásától függően
Ár: 142.000.000 Ft – kulcsrakész állapotban!
Babaváró, CSOK és kamattámogatott hitel igénybe vehető
Ügyvédi költséget az építtető/beruházó átvállalja
Építkezés látogatható előre egyeztetett időpontban
Ne maradjon le róla!
Hívjon bizalommal a hét bármely napján, és ismerje meg álmai otthonát személyesen!
|
|
Eladó családi ház Budapest, XVIII. kerület Alacskai út
ID szám: 85111
Amerikai konyhás: Igen; Kertkapcsolatos: Igen;
Ajánlat
Eladó
Típus
Újszerű
Épület jellege
Új családi ház
Ár
142 MFt
Ingatlan adatai
| Épült |
2025 |
| Kerület |
Budapest XVIII. kerület |
| Övezet |
Almáskert |
| Komfort |
Dupla komfort |
|
Épületszintek
tetőtér
pinceszint
földszint
|
2 emelet
|
| Lift |
|
| Hasznos alapterület |
131 nm |
| Telek területe |
400 nm |
| Lakáshoz tartozó kert |
400 nm |
| Erkély területe |
10 nm |
| Terasz területe |
16 nm |
| Fűtési mód |
Egyéb |
| Egész szobák száma |
4 db |
| Parkolás |
Teremgarázs-garázs |
| Emelet
egyszerű emelet
tetőtér
tetőtéri kétszintes
|
Nincs adat
|
Ingatlan bemutatása
Almáskert Villa Park – Új építésű luxus családi házak a XVIII. kerület egyik legkedveltebb részén!
Fedezze fel Budapest egyik legnyugodtabb, családbarát övezetét az Almáskertben, ahol három különálló, új építésű, modern családi ház várja leendő tulajdonosait!
Mit kínálunk?
✅ Önálló, belső kétszintes házak (földszint + emelet)
✅ Nappali + 3 hálószoba
✅ 3 mellékhelyiség, kádas-zuhanyzós, dupla mosdós fürdőszoba
✅ Tágas gardrób, tetőterasz, saját parkosított kert
✅ Fűtött garázs elektromos, szekcionált kapuval
Minőség kompromisszumok nélkül!
Az otthonok a legkorszerűbb anyagokból készülnek:
25 cm-es extra hőszigetelő Ytong falazat
10 cm grafitos dryvit szigetelés
3 rétegű antracit nyílászárók, elektromos alumínium redőnyök
20 cm födémszigetelés, időtálló cserépfedés
Energiahatékony és jövőálló otthon:
Hőszivattyús fűtés és hűtés (H-tarifa)
Fan-coil és padlófűtés minden helyiségben
Előkészített napelemrendszer és elektromos autótöltő
Rugalmas kialakítás:
A burkolatok, szaniterek, beltéri ajtók egyedi igény szerint választhatók
A fürdőszobákat bútorozva adjuk át
Egyedi módosítások még kivitelezhetők az építkezés előrehaladásától függően
Ár: 142.000.000 Ft – kulcsrakész állapotban!
Babaváró, CSOK és kamattámogatott hitel igénybe vehető
Ügyvédi költséget az építtető/beruházó átvállalja
Építkezés látogatható előre egyeztetett időpontban
Ne maradjon le róla!
Hívjon bizalommal a hét bármely napján, és ismerje meg álmai otthonát személyesen!