Nyomtatás
Amerikai konyhás: Igen; Kertkapcsolatos: Igen;

Eladó családi ház Érd Érd Parkváros határán

ID szám: 85165

Az Ön üzletkötője:

Forster Tamás
+36-30-887-7351

Főbb adatok:

Ajánlat Eladó
Típus Újépítésű
Jelleg Új családi ház
Ár 120 MFt

Ingatlan adatai

Épült 2026
Megye Pest megye
Város Érd
Komfort Összkomfort
Épületszintek 1 emelet
Lift nincs
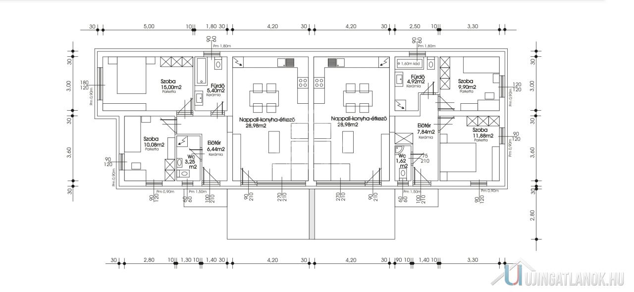
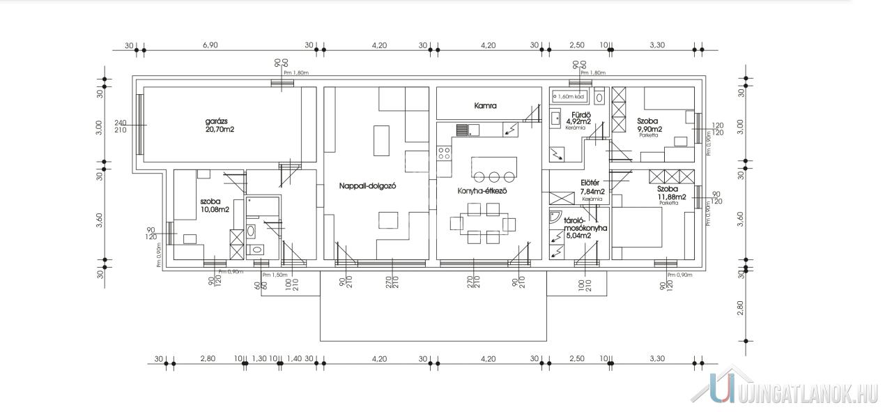
Hasznos alapterület 135 nm
Telek területe 512 nm
Lakáshoz tartozó kert 512 nm
Egész szobák száma 4 db
Parkolás Teremgarázs-garázs
Emelet Nincs adat + Egyszerű emelet

Ingatlan bemutatása

Ez a ház nem új építés, hanem a holnap otthona: A kulcsot fordítod, és egyszerre nyílik ki a tér, a kényelem és a lehetőségek kapuja. Ez a 115 m²-es családi ház egy 512 m²-es telekre épül, ahol a nappali, a hálószobák és a kert együtt teremtenek élhető, harmonikus világot. Nem az ígéret, hanem a valóság határozza meg az otthon minden részletét. Minden négyzetméter tudatos döntés: Három jól szeparált szoba biztosít privát teret minden családtag számára, miközben a nappali–étkező–konyha hármasa természetes központként működik. A WC és fürdő rugalmas kialakítása lehetővé teszi, hogy zuhanyzó vagy kád szerint alakítsd a teret, a garázs pedig nem csupán parkolást, hanem tárolást is ad. A nyugati tájolás és a 2,6 m-es belmagasság világos, levegős atmoszférát biztosít, ahol minden pillanat élménnyé válik. Technika, ami a jövőt szolgálja: A hőszivattyús padlófűtés és hőtároló bojler gondoskodik a kellemes, egyenletes hőérzetről alacsony költségek mellett, az energiatakarékos melegvíz-használat és a 15 cm homlokzati szigetelés pedig a fenntartható, hosszú távú rezsit garantálja. A korszerű műanyag nyílászárók 3 rétegű üvegezéssel, a cseréptető és a könnyűszerkezetes födém 25 cm kőzetgyapot szigeteléssel együtt alkotják a stabil, modern épületet. A jövőre is gondolva 4 kWp napelem telepítésére is van lehetőség. Tér, ami élni hív: A hatalmas terasz és a tágas telek privát zónát kínál, ahol a család, a barátok vagy akár a csendes pihenés mind egyformán helyet kap. Itt minden nap különleges, minden pillanat számít, és a hétköznapok is izgalmassá válhatnak. Személyre szabott kulcsrakész otthon: A burkolatok, ajtók és kiegészítők a vételár keretein belül szabadon választhatók, így az otthonod már a kezdetektől a te stílusodra formálható. Kényelmesen kettős élvezet: a terek úgy alakíthatók, hogy két generáció is a maga tempójában élvezhesse a ház minden zugát Átadás várhatóan 2026. Nem egy kész házat kínálok, hanem egy otthont, ami még rólad szólhat. A beruházás mögött egy stabil, sok referenciával rendelkező kivitelező áll, aki kiemelt minőségben dolgozik. A jelenlegi építési fázis lehetőséget ad arra, hogy az új tulajdonos még saját igényei szerint alakítsa a tereket és részleteket. Az átadás ütemezése rugalmas, a kivitelezés előrehaladásától és az értékesítés folyamatától függően alakul. Ha a jövőt szeretnéd ma élni, ez a ház kész arra, hogy minden napot élménnyé varázsoljon.

Eladó családi ház Érd Érd Parkváros határán

ID szám: 85165

Amerikai konyhás: Igen; Kertkapcsolatos: Igen;

Ajánlat

Eladó

Típus

Újépítésű

Épület jellege

Új családi ház

Ár

120 MFt

Ingatlan adatai

Épült 2026
Megye Pest megye
Város Érd
Komfort Összkomfort
Épületszintek tetőtér pinceszint földszint 1 emelet nincs nincs nincs
Lift nincs
Hasznos alapterület 135 nm
Telek területe 512 nm
Lakáshoz tartozó kert 512 nm
Egész szobák száma 4 db
Parkolás Teremgarázs-garázs
Emelet egyszerű emelet tetőtér tetőtéri kétszintes Nincs adat van nincs nincs
Nagyításhoz kattintson a képre

Az Ön üzletkötője:

Forster Tamás
+36-30-887-7351
Üzenet az üzletkötőnek Ingatlan ajánlása Nyomtatási kép
Megosztás Facebookon Megosztás Twitteren

Ingatlan bemutatása

Ez a ház nem új építés, hanem a holnap otthona: A kulcsot fordítod, és egyszerre nyílik ki a tér, a kényelem és a lehetőségek kapuja. Ez a 115 m²-es családi ház egy 512 m²-es telekre épül, ahol a nappali, a hálószobák és a kert együtt teremtenek élhető, harmonikus világot. Nem az ígéret, hanem a valóság határozza meg az otthon minden részletét. Minden négyzetméter tudatos döntés: Három jól szeparált szoba biztosít privát teret minden családtag számára, miközben a nappali–étkező–konyha hármasa természetes központként működik. A WC és fürdő rugalmas kialakítása lehetővé teszi, hogy zuhanyzó vagy kád szerint alakítsd a teret, a garázs pedig nem csupán parkolást, hanem tárolást is ad. A nyugati tájolás és a 2,6 m-es belmagasság világos, levegős atmoszférát biztosít, ahol minden pillanat élménnyé válik. Technika, ami a jövőt szolgálja: A hőszivattyús padlófűtés és hőtároló bojler gondoskodik a kellemes, egyenletes hőérzetről alacsony költségek mellett, az energiatakarékos melegvíz-használat és a 15 cm homlokzati szigetelés pedig a fenntartható, hosszú távú rezsit garantálja. A korszerű műanyag nyílászárók 3 rétegű üvegezéssel, a cseréptető és a könnyűszerkezetes födém 25 cm kőzetgyapot szigeteléssel együtt alkotják a stabil, modern épületet. A jövőre is gondolva 4 kWp napelem telepítésére is van lehetőség. Tér, ami élni hív: A hatalmas terasz és a tágas telek privát zónát kínál, ahol a család, a barátok vagy akár a csendes pihenés mind egyformán helyet kap. Itt minden nap különleges, minden pillanat számít, és a hétköznapok is izgalmassá válhatnak. Személyre szabott kulcsrakész otthon: A burkolatok, ajtók és kiegészítők a vételár keretein belül szabadon választhatók, így az otthonod már a kezdetektől a te stílusodra formálható. Kényelmesen kettős élvezet: a terek úgy alakíthatók, hogy két generáció is a maga tempójában élvezhesse a ház minden zugát Átadás várhatóan 2026. Nem egy kész házat kínálok, hanem egy otthont, ami még rólad szólhat. A beruházás mögött egy stabil, sok referenciával rendelkező kivitelező áll, aki kiemelt minőségben dolgozik. A jelenlegi építési fázis lehetőséget ad arra, hogy az új tulajdonos még saját igényei szerint alakítsa a tereket és részleteket. Az átadás ütemezése rugalmas, a kivitelezés előrehaladásától és az értékesítés folyamatától függően alakul. Ha a jövőt szeretnéd ma élni, ez a ház kész arra, hogy minden napot élménnyé varázsoljon.

Megosztás Facebookon Megosztás Twitteren
www.ujingatlanok.hu - QR kód

Linkajánló

 

LinkBank