Nyomtatás
Amerikai konyhás: Nem; Kertkapcsolatos: Igen;

Eladó családi ház Erdőkertes Szőlősor utca

ID szám: 85041

Az Ön üzletkötője:

Ludas Judit
+36-30-960-7853

Főbb adatok:

Ajánlat Eladó
Típus Újszerű
Jelleg Új családi ház
Ár 107 MFt

Ingatlan adatai

Épült 2018
Megye Pest megye
Város Erdőkertes
Komfort Dupla komfort
Fűtési mód Cirkófűtés
Épületszintek 1 emelet
Lift nincs
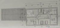
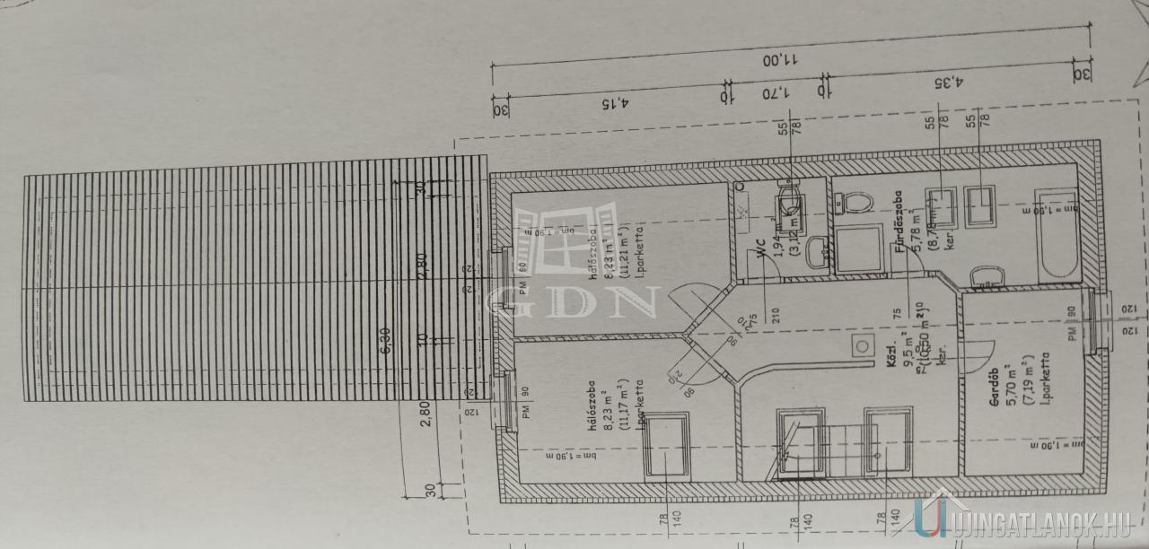
Hasznos alapterület 95 nm
Telek területe 470 nm
Lakáshoz tartozó kert 470 nm
Terasz területe 20 nm
Fűtési mód Cirkófűtés
Egész szobák száma 4 db
Parkolás Udvaron-felszíni beálló
Emelet Nincs adat + Egyszerű emelet

Ingatlan bemutatása

Erdőkertes kedvelt részén, a Szőlősor utcában 2018-ban, 465 nm-es telken épült, újszerű önálló családi ház eladó, szép gondozott kerttel, melléképülettel. Az ingatlan két szinten 94 nm hasznos lakótérrel rendelkezik, konyha-ebédlő - nappali+ 3 hálószoba elosztású, dupla komfortos. Kényelmes, világos, gépesített konyhájában öröm a főzés., a hozzá kapcsolódó ebédlőben pedig a nagy családi összejöveteleken is kényelmesen el lehet férni. Jól átgondolt elosztás, kiváló fényviszonyok, praktikus terek jellemzik az otthont. A fűtésről korszerű kondenzációs gázkazán gondoskodik padlófűtéssel, plusz minden szinten hűtő-fűtő klíma szolgája a megfelelő hőmérsékletet. Az épület szigetelt, Ytong téglából épült, kétrétegű műanyag és fa ablakokkal ellátott redőnnyel szerelve. Fedése bramac tetőcserép. A lakóépülethez kapcsolódik egy kiváló állapotú és esztétikailag is kifogástalan, 40 nm alapterületű, vizes helyiségekkel rendelkező tégla melléképület, amely a későbbiekben akár a lakótér bővítését is lehetővé teszi. Jelenleg tároló-télikertként funkcionál. A mintegy 50 nm alapterületű hatalmas fedett veranda és kertkapcsolatos terasz teszi teljessé az épületeket, kiváló teret adva a pihenésnek, baráti összejöveteleknek. Az ásott kúttal is rendelkező, szép gondozott, füvesített kertben dísz-és gyümölcsfák, cserjék, virágok, magaságyások helyezkednek el, lehetővé téve az aktív és passzív pihenést egyaránt, valamint itt lett kialakítva egy medence és nyugágyak felállítására alkalmas szeparált pihenő tér is. Az ingatlan a település központjához közel helyezkedik el, így pl- az iskola, óvoda, orvosi rendelő, gyógyszertár, boltok könnyedén elérhetőek gyalogosan is.. Budapestre akár autóbusszal, akár vonattal kényelmesen eljuthatunk, mind a vonat, mind a buszmegálló séta távolságra találhatóak. Kérem hívjon, amennyiben szeretne személyesen meggyőződni jövendő otthona kiváló adottságairól, biztosan nem fog csalódni! CSOK, OTTHON START felvehető! ID:393223

Eladó családi ház Erdőkertes Szőlősor utca

ID szám: 85041

Amerikai konyhás: Nem; Kertkapcsolatos: Igen;

Ajánlat

Eladó

Típus

Újszerű

Épület jellege

Új családi ház

Ár

107 MFt

Ingatlan adatai

Épült 2018
Megye Pest megye
Város Erdőkertes
Komfort Dupla komfort
Épületszintek tetőtér pinceszint földszint 1 emelet nincs nincs nincs
Lift nincs
Hasznos alapterület 95 nm
Telek területe 470 nm
Lakáshoz tartozó kert 470 nm
Terasz területe 20 nm
Fűtési mód Cirkófűtés
Egész szobák száma 4 db
Parkolás Udvaron-felszíni beálló
Emelet egyszerű emelet tetőtér tetőtéri kétszintes Nincs adat van nincs nincs
Nagyításhoz kattintson a képre

Az Ön üzletkötője:

Ludas Judit
+36-30-960-7853
Üzenet az üzletkötőnek Ingatlan ajánlása Nyomtatási kép
Megosztás Facebookon Megosztás Twitteren

Ingatlan bemutatása

Erdőkertes kedvelt részén, a Szőlősor utcában 2018-ban, 465 nm-es telken épült, újszerű önálló családi ház eladó, szép gondozott kerttel, melléképülettel. Az ingatlan két szinten 94 nm hasznos lakótérrel rendelkezik, konyha-ebédlő - nappali+ 3 hálószoba elosztású, dupla komfortos. Kényelmes, világos, gépesített konyhájában öröm a főzés., a hozzá kapcsolódó ebédlőben pedig a nagy családi összejöveteleken is kényelmesen el lehet férni. Jól átgondolt elosztás, kiváló fényviszonyok, praktikus terek jellemzik az otthont. A fűtésről korszerű kondenzációs gázkazán gondoskodik padlófűtéssel, plusz minden szinten hűtő-fűtő klíma szolgája a megfelelő hőmérsékletet. Az épület szigetelt, Ytong téglából épült, kétrétegű műanyag és fa ablakokkal ellátott redőnnyel szerelve. Fedése bramac tetőcserép. A lakóépülethez kapcsolódik egy kiváló állapotú és esztétikailag is kifogástalan, 40 nm alapterületű, vizes helyiségekkel rendelkező tégla melléképület, amely a későbbiekben akár a lakótér bővítését is lehetővé teszi. Jelenleg tároló-télikertként funkcionál. A mintegy 50 nm alapterületű hatalmas fedett veranda és kertkapcsolatos terasz teszi teljessé az épületeket, kiváló teret adva a pihenésnek, baráti összejöveteleknek. Az ásott kúttal is rendelkező, szép gondozott, füvesített kertben dísz-és gyümölcsfák, cserjék, virágok, magaságyások helyezkednek el, lehetővé téve az aktív és passzív pihenést egyaránt, valamint itt lett kialakítva egy medence és nyugágyak felállítására alkalmas szeparált pihenő tér is. Az ingatlan a település központjához közel helyezkedik el, így pl- az iskola, óvoda, orvosi rendelő, gyógyszertár, boltok könnyedén elérhetőek gyalogosan is.. Budapestre akár autóbusszal, akár vonattal kényelmesen eljuthatunk, mind a vonat, mind a buszmegálló séta távolságra találhatóak. Kérem hívjon, amennyiben szeretne személyesen meggyőződni jövendő otthona kiváló adottságairól, biztosan nem fog csalódni! CSOK, OTTHON START felvehető! ID:393223

Megosztás Facebookon Megosztás Twitteren
www.ujingatlanok.hu - QR kód

Linkajánló

 

LinkBank