Nyomtatás
Amerikai konyhás: Igen; Kertkapcsolatos: Igen;
|
Eladó családi ház Gyermely Központban |
ID szám: 85014 |
|
Az Ön üzletkötője:
 Göbölyös Ágnes
 +36-30-397-6489
|
Főbb adatok:
| Ajánlat |
Eladó |
| Típus |
Újszerű |
| Jelleg |
Új családi ház |
| Ár |
29.90 MFt |
|
Ingatlan adatai
| Épült |
2022 |
| Megye |
Komárom-Esztergom megye |
| Város |
Gyermely |
| Komfort |
Összkomfort |
| Fűtési mód |
Egyéb |
|
Épületszintek
|
1 emelet |
| Lift |
nincs |
| Hasznos alapterület |
125 nm |
| Telek területe |
822 nm |
| Lakáshoz tartozó kert |
822 nm |
| Fűtési mód |
Egyéb |
| Egész szobák száma |
5 db |
| Félszobák száma |
2 db |
| Parkolás |
Udvaron-felszíni beálló |
| Emelet |
Nincs adat + Egyszerű emelet |
|
Ingatlan bemutatása
Eladó családi ház panorámás telken!
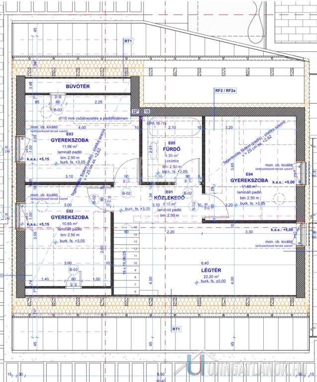
Megvételre kínálunk Budapesttől 40 km távolságra, M1-es autópálya zsámbéki leágazásától 10 km-re, a nyugalom és béke érzését nyújtó Gyermely település központjában egy nettó 125 nm alapterületű, építés alatt álló, önálló családi házat 822 nm-es telken.
A munkálatokat 15 évvel ezelőtt megkezdték, az új tervek 2 éve készültek, aminek már elkezdték a munkálatait, családi okokból nem fejezték be, a terveket mellékeltük a hirdetésben.
Amivel segítjük az Ön ingatlan vásárlását:
- ingyenes hitelügyintézés (CSOK és Babaváró és egyéb hitel
ügyintézése is)
- jogi háttér,
- földhivatali ügyintézés,
- energetikai tanúsítvány ügyintézése,
- a vevő számára ingyenes az ingatlanközvetítés.
Várom szíves megkeresését.
|
|
Eladó családi ház Gyermely Központban
ID szám: 85014
Amerikai konyhás: Igen; Kertkapcsolatos: Igen;
Ajánlat
Eladó
Típus
Újszerű
Épület jellege
Új családi ház
Ár
29.90 MFt
Ingatlan adatai
| Épült |
2022 |
| Megye |
Komárom-Esztergom megye |
| Város |
Gyermely |
| Komfort |
Összkomfort |
|
Épületszintek
tetőtér
pinceszint
földszint
|
1 emelet
|
| Lift |
|
| Hasznos alapterület |
125 nm |
| Telek területe |
822 nm |
| Lakáshoz tartozó kert |
822 nm |
| Fűtési mód |
Egyéb |
| Egész szobák száma |
5 db |
| Félszobák száma |
2 db |
| Parkolás |
Udvaron-felszíni beálló |
| Emelet
egyszerű emelet
tetőtér
tetőtéri kétszintes
|
Nincs adat
|
Ingatlan bemutatása
Eladó családi ház panorámás telken!
Megvételre kínálunk Budapesttől 40 km távolságra, M1-es autópálya zsámbéki leágazásától 10 km-re, a nyugalom és béke érzését nyújtó Gyermely település központjában egy nettó 125 nm alapterületű, építés alatt álló, önálló családi házat 822 nm-es telken.
A munkálatokat 15 évvel ezelőtt megkezdték, az új tervek 2 éve készültek, aminek már elkezdték a munkálatait, családi okokból nem fejezték be, a terveket mellékeltük a hirdetésben.
Amivel segítjük az Ön ingatlan vásárlását:
- ingyenes hitelügyintézés (CSOK és Babaváró és egyéb hitel
ügyintézése is)
- jogi háttér,
- földhivatali ügyintézés,
- energetikai tanúsítvány ügyintézése,
- a vevő számára ingyenes az ingatlanközvetítés.
Várom szíves megkeresését.