Nyomtatás
Amerikai konyhás: Igen; Kertkapcsolatos: Igen;

Eladó családi ház Győr Gangl András

ID szám: 85110

Az Ön üzletkötője:

Tőkés Levente
+36-30-362-4723

Főbb adatok:

Ajánlat Eladó
Típus Újszerű
Jelleg Új családi ház
Ár 279 MFt

Ingatlan adatai

Épült 2025
Megye Győr-Moson-Sopron megye
Város Győr
Komfort Dupla komfort
Épületszintek 1 emelet
Lift nincs
Hasznos alapterület 163 nm
Telek területe 600 nm
Lakáshoz tartozó kert 600 nm
Egész szobák száma 5 db
Parkolás Teremgarázs-garázs
Emelet Nincs adat + Egyszerű emelet

Ingatlan bemutatása

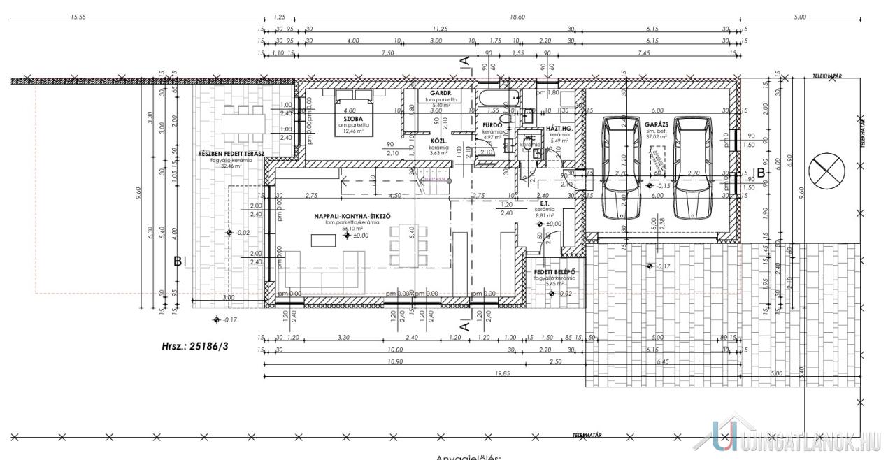
Győr-Ménfőcsanak – ahol minden adott egy minőségi otthonhoz! Ha olyan helyet keres, ahol a nyugodt kertvárosi élet és a városi infrastruktúra tökéletes egyensúlyban van, akkor ezt a lehetőséget érdemes közelebbről is megnéznie. Győr-Ménfőcsanak egyik legnyugodtabb, forgalomtól mentes új zsákutcájában, 600 m²-es telken kínáljuk ezt a kompromisszummentes, minden igényt kielégítő luxus okosházat. Egy otthont, ahol a technológia, a design és a maximális kényelem találkozik – és mindez egyetlen applikációból irányítható. Részletek: Földszint nettó alapterület: 98,16 m².+32 nm terasz. Emelet nettó alapterület: 65,24 m²+8 nm terasz. Lakótér összes nettó alapterület: 163,4 m². Garázs: 37,02 m². Főbb extrák és felszereltség: Rendkívül alacsony fenntartási költség. Internetes kamerarendszer. Schneider Merten és MDT villanyszerelvények, KNX alapú intelligens otthonrendszer. Prémium alumínium okos ajtó. Távolról irányítható hűtés–fűtés, szintenként vagy helyiségenként. Mobilról kezelhető kaputelefon, többszintű biztonsági rendszer. Napjárást követő vagy telefonról vezérelhető redőnyök. Számtalan belső–külső hangulatvilágítás. 3 körös automata öntözőrendszer. Midea prémium hőszivattyús hűtés-fűtés, napelem előkészítés. Extra 15 cm grafitos homlokzati szigetelés, a födémen 30 cm üveggyapot. Bosch 8-as szériás gépekkel felszerelt prémium konyha. Gelean Linear ablakok, Smoovio szállodai tolóajtók. Hörmann szekcionált garázskapu, Fühvald térkövek, alumínium kerti szerszámtároló, Deante Luxury szerelvények. Ajándék extra az árban: Az alábbiak közül 1 választható: Husqvarna robotfűnyíró, kerti szauna, Wellis jakuzzi, BWT vízlágyító rendszer. Ez a különleges ingatlan nem csupán egy ház, hanem egy sokfunkciós élettér, mely tökéletes választás nagycsaládosoknak, két generáció összeköltözésére, vállalkozás székhelyének, vagy akár befektetésnek is de legfőképp akik csendes környezetben, mégis kiváló infrastruktúrával rendelkező városrészben keresnek igényes, azonnal élhető otthont. A ház megtekintésével kapcsolatban és további információkért keressen a megadott mobil számon.

Eladó családi ház Győr Gangl András

ID szám: 85110

Amerikai konyhás: Igen; Kertkapcsolatos: Igen;

Ajánlat

Eladó

Típus

Újszerű

Épület jellege

Új családi ház

Ár

279 MFt

Ingatlan adatai

Épült 2025
Megye Győr-Moson-Sopron megye
Város Győr
Komfort Dupla komfort
Épületszintek tetőtér pinceszint földszint 1 emelet nincs nincs nincs
Lift nincs
Hasznos alapterület 163 nm
Telek területe 600 nm
Lakáshoz tartozó kert 600 nm
Egész szobák száma 5 db
Parkolás Teremgarázs-garázs
Emelet egyszerű emelet tetőtér tetőtéri kétszintes Nincs adat van nincs nincs
Nagyításhoz kattintson a képre

Az Ön üzletkötője:

Tőkés Levente
+36-30-362-4723
Üzenet az üzletkötőnek Ingatlan ajánlása Nyomtatási kép
Megosztás Facebookon Megosztás Twitteren

Ingatlan bemutatása

Győr-Ménfőcsanak – ahol minden adott egy minőségi otthonhoz! Ha olyan helyet keres, ahol a nyugodt kertvárosi élet és a városi infrastruktúra tökéletes egyensúlyban van, akkor ezt a lehetőséget érdemes közelebbről is megnéznie. Győr-Ménfőcsanak egyik legnyugodtabb, forgalomtól mentes új zsákutcájában, 600 m²-es telken kínáljuk ezt a kompromisszummentes, minden igényt kielégítő luxus okosházat. Egy otthont, ahol a technológia, a design és a maximális kényelem találkozik – és mindez egyetlen applikációból irányítható. Részletek: Földszint nettó alapterület: 98,16 m².+32 nm terasz. Emelet nettó alapterület: 65,24 m²+8 nm terasz. Lakótér összes nettó alapterület: 163,4 m². Garázs: 37,02 m². Főbb extrák és felszereltség: Rendkívül alacsony fenntartási költség. Internetes kamerarendszer. Schneider Merten és MDT villanyszerelvények, KNX alapú intelligens otthonrendszer. Prémium alumínium okos ajtó. Távolról irányítható hűtés–fűtés, szintenként vagy helyiségenként. Mobilról kezelhető kaputelefon, többszintű biztonsági rendszer. Napjárást követő vagy telefonról vezérelhető redőnyök. Számtalan belső–külső hangulatvilágítás. 3 körös automata öntözőrendszer. Midea prémium hőszivattyús hűtés-fűtés, napelem előkészítés. Extra 15 cm grafitos homlokzati szigetelés, a födémen 30 cm üveggyapot. Bosch 8-as szériás gépekkel felszerelt prémium konyha. Gelean Linear ablakok, Smoovio szállodai tolóajtók. Hörmann szekcionált garázskapu, Fühvald térkövek, alumínium kerti szerszámtároló, Deante Luxury szerelvények. Ajándék extra az árban: Az alábbiak közül 1 választható: Husqvarna robotfűnyíró, kerti szauna, Wellis jakuzzi, BWT vízlágyító rendszer. Ez a különleges ingatlan nem csupán egy ház, hanem egy sokfunkciós élettér, mely tökéletes választás nagycsaládosoknak, két generáció összeköltözésére, vállalkozás székhelyének, vagy akár befektetésnek is de legfőképp akik csendes környezetben, mégis kiváló infrastruktúrával rendelkező városrészben keresnek igényes, azonnal élhető otthont. A ház megtekintésével kapcsolatban és további információkért keressen a megadott mobil számon.

Megosztás Facebookon Megosztás Twitteren
www.ujingatlanok.hu - QR kód

Linkajánló

 

LinkBank