Nyomtatás
|
Amerikai konyhás: Igen; Kertkapcsolatos: Igen;
|
||
Eladó családi ház Kecskemét Felsőszéktó |
ID szám: 85043 | |
|
Eladó családi ház Kecskemét Felsőszéktó
ID szám: 85043
Amerikai konyhás: Igen; Kertkapcsolatos: Igen;
Ajánlat
Eladó
Típus
Újépítésű
Épület jellege
Új családi ház
Ár
72.90 MFt
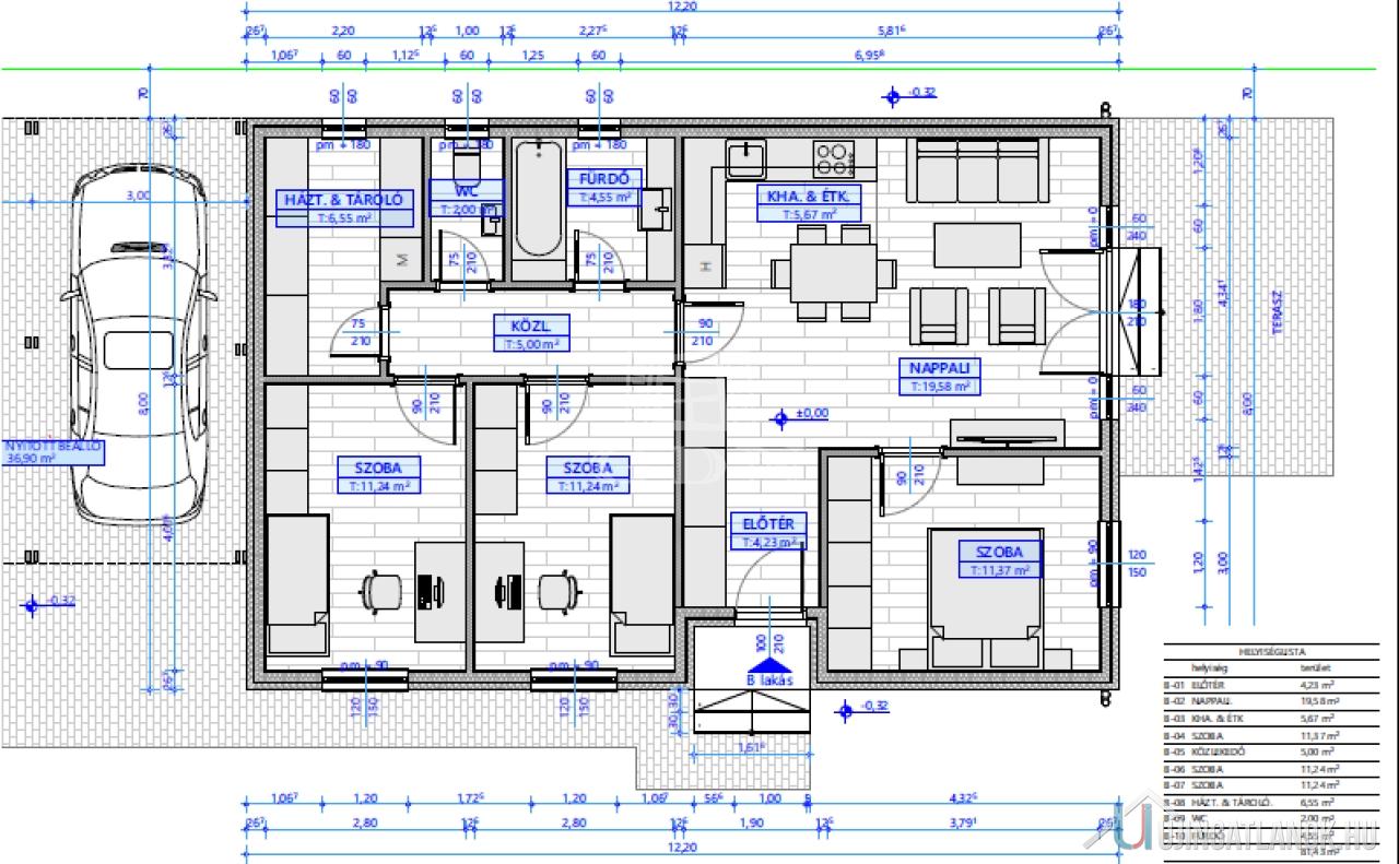
Ingatlan adatai
| Épült | 2027 |
|---|---|
| Megye | Bács-Kiskun megye |
| Város | Kecskemét |
| Komfort | Összkomfort |
| Épületszintek tetőtér pinceszint földszint |
1 emelet
|
| Lift |
|
| Hasznos alapterület | 82 nm |
| Telek területe | 500 nm |
| Lakáshoz tartozó kert | 500 nm |
| Egész szobák száma | 3 db |
| Parkolás | Udvaron-felszíni beálló |
| Emelet egyszerű emelet tetőtér tetőtéri kétszintes |
Nincs adat
|
Nagyításhoz kattintson a képre
Az Ön üzletkötője:
Vörösmarty Attila
+36-30-197-6543


