Nyomtatás
Amerikai konyhás: Igen; Kertkapcsolatos: Igen;
|
Eladó családi ház Kecskemét Fenyveserdő lakópark |
ID szám: 86175 |
|
Az Ön üzletkötője:
 Ördög Ágnes
 +36-30-197-6537
|
Főbb adatok:
| Ajánlat |
Eladó |
| Típus |
Újépítésű |
| Jelleg |
Új családi ház |
| Ár |
78.90 MFt |
|
Ingatlan adatai
| Épült |
2026 |
| Megye |
Bács-Kiskun megye |
| Város |
Kecskemét |
| Komfort |
Összkomfort |
|
Épületszintek
|
1 emelet |
| Lift |
nincs |
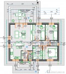
| Hasznos alapterület |
83 nm |
| Telek területe |
6000 nm |
| Lakáshoz tartozó kert |
6000 nm |
| Egész szobák száma |
3 db |
| Parkolás |
Udvaron-felszíni beálló |
| Emelet |
Nincs adat + Egyszerű emelet |
|
Ingatlan bemutatása
Ha csendre és nyugalomra vágyik, de mégsem akar messzire költözni Kecskemét nyüzsgésétől, akkor a Fenyves Lakóparkban ideális otthont talál. Nappali + 3 Szobás Családi ház Természetközeli Környezetben, Generálkivitelezéssel Családok, családot tervezők és új életet kezdők figyelem!A fenyvesek ölelésében, mégis mindössze 15 percre a városközponttól várja Önt ez a nyugodt, csendes otthon, ahol a családi élet valódi minőségben bontakozhat ki. A természet közelsége és a mindennapi elérhetőség itt nem ellentmondás. Ráadásul a házra CSOK igénybe vehető – egy lépéssel közelebb az álomhoz. Az ingatlan csendes környezetben, de kiváló infrastruktúra mellett található. A terület 500 méteres jó minőségű földúton közelíthető meg. Fontos Információ:Az ingatlan adásvétele kifüggesztéses eljárás alá esik. Kérjük, vegye ezt figyelembe érdeklődése során.Bízza a teljes kivitelezést ránk! Keressen minket a teljes műszaki tartalomért és egy személyes konzultációért, ahol átbeszélhetjük egyedi igényeit!
|
|
Eladó családi ház Kecskemét Fenyveserdő lakópark
ID szám: 86175
Amerikai konyhás: Igen; Kertkapcsolatos: Igen;
Ajánlat
Eladó
Típus
Újépítésű
Épület jellege
Új családi ház
Ár
78.90 MFt
Ingatlan adatai
| Épült |
2026 |
| Megye |
Bács-Kiskun megye |
| Város |
Kecskemét |
| Komfort |
Összkomfort |
|
Épületszintek
tetőtér
pinceszint
földszint
|
1 emelet
|
| Lift |
|
| Hasznos alapterület |
83 nm |
| Telek területe |
6000 nm |
| Lakáshoz tartozó kert |
6000 nm |
| Egész szobák száma |
3 db |
| Parkolás |
Udvaron-felszíni beálló |
| Emelet
egyszerű emelet
tetőtér
tetőtéri kétszintes
|
Nincs adat
|
Ingatlan bemutatása
Ha csendre és nyugalomra vágyik, de mégsem akar messzire költözni Kecskemét nyüzsgésétől, akkor a Fenyves Lakóparkban ideális otthont talál. Nappali + 3 Szobás Családi ház Természetközeli Környezetben, Generálkivitelezéssel Családok, családot tervezők és új életet kezdők figyelem!A fenyvesek ölelésében, mégis mindössze 15 percre a városközponttól várja Önt ez a nyugodt, csendes otthon, ahol a családi élet valódi minőségben bontakozhat ki. A természet közelsége és a mindennapi elérhetőség itt nem ellentmondás. Ráadásul a házra CSOK igénybe vehető – egy lépéssel közelebb az álomhoz. Az ingatlan csendes környezetben, de kiváló infrastruktúra mellett található. A terület 500 méteres jó minőségű földúton közelíthető meg. Fontos Információ:Az ingatlan adásvétele kifüggesztéses eljárás alá esik. Kérjük, vegye ezt figyelembe érdeklődése során.Bízza a teljes kivitelezést ránk! Keressen minket a teljes műszaki tartalomért és egy személyes konzultációért, ahol átbeszélhetjük egyedi igényeit!