Nyomtatás
Amerikai konyhás: Nem; Kertkapcsolatos: Igen;
|
Eladó családi ház Kecskemét Miklóstelepi út |
ID szám: 85024 |
|
Az Ön üzletkötője:
 Vörösmarty Attila
 +36-30-197-6543
|
Főbb adatok:
| Ajánlat |
Eladó |
| Típus |
Újépítésű |
| Jelleg |
Új családi ház |
| Ár |
129.90 MFt |
|
Ingatlan adatai
| Épült |
2026 |
| Megye |
Bács-Kiskun megye |
| Város |
Kecskemét |
| Komfort |
Dupla komfort |
| Fűtési mód |
Cirkófűtés |
|
Épületszintek
|
1 emelet |
| Lift |
nincs |
| Hasznos alapterület |
126 nm |
| Telek területe |
3000 nm |
| Lakáshoz tartozó kert |
3000 nm |
| Terasz területe |
36 nm |
| Fűtési mód |
Cirkófűtés |
| Egész szobák száma |
4 db |
| Parkolás |
Udvaron-felszíni beálló |
| Emelet |
Nincs adat + Egyszerű emelet |
|
Ingatlan bemutatása
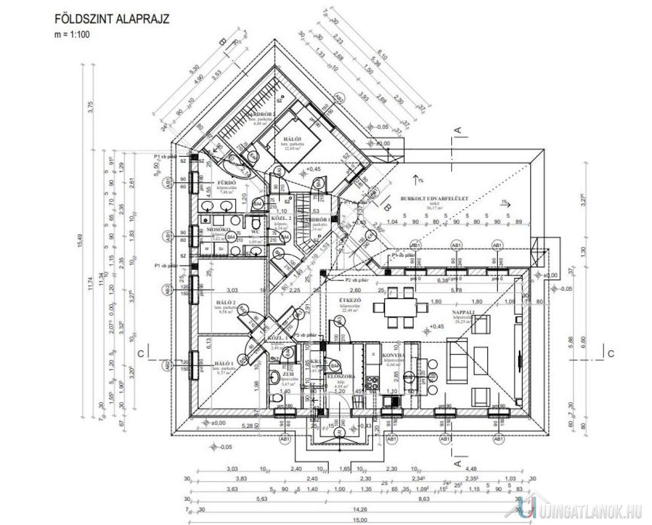
Kecskemét csendes, nyugodt részén eladó egy nettó 126 m²-es, nappali + 3 szobás, modern kialakítású új építésű családi ház, hatalmas, 3001 m²-es önálló telken!
Ez az otthon ideális választás mindazok számára, akik tágas életteret, korszerű műszaki tartalmat és nagy kertet keresnek – akár családalapításhoz, akár nyugodt vidéki élethez.
Főbb jellemzők
✔ 126 m² lakótér
✔ Nappali + 3 külön nyíló szoba
✔ 45 m²-es, világos, amerikai konyhás nappali
✔ 2 fürdőszoba
✔ 2 gardrób
✔ 36 m²-es terasz
✔ 3001 m²-es, önálló telek
✔ 2026 év eleji átadás
Műszaki tartalom
Bosch kazán padlófűtéssel
2 db klíma
15 cm homlokzati szigetelés
30 cm födémszigetelés
Műanyag nyílászárók redőnnyel és szúnyoghálóval
Teljesen körbekerített telek
A korszerű szigetelésnek és a modern gépészetnek köszönhetően az ingatlan energiatakarékos, fenntartási költsége kedvező.
Telek és környezet
A 3001 m²-es telek rengeteg lehetőséget kínál:
medence, játszótér vagy kerti konyha kialakítására
melléképület, műhely vagy garázs építésére
akár gazdálkodásra, kertészkedésre is
A körbekerített terület biztonságos, gyermekes családok és kisállattartók számára is ideális.
Kinek ajánljuk?
Többgyermekes családoknak
Nyugodt, tágas életteret keresőknek
Befektetőknek értékálló új építésű ingatlanként
Ha egy modern, jól átgondolt elrendezésű, nagy telken fekvő új otthont keres Kecskeméten, ezt az ingatlant érdemes megnéznie!
További információért és megtekintésért keressen bizalommal!
|
|
Eladó családi ház Kecskemét Miklóstelepi út
ID szám: 85024
Amerikai konyhás: Nem; Kertkapcsolatos: Igen;
Ajánlat
Eladó
Típus
Újépítésű
Épület jellege
Új családi ház
Ár
129.90 MFt
Ingatlan adatai
| Épült |
2026 |
| Megye |
Bács-Kiskun megye |
| Város |
Kecskemét |
| Komfort |
Dupla komfort |
|
Épületszintek
tetőtér
pinceszint
földszint
|
1 emelet
|
| Lift |
|
| Hasznos alapterület |
126 nm |
| Telek területe |
3000 nm |
| Lakáshoz tartozó kert |
3000 nm |
| Terasz területe |
36 nm |
| Fűtési mód |
Cirkófűtés |
| Egész szobák száma |
4 db |
| Parkolás |
Udvaron-felszíni beálló |
| Emelet
egyszerű emelet
tetőtér
tetőtéri kétszintes
|
Nincs adat
|
Ingatlan bemutatása
Kecskemét csendes, nyugodt részén eladó egy nettó 126 m²-es, nappali + 3 szobás, modern kialakítású új építésű családi ház, hatalmas, 3001 m²-es önálló telken!
Ez az otthon ideális választás mindazok számára, akik tágas életteret, korszerű műszaki tartalmat és nagy kertet keresnek – akár családalapításhoz, akár nyugodt vidéki élethez.
Főbb jellemzők
✔ 126 m² lakótér
✔ Nappali + 3 külön nyíló szoba
✔ 45 m²-es, világos, amerikai konyhás nappali
✔ 2 fürdőszoba
✔ 2 gardrób
✔ 36 m²-es terasz
✔ 3001 m²-es, önálló telek
✔ 2026 év eleji átadás
Műszaki tartalom
Bosch kazán padlófűtéssel
2 db klíma
15 cm homlokzati szigetelés
30 cm födémszigetelés
Műanyag nyílászárók redőnnyel és szúnyoghálóval
Teljesen körbekerített telek
A korszerű szigetelésnek és a modern gépészetnek köszönhetően az ingatlan energiatakarékos, fenntartási költsége kedvező.
Telek és környezet
A 3001 m²-es telek rengeteg lehetőséget kínál:
medence, játszótér vagy kerti konyha kialakítására
melléképület, műhely vagy garázs építésére
akár gazdálkodásra, kertészkedésre is
A körbekerített terület biztonságos, gyermekes családok és kisállattartók számára is ideális.
Kinek ajánljuk?
Többgyermekes családoknak
Nyugodt, tágas életteret keresőknek
Befektetőknek értékálló új építésű ingatlanként
Ha egy modern, jól átgondolt elrendezésű, nagy telken fekvő új otthont keres Kecskeméten, ezt az ingatlant érdemes megnéznie!
További információért és megtekintésért keressen bizalommal!