Nyomtatás
|
Amerikai konyhás: Igen; Kertkapcsolatos: Igen;
|
||
Eladó családi ház Királyszentistván Panorámás, újépítés, tervezhető |
ID szám: 84921 | |
|
Eladó családi ház Királyszentistván Panorámás, újépítés, tervezhető
ID szám: 84921
Amerikai konyhás: Igen; Kertkapcsolatos: Igen;
Ajánlat
Eladó
Típus
Újépítésű
Épület jellege
Új családi ház
Ár
83.60 MFt
Ingatlan adatai
| Épült | 2026 |
|---|---|
| Megye | Veszprém megye |
| Város | Királyszentistván |
| Komfort | Összkomfort |
| Épületszintek tetőtér pinceszint földszint |
1 emelet
|
| Lift |
|
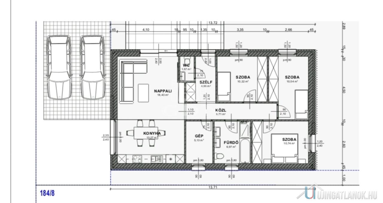
| Hasznos alapterület | 92 nm |
| Telek területe | 400 nm |
| Lakáshoz tartozó kert | 400 nm |
| Fűtési mód | Egyéb |
| Egész szobák száma | 3 db |
| Parkolás | Teremgarázs-garázs |
| Emelet egyszerű emelet tetőtér tetőtéri kétszintes |
Nincs adat
|
Nagyításhoz kattintson a képre
Az Ön üzletkötője:
Simon Erika
+36-70-948-4828


