Nyomtatás
|
Amerikai konyhás: Igen; Kertkapcsolatos: Igen;
|
||
Eladó családi ház Kiskunlacháza Kiskunlacháza |
ID szám: 84216 | |
|
Eladó családi ház Kiskunlacháza Kiskunlacháza
ID szám: 84216
Amerikai konyhás: Igen; Kertkapcsolatos: Igen;
Ajánlat
Eladó
Típus
Újépítésű
Épület jellege
Új családi ház
Ár
84.15 MFt
Ingatlan adatai
| Épült | 2026 |
|---|---|
| Megye | Pest megye |
| Város | Kiskunlacháza |
| Komfort | Összkomfort |
| Épületszintek tetőtér pinceszint földszint |
1 emelet
|
| Lift |
|
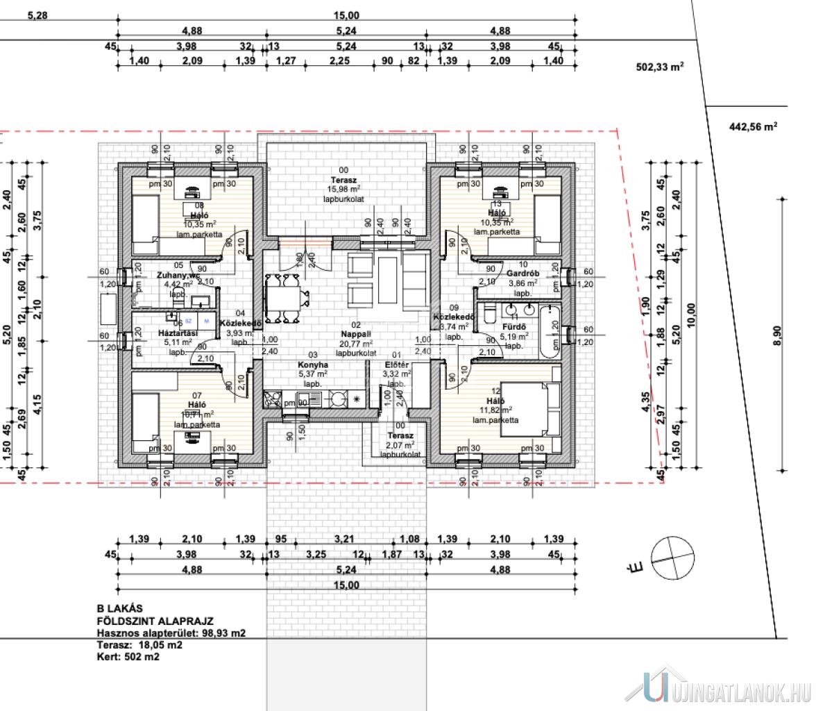
| Hasznos alapterület | 99 nm |
| Telek területe | 502 nm |
| Lakáshoz tartozó kert | 502 nm |
| Terasz területe | 18 nm |
| Egész szobák száma | 5 db |
| Parkolás | Udvaron-felszíni beálló |
| Emelet egyszerű emelet tetőtér tetőtéri kétszintes |
Nincs adat
|
Nagyításhoz kattintson a képre
Az Ön üzletkötője:
Göbölyös Judit
+36-70-269-5029


