Nyomtatás
Amerikai konyhás: Igen; Kertkapcsolatos: Igen;
|
Eladó családi ház Mogyoród Szadai út |
ID szám: 84929 |
|
Az Ön üzletkötője:
 Kovács Krisztián
 +36-20-361-3763
|
Főbb adatok:
| Ajánlat |
Eladó |
| Típus |
Újépítésű |
| Jelleg |
Új családi ház |
| Ár |
89.90 MFt |
|
Ingatlan adatai
| Épült |
2025 |
| Megye |
Pest megye |
| Város |
Mogyoród |
| Komfort |
Összkomfort |
| Fűtési mód |
Cirkófűtés |
|
Épületszintek
|
1 emelet |
| Lift |
nincs |
| Hasznos alapterület |
111 nm |
| Telek területe |
370 nm |
| Lakáshoz tartozó kert |
370 nm |
| Terasz területe |
33 nm |
| Fűtési mód |
Cirkófűtés |
| Egész szobák száma |
3 db |
| Parkolás |
Udvaron-felszíni beálló |
| Emelet |
Nincs adat + Egyszerű emelet |
|
Ingatlan bemutatása
KÜLÖNLEGES LEHETŐSÉG MOGYORÓDON ! ! !
ÖNÁLLÓ CSALÁDI HÁZ 2 TERASSZAL ! ! !
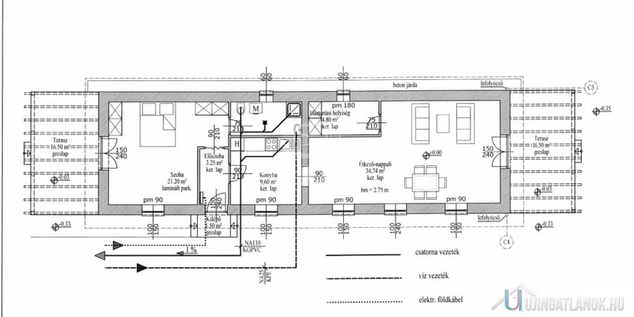
78,39 nm (EGY SZINTEN!) + 2(!) x 16,5 nm terasz kb. 370 nm-es telekrész.
A 2 TERASZ KÜLÖNLEGES ÉLETÉRZÉST BIZTOSÍT, HISZEN EGYIK KELETI, MÁSIK NYUGATI FEKVÉSŰ!
A reggeli napsugaraknál kávézhatunk és az esti lenyugvó nap fényénél akár borozhatunk is.
Eredeti tervek szerint is kérhető, de kérhető plusz 1 szobával, tehát 2 vagy 3 szobásként is, vagy beépített tetőtérrel! /Természetesen ez plusz költség/
Alapból fa födém, de kérhető vasbeton födémmel is (plusz költség).
A kivitelező több referánciával is rendelkezik, korábbi munkái, akár félkész, akár kulcsrakész állapotban megtekinthetőek.
KIVÁLÓ LÓKÁCIÓ:
- Autópálya felhajtó pár percre!
- Buszmegálló gyalog pár percre!
- HÉV megálló gyalog pár percre található!
HÍVJON A RÉSZLETEKÉRT, NE MARADJON LE RÓLA!
Tervezett átadás: 2026. december 31.
NEM A KIVITELEZŐTŐL FÜGG, Ő 6 HÓNAP ALATT MEGÉPÍTI!
A napelem illusztráció, feláras.
U.I.: A képek ugyanazon beruházó által készített hasonló ingatlanban készültek! Az alaprajz a valóságnak 100%-ban megfelelő.
|
|
Eladó családi ház Mogyoród Szadai út
ID szám: 84929
Amerikai konyhás: Igen; Kertkapcsolatos: Igen;
Ajánlat
Eladó
Típus
Újépítésű
Épület jellege
Új családi ház
Ár
89.90 MFt
Ingatlan adatai
| Épült |
2025 |
| Megye |
Pest megye |
| Város |
Mogyoród |
| Komfort |
Összkomfort |
|
Épületszintek
tetőtér
pinceszint
földszint
|
1 emelet
|
| Lift |
|
| Hasznos alapterület |
111 nm |
| Telek területe |
370 nm |
| Lakáshoz tartozó kert |
370 nm |
| Terasz területe |
33 nm |
| Fűtési mód |
Cirkófűtés |
| Egész szobák száma |
3 db |
| Parkolás |
Udvaron-felszíni beálló |
| Emelet
egyszerű emelet
tetőtér
tetőtéri kétszintes
|
Nincs adat
|
Ingatlan bemutatása
KÜLÖNLEGES LEHETŐSÉG MOGYORÓDON ! ! !
ÖNÁLLÓ CSALÁDI HÁZ 2 TERASSZAL ! ! !
78,39 nm (EGY SZINTEN!) + 2(!) x 16,5 nm terasz kb. 370 nm-es telekrész.
A 2 TERASZ KÜLÖNLEGES ÉLETÉRZÉST BIZTOSÍT, HISZEN EGYIK KELETI, MÁSIK NYUGATI FEKVÉSŰ!
A reggeli napsugaraknál kávézhatunk és az esti lenyugvó nap fényénél akár borozhatunk is.
Eredeti tervek szerint is kérhető, de kérhető plusz 1 szobával, tehát 2 vagy 3 szobásként is, vagy beépített tetőtérrel! /Természetesen ez plusz költség/
Alapból fa födém, de kérhető vasbeton födémmel is (plusz költség).
A kivitelező több referánciával is rendelkezik, korábbi munkái, akár félkész, akár kulcsrakész állapotban megtekinthetőek.
KIVÁLÓ LÓKÁCIÓ:
- Autópálya felhajtó pár percre!
- Buszmegálló gyalog pár percre!
- HÉV megálló gyalog pár percre található!
HÍVJON A RÉSZLETEKÉRT, NE MARADJON LE RÓLA!
Tervezett átadás: 2026. december 31.
NEM A KIVITELEZŐTŐL FÜGG, Ő 6 HÓNAP ALATT MEGÉPÍTI!
A napelem illusztráció, feláras.
U.I.: A képek ugyanazon beruházó által készített hasonló ingatlanban készültek! Az alaprajz a valóságnak 100%-ban megfelelő.