Nyomtatás
|
Amerikai konyhás: Igen; Kertkapcsolatos: Igen;
|
||
Eladó családi ház Monor Füzes utca |
ID szám: 85904 | |
|
Eladó családi ház Monor Füzes utca
ID szám: 85904
Amerikai konyhás: Igen; Kertkapcsolatos: Igen;
Ajánlat
Eladó
Típus
Újszerű
Épület jellege
Új családi ház
Ár
34.99 MFt
Ingatlan adatai
| Épült | 2025 |
|---|---|
| Megye | Pest megye |
| Város | Monor |
| Komfort | Összkomfort |
| Épületszintek tetőtér pinceszint földszint |
1 emelet
|
| Lift |
|
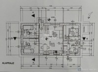
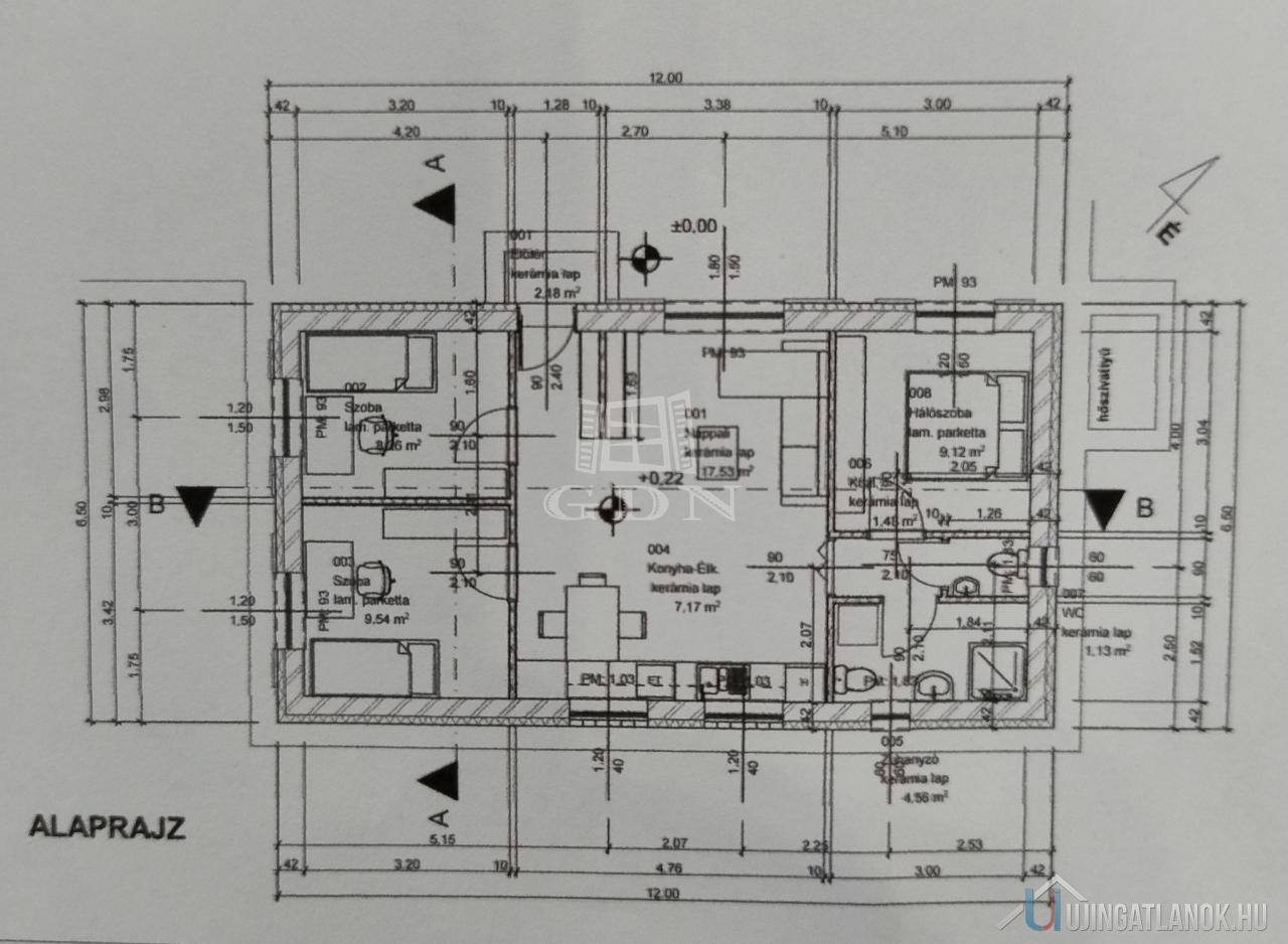
| Hasznos alapterület | 78 nm |
| Telek területe | 424 nm |
| Lakáshoz tartozó kert | 424 nm |
| Fűtési mód | Cirkófűtés |
| Egész szobák száma | 3 db |
| Parkolás | Udvaron-felszíni beálló |
| Emelet egyszerű emelet tetőtér tetőtéri kétszintes |
Nincs adat
|
Nagyításhoz kattintson a képre
Az Ön üzletkötője:
Kovács Krisztián
+36-20-361-3763


