Nyomtatás
|
Amerikai konyhás: Igen; Kertkapcsolatos: Igen;
|
||
Eladó családi ház Őrbottyán Bajcsy Zsilinszky utca |
ID szám: 83939 | |
|
Eladó családi ház Őrbottyán Bajcsy Zsilinszky utca
ID szám: 83939
Amerikai konyhás: Igen; Kertkapcsolatos: Igen;
Ajánlat
Eladó
Típus
Újépítésű
Épület jellege
Új családi ház
Ár
124.90 MFt
Ingatlan adatai
| Épült | 2026 |
|---|---|
| Megye | Pest megye |
| Város | Őrbottyán |
| Komfort | Összkomfort |
| Épületszintek tetőtér pinceszint földszint |
1 emelet
|
| Lift |
|
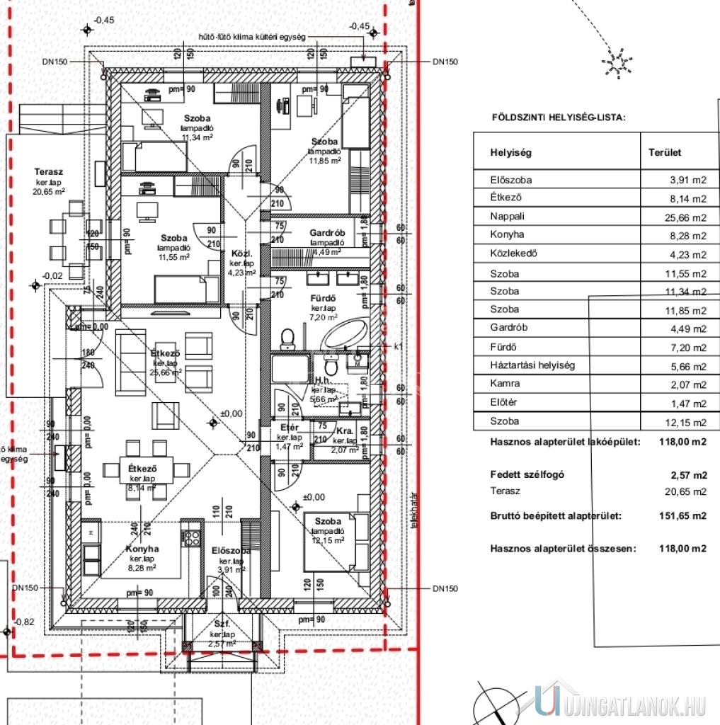
| Hasznos alapterület | 152 nm |
| Telek területe | 820 nm |
| Lakáshoz tartozó kert | 820 nm |
| Terasz területe | 20 nm |
| Fűtési mód | Cirkófűtés |
| Egész szobák száma | 4 db |
| Parkolás | Udvaron-felszíni beálló |
| Emelet egyszerű emelet tetőtér tetőtéri kétszintes |
Nincs adat
|
Nagyításhoz kattintson a képre
Az Ön üzletkötője:
Nagy Barbara
+36-70-490-7364


