Nyomtatás
|
Amerikai konyhás: Igen; Kertkapcsolatos: Igen;
|
||
Eladó családi ház Ráckeve Szent Vendel út közelében |
ID szám: 83515 | |
|
Eladó családi ház Ráckeve Szent Vendel út közelében
ID szám: 83515
Amerikai konyhás: Igen; Kertkapcsolatos: Igen;
Ajánlat
Eladó
Típus
Újépítésű
Épület jellege
Új családi ház
Ár
81.60 MFt
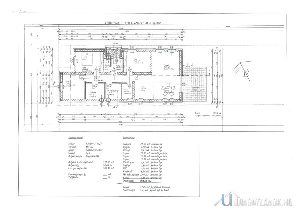
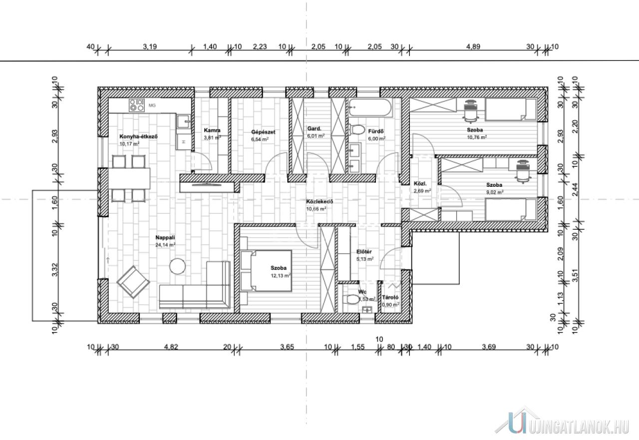
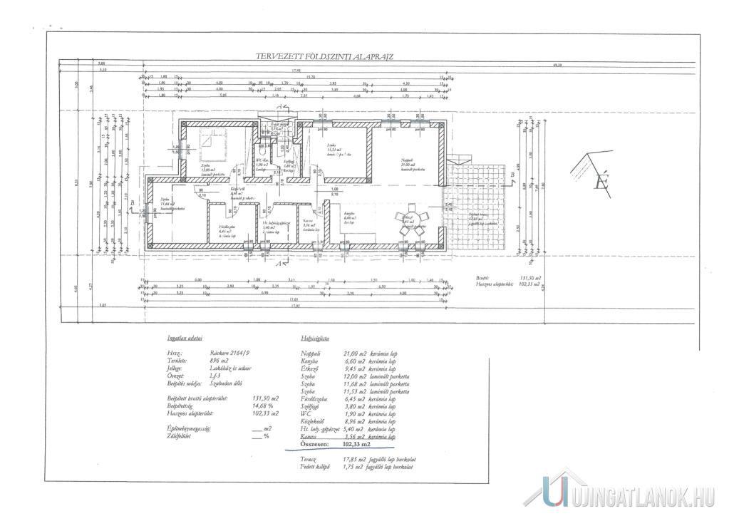
Ingatlan adatai
| Épült | 2025 |
|---|---|
| Megye | Pest megye |
| Város | Ráckeve |
| Komfort | Összkomfort |
| Épületszintek tetőtér pinceszint földszint |
1 emelet
|
| Lift |
|
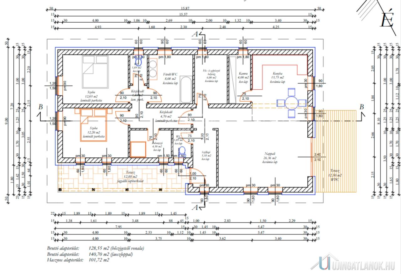
| Hasznos alapterület | 102 nm |
| Telek területe | 836 nm |
| Lakáshoz tartozó kert | 836 nm |
| Fűtési mód | Egyéb |
| Egész szobák száma | 3 db |
| Parkolás | Udvaron-felszíni beálló |
| Emelet egyszerű emelet tetőtér tetőtéri kétszintes |
Nincs adat
|
Nagyításhoz kattintson a képre
Az Ön üzletkötője:
Göbölyös Judit
+36-70-269-5029


