Nyomtatás
Amerikai konyhás: Igen; Kertkapcsolatos: Igen;
|
Eladó családi ház Sülysáp Határ út |
ID szám: 82294 |
|
Az Ön üzletkötője:
 Horváth Péter
 +36-70-606-2990
|
Főbb adatok:
| Ajánlat |
Eladó |
| Típus |
Újépítésű |
| Jelleg |
Új családi ház |
| Ár |
69.90 MFt |
|
Ingatlan adatai
| Épült |
2026 |
| Megye |
Pest megye |
| Város |
Sülysáp |
| Komfort |
Összkomfort |
|
Épületszintek
|
1 emelet |
| Lift |
nincs |
| Hasznos alapterület |
94 nm |
| Telek területe |
522 nm |
| Lakáshoz tartozó kert |
522 nm |
| Terasz területe |
15 nm |
| Egész szobák száma |
4 db |
| Parkolás |
Udvaron-felszíni beálló |
| Emelet |
Nincs adat + Egyszerű emelet |
|
Ingatlan bemutatása
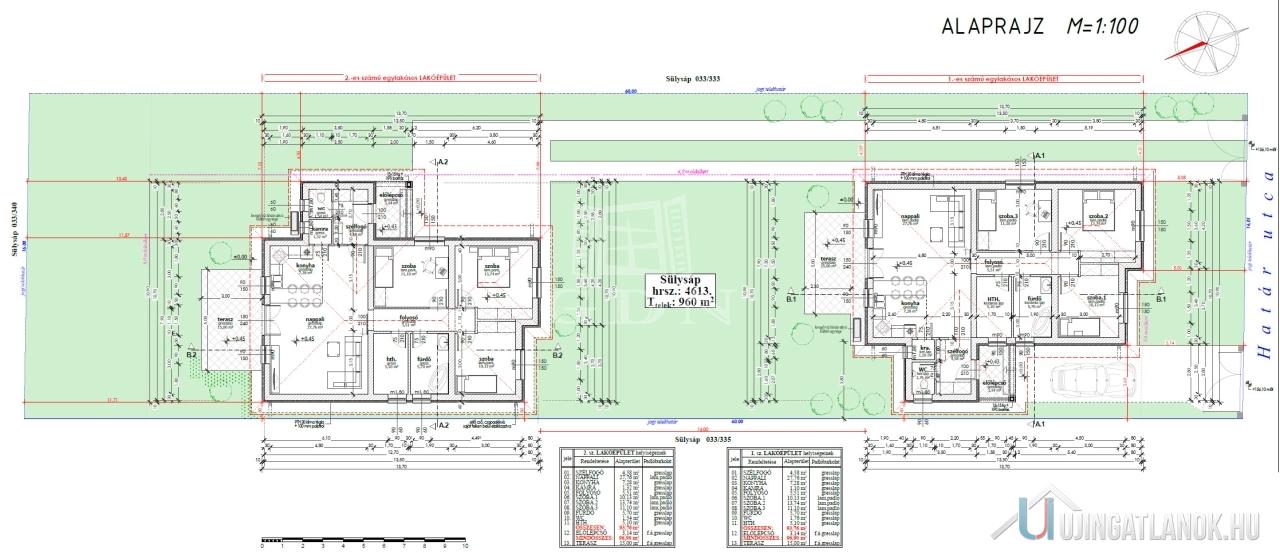
Sülysápon a Határ úton 960 m2-es telken, 93,76 m2-es három szoba + amerikai konyhás nappalival rendelkező, energiahatékony családi házak eladók!
Az építkezés December 11.-én indul!
A Határ út Sülysáp Kóka felőli utolsó utcája, mégis közel van a központhoz. A telekről csodálataos panoráma nyílik a mögötte elhelyezkedő szántóra és az erdőre.
Az első ingatlan 438 m2-es kizárólagos használatú telekrésszel kerül kialakításra. Vételára: 69.900.000.- Ft.
A hátsó ingatlan egy 3 méter széles a telek jobb oldalán kialakított úton lesz megközelíthető, 522 m2 telekrésszel fog rendelkezni., vételára: 74.900.000.- Ft.
A tartószerkezeti falak Porotherm P30N+F téglából, betonkoszorúval, fa födémes tetőszerkezettel készülnek. A lábazat 10 cm polisztirol lépésálló, a homlokzatok 15cm-es EPS, a vízszintes födém 25 cm ásványgyapot szigeteléssel lesz ellátva.
Három rétegű üvegekkel szerelt, hat légkamrás műanyag thermo nyílászárók kerülnek beépítésre.
A minimális energiaigényt a megfelelő szigetelésen kívül a megújuló energiát használó gépészet is biztosítja. A fűtést levegő-víz hőszivattyús rendszer fogja végezni.
Burkolatok , szaniterek, belső ajtók, csaptelepek választhatóak a következő értékhatárig:
-Hidegburkolat: 3000 Ft.-/m2
-Melegburkolat: 3000 Ft.-/m2
-Beltéri ajtók: 30.000.Ft.-/db
-Fürdőkád: 40.000.- Ft.-
-Csaptelepek: 15000.- Ft.-/db
Magasabb árú választás is lehetséges, a különbség finanszírozásával.
A kivitelező korábban az utcában épített 6 ingatlant melyeket már birtokba adtuk, komoly érdeklődés esetén szívesen megmutatjuk őket referenciaként.
Központi elhelyezkedésének köszönhetően a közelben megtalálhatóak:
-óvoda 400m
-Móra Ferenc általános iskola 700m
-Tesco 800m
-Vasútállomás 550m
-Polgármesteri hivatal 750m
-Sülysáp 1-es Posta 750m
-Sülysáp Városi Piac 1km
Csok plusz igényelhető!
Tervezett átadás 2026 második negyedév.
Érdeklődő ügyfeleinknek a tervdokumetációt és a műszaki tartalmat készséggel rendelkezésre bocsájtjuk.
INGYENES hitel tanácsadás, CSOK Plusz ügyintézés!
BANKFÜGGETLEN hitelcentrumunk az összes elérhető bank és hitelintézet ajánlatát versenyezteti az Ön kedvéért, ráadásul DÍJMENTESEN.
- Egyedi, bankfiókban nem elérhető kamat- és díjkedvezmények
- Hitelképesség vizsgálat
- Idő, energia és pénz megtakarítás
- Teljes hivatali ügyintézés
Amennyiben hirdetésem felkeltette az érdeklődését vagy egyéb információra van szüksége hívjon bizalommal!
|
|
Eladó családi ház Sülysáp Határ út
ID szám: 82294
Amerikai konyhás: Igen; Kertkapcsolatos: Igen;
Ajánlat
Eladó
Típus
Újépítésű
Épület jellege
Új családi ház
Ár
69.90 MFt
Ingatlan adatai
| Épült |
2026 |
| Megye |
Pest megye |
| Város |
Sülysáp |
| Komfort |
Összkomfort |
|
Épületszintek
tetőtér
pinceszint
földszint
|
1 emelet
|
| Lift |
|
| Hasznos alapterület |
94 nm |
| Telek területe |
522 nm |
| Lakáshoz tartozó kert |
522 nm |
| Terasz területe |
15 nm |
| Egész szobák száma |
4 db |
| Parkolás |
Udvaron-felszíni beálló |
| Emelet
egyszerű emelet
tetőtér
tetőtéri kétszintes
|
Nincs adat
|
Ingatlan bemutatása
Sülysápon a Határ úton 960 m2-es telken, 93,76 m2-es három szoba + amerikai konyhás nappalival rendelkező, energiahatékony családi házak eladók!
Az építkezés December 11.-én indul!
A Határ út Sülysáp Kóka felőli utolsó utcája, mégis közel van a központhoz. A telekről csodálataos panoráma nyílik a mögötte elhelyezkedő szántóra és az erdőre.
Az első ingatlan 438 m2-es kizárólagos használatú telekrésszel kerül kialakításra. Vételára: 69.900.000.- Ft.
A hátsó ingatlan egy 3 méter széles a telek jobb oldalán kialakított úton lesz megközelíthető, 522 m2 telekrésszel fog rendelkezni., vételára: 74.900.000.- Ft.
A tartószerkezeti falak Porotherm P30N+F téglából, betonkoszorúval, fa födémes tetőszerkezettel készülnek. A lábazat 10 cm polisztirol lépésálló, a homlokzatok 15cm-es EPS, a vízszintes födém 25 cm ásványgyapot szigeteléssel lesz ellátva.
Három rétegű üvegekkel szerelt, hat légkamrás műanyag thermo nyílászárók kerülnek beépítésre.
A minimális energiaigényt a megfelelő szigetelésen kívül a megújuló energiát használó gépészet is biztosítja. A fűtést levegő-víz hőszivattyús rendszer fogja végezni.
Burkolatok , szaniterek, belső ajtók, csaptelepek választhatóak a következő értékhatárig:
-Hidegburkolat: 3000 Ft.-/m2
-Melegburkolat: 3000 Ft.-/m2
-Beltéri ajtók: 30.000.Ft.-/db
-Fürdőkád: 40.000.- Ft.-
-Csaptelepek: 15000.- Ft.-/db
Magasabb árú választás is lehetséges, a különbség finanszírozásával.
A kivitelező korábban az utcában épített 6 ingatlant melyeket már birtokba adtuk, komoly érdeklődés esetén szívesen megmutatjuk őket referenciaként.
Központi elhelyezkedésének köszönhetően a közelben megtalálhatóak:
-óvoda 400m
-Móra Ferenc általános iskola 700m
-Tesco 800m
-Vasútállomás 550m
-Polgármesteri hivatal 750m
-Sülysáp 1-es Posta 750m
-Sülysáp Városi Piac 1km
Csok plusz igényelhető!
Tervezett átadás 2026 második negyedév.
Érdeklődő ügyfeleinknek a tervdokumetációt és a műszaki tartalmat készséggel rendelkezésre bocsájtjuk.
INGYENES hitel tanácsadás, CSOK Plusz ügyintézés!
BANKFÜGGETLEN hitelcentrumunk az összes elérhető bank és hitelintézet ajánlatát versenyezteti az Ön kedvéért, ráadásul DÍJMENTESEN.
- Egyedi, bankfiókban nem elérhető kamat- és díjkedvezmények
- Hitelképesség vizsgálat
- Idő, energia és pénz megtakarítás
- Teljes hivatali ügyintézés
Amennyiben hirdetésem felkeltette az érdeklődését vagy egyéb információra van szüksége hívjon bizalommal!