Nyomtatás
Amerikai konyhás: Igen; Kertkapcsolatos: Igen;
|
Eladó családi ház Szeged Vinkler László út |
ID szám: 85155 |
|
Az Ön üzletkötője:
 Balogh Zsolt
 +36-30-857-5027
|
Főbb adatok:
| Ajánlat |
Eladó |
| Típus |
Újépítésű |
| Jelleg |
Új családi ház |
| Ár |
113.99 MFt |
|
Ingatlan adatai
| Épült |
2026 |
| Megye |
Csongrád megye |
| Város |
Szeged |
| Komfort |
Összkomfort |
|
Épületszintek
|
1 emelet |
| Lift |
nincs |
| Hasznos alapterület |
265 nm |
| Telek területe |
265 nm |
| Lakáshoz tartozó kert |
265 nm |
| Egész szobák száma |
4 db |
| Parkolás |
Udvaron-felszíni beálló |
| Emelet |
Nincs adat + Egyszerű emelet |
|
Ingatlan bemutatása
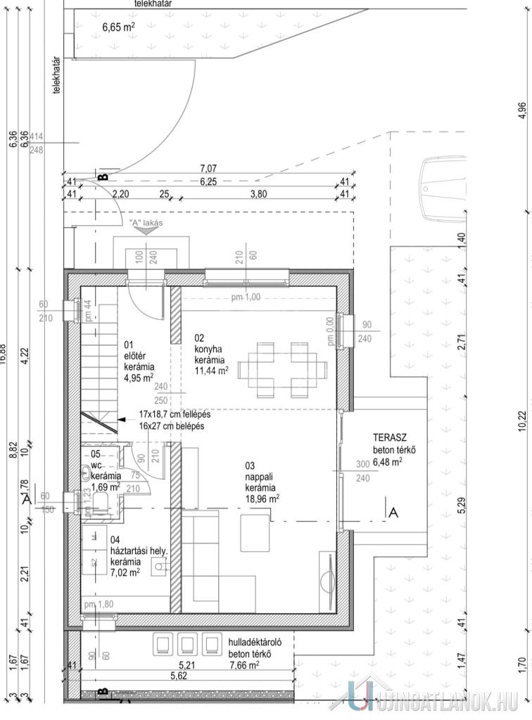
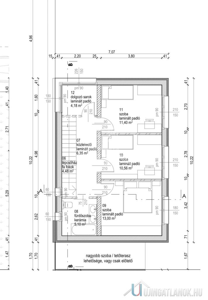
Eladó kulcsrakész családi ház Szegeden, a Liliom lakóparkban BYD mellett!
A modern elosztású ingatlan amerikai konyhás nappalival, 3 szobával, 2 fürdőszobával, dolgozósarokkal és külön háztartási helyiséggel rendelkezik 100 nm2-en.
A ház kulcsrakész állapotban kerül átadásra: választható burkolatokkal, festett falakkal, szaniterekkel, beltéri ajtókkal és komplett elektromos szereléssel. Az épület korszerű háromrétegű nyílászárókkal, levegő–víz hőszivattyús padlófűtéssel, klíma előkészítéssel, valamint modern gépészeti és elektromos rendszerrel készül.
A jól átgondolt elrendezésnek köszönhetően a ház tágas, világos és jól kihasználható tereket biztosít az egész család számára
További információért és megtekintésért keressen bizalommal!
|
|
Eladó családi ház Szeged Vinkler László út
ID szám: 85155
Amerikai konyhás: Igen; Kertkapcsolatos: Igen;
Ajánlat
Eladó
Típus
Újépítésű
Épület jellege
Új családi ház
Ár
113.99 MFt
Ingatlan adatai
| Épült |
2026 |
| Megye |
Csongrád megye |
| Város |
Szeged |
| Komfort |
Összkomfort |
|
Épületszintek
tetőtér
pinceszint
földszint
|
1 emelet
|
| Lift |
|
| Hasznos alapterület |
265 nm |
| Telek területe |
265 nm |
| Lakáshoz tartozó kert |
265 nm |
| Egész szobák száma |
4 db |
| Parkolás |
Udvaron-felszíni beálló |
| Emelet
egyszerű emelet
tetőtér
tetőtéri kétszintes
|
Nincs adat
|
Ingatlan bemutatása
Eladó kulcsrakész családi ház Szegeden, a Liliom lakóparkban BYD mellett!
A modern elosztású ingatlan amerikai konyhás nappalival, 3 szobával, 2 fürdőszobával, dolgozósarokkal és külön háztartási helyiséggel rendelkezik 100 nm2-en.
A ház kulcsrakész állapotban kerül átadásra: választható burkolatokkal, festett falakkal, szaniterekkel, beltéri ajtókkal és komplett elektromos szereléssel. Az épület korszerű háromrétegű nyílászárókkal, levegő–víz hőszivattyús padlófűtéssel, klíma előkészítéssel, valamint modern gépészeti és elektromos rendszerrel készül.
A jól átgondolt elrendezésnek köszönhetően a ház tágas, világos és jól kihasználható tereket biztosít az egész család számára
További információért és megtekintésért keressen bizalommal!