Nyomtatás
Amerikai konyhás: Igen; Kertkapcsolatos: Igen;

Eladó családi ház Székesfehérvár Rába utca

ID szám: 83336

Az Ön üzletkötője:

Posztlné Leiti Gabriella
+36-30-503-0000

Főbb adatok:

Ajánlat Eladó
Típus Újépítésű
Jelleg Új családi ház
Ár 87.50 MFt

Ingatlan adatai

Épült 2025
Megye Fejér megye
Város Székesfehérvár
Komfort Összkomfort
Épületszintek 1 emelet
Lift nincs
Hasznos alapterület 120 nm
Telek területe 450 nm
Lakáshoz tartozó kert 450 nm
Terasz területe 12 nm
Egész szobák száma 5 db
Parkolás Udvaron-felszíni beálló
Emelet Nincs adat + Egyszerű emelet

Ingatlan bemutatása

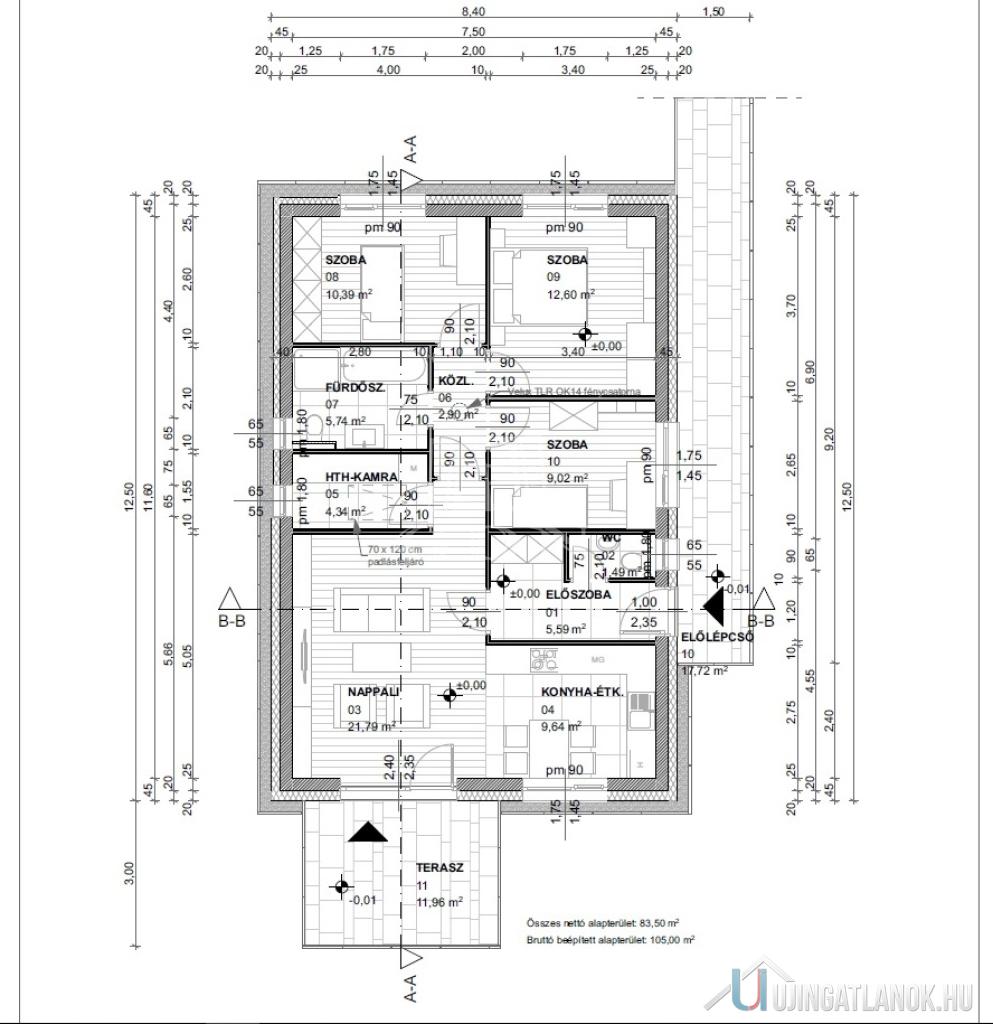
Új építésű, korszerű, önálló családi házak 450m2 kerttel! Otthon Start Program ( 3%-os hitel) igényelhető! H-004368. Székesfehérváron, Feketehegyen frekventált, kedvelt részén (Rába utca-Körösi utca) RÁBA-LIGET Lakóparkban, összközműves 515m2-es építési telken eladó egy egyszintes, új építésű igényes, egyedi kivitelezésű 105 m2 hasznos alapterületű, nappali + 4 szobás családi ház terasszal. Energia hatékony ingatlan, rezsiköltség rendkívül alacsony! Az ingatlan könnyen megközelíthető, a környék tömegközlekedése jó, pár perc alatt gyalogosan elérhető a buszmegálló. A központban orvos, iskola, bölcsőde, óvoda, Bevásárló központ, üzletek megtalálhatóak. Környezete kiépült. A területre 6db családi ház épül, elérhető ingatlanok: - 2 db nappali+2 szobás, ELKELT - 3db nappali+3 szobás : 2 DB SZABAD - 1db nappali+4 szobás : ELKELT A ház tágas, világos, minőségi anyagokból készült. A ház szerkezete Porotherm tégla kívülről 20 cm szigeteléssel nemes vakolattal. A födém külső borítás cseréppel (BRAMAC) készül alatta a megfelelő vastagságú fóliázattal. A nyílászárók műanyagból készültek,3 rétegű hőszigetelt üvegezéssel, rejtett redőny tokkal. A burkolatok magas minőségű járólap, illetve laminált padló. Fűtése-melegvíz: hőszivattyú megoldással, padlófűtéssel. Az ár tartalmazza:, - a kulcsrakész kivitelezésen felül, a telkeket elválasztó kerítést 3 oldalról, 1 db klímát, térkövezett teraszt és járdát, H-tarifa bekötést , locsolómérős vízórát Átadási határidő: a 3 szobás házak 2026.05.30 hó Az ár NEM tartalmazza: - beépített bútorok, konyhabútor gépekkel, utcafronti kerítés kapu, redőny ( beépített redőnytokot igen, motoros kiállással), rovarhálót Az ár tartalmazza: a kulcsrakész kivitelezést, Megközelítés: aszfaltozott útról, saját utcafront, saját telekterület, ezen belül saját önálló mérőórák. (víz, locsolómérő is, villany, csatorna van) A ház elosztását tekintve: Amerikai konyhás nappali étkező + 3 szoba (11m2), gardrób + 2db fürdőszoba + wc, terasz (12m2) Praktikusság miatt fő szempont volt, az élhető terek kialakítása is ezért 11 m2 nagyságú hálószoba készült. A nappaliból közvetlen kijárat van a teraszra Fontosabb paraméterek: ● 2025-ben épül ● 450 m2 önálló telekterület ● Porotherm tégla, 20cm grafitos szigeteléssel, nemes vakolattal, padlóban 10cm, födémen 25cm szigetelés ● Nappali + 4 hálószoba + kicsi gardrób+ háztartási helyiség + 2 fürdőszoba-wc-vel+ terasz ● Saját telekterület, saját utcafront ( 2 utcára) ● Akadálymentesített bejutás ● Hőszivattyú, padlófűtés, 1db klíma az árban ● a riasztó és klíma rendszer alapszerelés ● Alacsony rezsiköltség, Eladási irányár: • 2 szobás ház (nappali + 2 szoba): ELKELT • 3 szobás ház nettó 85m2 (nappali + 3 szoba): 87.500.000 Ft 2DB SZABAD • 4 szobás ház nettó 105m2 (nappali + 4 szoba): ELKELT Igény esetén bizonyos készültségi fok eléréséig, a belső burkolatok, ajtók szaniterek választhatók. Megbízható és tapasztalt kivitelező jegyzi a ház építését, több mint 30 éve múlttal, számtalan referenciaépülettel rendelkezik Székesfehérváron. A vásárláshoz, a jelenleg aktuális otthonteremtésére vonatkozó támogatás igénybe vehető (CSOK, Jelzáloghitel, Babaváró kölcsön, Piaci hitel…) Az ingatlan adottságainak, fekvésének köszönhetően alkalmas, gyermekes családoknak.. továbbá vállalkozásra, üzleti vagy befektetési célra, hiszen akár bérbe adható,vagy irodai tevékenység,(Csendes tevékenység engedélyezett). Ha felkeltette érdeklődését, hívjon bizalommal, (hétvégén is) éljen ingyenes, személyre szabott hitelügyintézés szolgáltatásunkkal. Segítünk továbbá adásvételhez szükséges ügyvédi közreműködésben, energetikai tanúsítvány, valamint értékbecslés elkészítésében. For English information please send a message.

Eladó családi ház Székesfehérvár Rába utca

ID szám: 83336

Amerikai konyhás: Igen; Kertkapcsolatos: Igen;

Ajánlat

Eladó

Típus

Újépítésű

Épület jellege

Új családi ház

Ár

87.50 MFt

Ingatlan adatai

Épült 2025
Megye Fejér megye
Város Székesfehérvár
Komfort Összkomfort
Épületszintek tetőtér pinceszint földszint 1 emelet nincs nincs nincs
Lift nincs
Hasznos alapterület 120 nm
Telek területe 450 nm
Lakáshoz tartozó kert 450 nm
Terasz területe 12 nm
Egész szobák száma 5 db
Parkolás Udvaron-felszíni beálló
Emelet egyszerű emelet tetőtér tetőtéri kétszintes Nincs adat van nincs nincs
Nagyításhoz kattintson a képre

Az Ön üzletkötője:

Posztlné Leiti Gabriella
+36-30-503-0000
Üzenet az üzletkötőnek Ingatlan ajánlása Nyomtatási kép
Megosztás Facebookon Megosztás Twitteren

Ingatlan bemutatása

Új építésű, korszerű, önálló családi házak 450m2 kerttel! Otthon Start Program ( 3%-os hitel) igényelhető! H-004368. Székesfehérváron, Feketehegyen frekventált, kedvelt részén (Rába utca-Körösi utca) RÁBA-LIGET Lakóparkban, összközműves 515m2-es építési telken eladó egy egyszintes, új építésű igényes, egyedi kivitelezésű 105 m2 hasznos alapterületű, nappali + 4 szobás családi ház terasszal. Energia hatékony ingatlan, rezsiköltség rendkívül alacsony! Az ingatlan könnyen megközelíthető, a környék tömegközlekedése jó, pár perc alatt gyalogosan elérhető a buszmegálló. A központban orvos, iskola, bölcsőde, óvoda, Bevásárló központ, üzletek megtalálhatóak. Környezete kiépült. A területre 6db családi ház épül, elérhető ingatlanok: - 2 db nappali+2 szobás, ELKELT - 3db nappali+3 szobás : 2 DB SZABAD - 1db nappali+4 szobás : ELKELT A ház tágas, világos, minőségi anyagokból készült. A ház szerkezete Porotherm tégla kívülről 20 cm szigeteléssel nemes vakolattal. A födém külső borítás cseréppel (BRAMAC) készül alatta a megfelelő vastagságú fóliázattal. A nyílászárók műanyagból készültek,3 rétegű hőszigetelt üvegezéssel, rejtett redőny tokkal. A burkolatok magas minőségű járólap, illetve laminált padló. Fűtése-melegvíz: hőszivattyú megoldással, padlófűtéssel. Az ár tartalmazza:, - a kulcsrakész kivitelezésen felül, a telkeket elválasztó kerítést 3 oldalról, 1 db klímát, térkövezett teraszt és járdát, H-tarifa bekötést , locsolómérős vízórát Átadási határidő: a 3 szobás házak 2026.05.30 hó Az ár NEM tartalmazza: - beépített bútorok, konyhabútor gépekkel, utcafronti kerítés kapu, redőny ( beépített redőnytokot igen, motoros kiállással), rovarhálót Az ár tartalmazza: a kulcsrakész kivitelezést, Megközelítés: aszfaltozott útról, saját utcafront, saját telekterület, ezen belül saját önálló mérőórák. (víz, locsolómérő is, villany, csatorna van) A ház elosztását tekintve: Amerikai konyhás nappali étkező + 3 szoba (11m2), gardrób + 2db fürdőszoba + wc, terasz (12m2) Praktikusság miatt fő szempont volt, az élhető terek kialakítása is ezért 11 m2 nagyságú hálószoba készült. A nappaliból közvetlen kijárat van a teraszra Fontosabb paraméterek: ● 2025-ben épül ● 450 m2 önálló telekterület ● Porotherm tégla, 20cm grafitos szigeteléssel, nemes vakolattal, padlóban 10cm, födémen 25cm szigetelés ● Nappali + 4 hálószoba + kicsi gardrób+ háztartási helyiség + 2 fürdőszoba-wc-vel+ terasz ● Saját telekterület, saját utcafront ( 2 utcára) ● Akadálymentesített bejutás ● Hőszivattyú, padlófűtés, 1db klíma az árban ● a riasztó és klíma rendszer alapszerelés ● Alacsony rezsiköltség, Eladási irányár: • 2 szobás ház (nappali + 2 szoba): ELKELT • 3 szobás ház nettó 85m2 (nappali + 3 szoba): 87.500.000 Ft 2DB SZABAD • 4 szobás ház nettó 105m2 (nappali + 4 szoba): ELKELT Igény esetén bizonyos készültségi fok eléréséig, a belső burkolatok, ajtók szaniterek választhatók. Megbízható és tapasztalt kivitelező jegyzi a ház építését, több mint 30 éve múlttal, számtalan referenciaépülettel rendelkezik Székesfehérváron. A vásárláshoz, a jelenleg aktuális otthonteremtésére vonatkozó támogatás igénybe vehető (CSOK, Jelzáloghitel, Babaváró kölcsön, Piaci hitel…) Az ingatlan adottságainak, fekvésének köszönhetően alkalmas, gyermekes családoknak.. továbbá vállalkozásra, üzleti vagy befektetési célra, hiszen akár bérbe adható,vagy irodai tevékenység,(Csendes tevékenység engedélyezett). Ha felkeltette érdeklődését, hívjon bizalommal, (hétvégén is) éljen ingyenes, személyre szabott hitelügyintézés szolgáltatásunkkal. Segítünk továbbá adásvételhez szükséges ügyvédi közreműködésben, energetikai tanúsítvány, valamint értékbecslés elkészítésében. For English information please send a message.

Megosztás Facebookon Megosztás Twitteren
www.ujingatlanok.hu - QR kód

Linkajánló

 

LinkBank