Nyomtatás
Amerikai konyhás: Igen; Kertkapcsolatos: Igen;

Eladó családi ház Székesfehérvár Sajó utca

ID szám: 85221

Az Ön üzletkötője:

Posztlné Leiti Gabriella
+36-30-503-0000

Főbb adatok:

Ajánlat Eladó
Típus Újszerű
Jelleg Új családi ház
Ár 89.50 MFt

Ingatlan adatai

Épült 2026
Megye Fejér megye
Város Székesfehérvár
Komfort Összkomfort
Épületszintek 1 emelet
Lift nincs
Hasznos alapterület 101 nm
Telek területe 510 nm
Lakáshoz tartozó kert 510 nm
Terasz területe 12 nm
Egész szobák száma 4 db
Parkolás Udvaron-felszíni beálló
Emelet Nincs adat + Egyszerű emelet

Ingatlan bemutatása

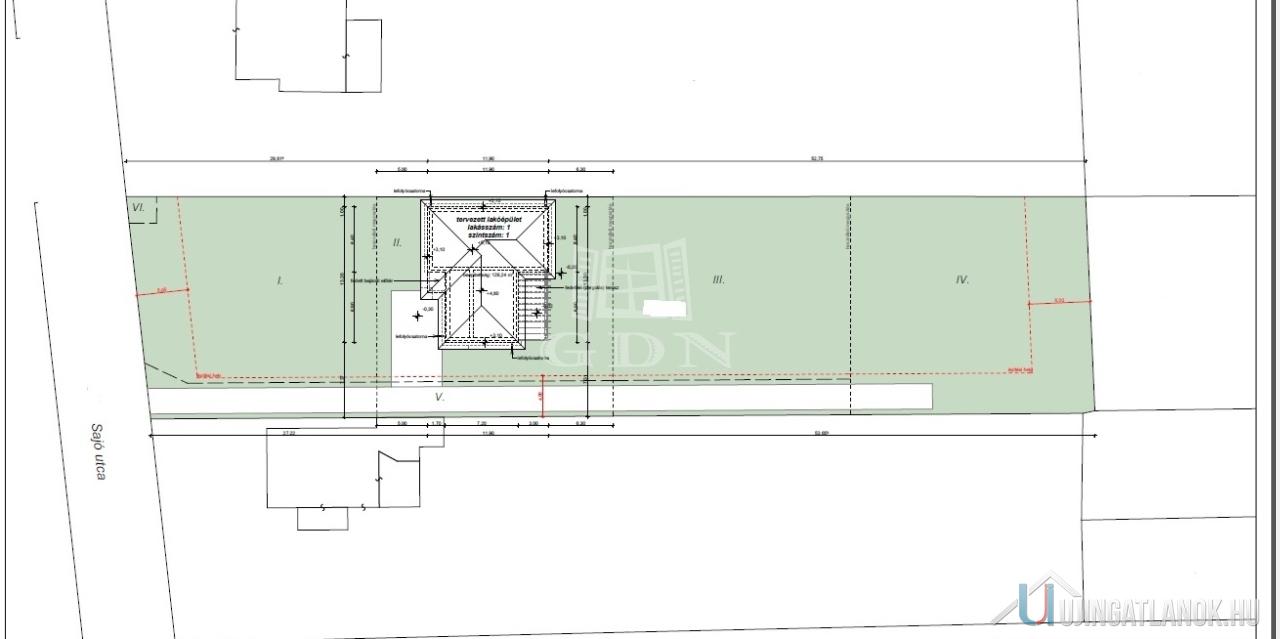
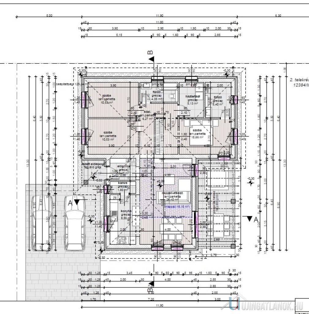
Új építésű, korszerű, önálló családiház 510 m2 kerttel! Otthon Start Program ( 3%-os hitel) igényelhető! H-004804. Székesfehérváron, Feketehegyen frekventált, kedvelt részén (Sajó utca) összközműves 510m2-es építési telken eladó egy egyszintes, új építésű igényes, egyedi kivitelezésű 101 m2 hasznos alapterületű, nappali + 3 szobás családi ház terasszal. Energiahatékony ingatlan, rezsiköltség rendkívül alacsony! Az ingatlan könnyen megközelíthető, a környék tömegközlekedése jó, pár perc alatt gyalogosan elérhető a buszmegálló. A központban orvos, iskola, bölcsőde, óvoda, Bevásárló központ, üzletek megtalálhatóak. Környezete kiépült. A területre 4db családiház épül, ez a ház a II. számú A ház tágas, világos, minőségi anyagokból készült. A ház szerkezete Porotherm tégla kívülről 20 cm szigeteléssel nemesvakolattal. A födém külső borítás antracit cseréppel készül alatta a megfelelő vastagságú fóliázattal. A nyílászárók műanyagból készültek,3 rétegű hőszigetelt üvegezéssel, rejtett redőny tokkal. A burkolatok magas minőségű járólap, illetve laminált padló. Fűtése-melegvíz: hőszivattyú megoldással, padlófűtéssel. 1db klíma a vételárban. Az ár tartalmazza:, - a kulcsrakész kivitelezésen felül, a telkeket elválasztó kerítést 3D kerítést 3 oldalról, utcafronti épített homokkő kerítést, térkövezett teraszt és járdát, , redőnyöket, 1db klímát Átadási ( műszaki) határidő: 2026.12.30 hó Az ár NEM tartalmazza: - beépített bútorok, konyhabútor gépekkel, Megközelítés: aszfaltozott útról, saját utcafront, saját telekterület, ezen belül saját önálló mérőórák. (víz, villany, csatorna van) A ház elosztását tekintve: Amerikaikonyhás nappali étkező + 3szoba (15-11m2, a szülői háló 15m2 saját fürdőszobával), gardrób + 2db fürdőszoba + wc, terasz (12m2) Praktikusság miatt fő szempont volt, az élhető terek kialakítása is ezért 15m2-11 m2 nagyságú hálószobák készültek. A nappaliból közvetlen kijárat van a teraszra Fontosabb paraméterek: ● 2026-ban épül ● 510 m2 önálló telekterület ● Porotherm tégla, 15cm szigeteléssel, nemesvakolattal, padlóban 10cm, födémen 25cm szigetelés ● Nappali + 3 hálószoba + kicsi gardrób+ háztartási helyiség + 2 fürdőszoba-wc-vel+ terasz ● Saját telekterület, saját utcafront ● Akadálymentesített bejutás ● Hőszivattyú, padlófűtés, 100 l Ariston forróvíztároló ● a riasztó rendszer alapszerelés , 3D kerítés, homokkő épített utcafronti kerítés ● Alacsony rezsiköltség, A+ energetika Eladási irányár: 89 500 000.- ft Igény esetén bizonyos készültségi fok eléréséig, a belső burkolatok, ajtók szaniterek választhatók. Megbízható és tapasztalt kivitelező jegyzi a ház építését, több mint éves múlttal, számtalan referenciaépülettel rendelkezik Székesfehérváron. A vásárláshoz, a jelenleg aktuális otthonteremtésére vonatkozó támogatás igénybe vehető (OSP 3%, CSOK Plusz, Jelzáloghitel, Babaváró kölcsön, Piaci hitel…) Az ingatlan adottságainak, fekvésének köszönhetően alkalmas, gyermekes családoknak.. továbbá vállalkozásra, üzleti vagy befektetési célra, hiszen akár bérbe adható,vagy irodai tevékenység,(Csendes tevékenység engedélyezett). Ha felkeltette érdeklődését, hívjon bizalommal, (hétvégén is) éljen ingyenes, személyre szabott hitelügyintézés szolgáltatásunkkal. Segítünk továbbá adásvételhez szükséges ügyvédi közreműködésben, energetikai tanúsítvány, valamint értékbecslés elkészítésében. For English information please send a message.

Eladó családi ház Székesfehérvár Sajó utca

ID szám: 85221

Amerikai konyhás: Igen; Kertkapcsolatos: Igen;

Ajánlat

Eladó

Típus

Újszerű

Épület jellege

Új családi ház

Ár

89.50 MFt

Ingatlan adatai

Épült 2026
Megye Fejér megye
Város Székesfehérvár
Komfort Összkomfort
Épületszintek tetőtér pinceszint földszint 1 emelet nincs nincs nincs
Lift nincs
Hasznos alapterület 101 nm
Telek területe 510 nm
Lakáshoz tartozó kert 510 nm
Terasz területe 12 nm
Egész szobák száma 4 db
Parkolás Udvaron-felszíni beálló
Emelet egyszerű emelet tetőtér tetőtéri kétszintes Nincs adat van nincs nincs
Nagyításhoz kattintson a képre

Az Ön üzletkötője:

Posztlné Leiti Gabriella
+36-30-503-0000
Üzenet az üzletkötőnek Ingatlan ajánlása Nyomtatási kép
Megosztás Facebookon Megosztás Twitteren

Ingatlan bemutatása

Új építésű, korszerű, önálló családiház 510 m2 kerttel! Otthon Start Program ( 3%-os hitel) igényelhető! H-004804. Székesfehérváron, Feketehegyen frekventált, kedvelt részén (Sajó utca) összközműves 510m2-es építési telken eladó egy egyszintes, új építésű igényes, egyedi kivitelezésű 101 m2 hasznos alapterületű, nappali + 3 szobás családi ház terasszal. Energiahatékony ingatlan, rezsiköltség rendkívül alacsony! Az ingatlan könnyen megközelíthető, a környék tömegközlekedése jó, pár perc alatt gyalogosan elérhető a buszmegálló. A központban orvos, iskola, bölcsőde, óvoda, Bevásárló központ, üzletek megtalálhatóak. Környezete kiépült. A területre 4db családiház épül, ez a ház a II. számú A ház tágas, világos, minőségi anyagokból készült. A ház szerkezete Porotherm tégla kívülről 20 cm szigeteléssel nemesvakolattal. A födém külső borítás antracit cseréppel készül alatta a megfelelő vastagságú fóliázattal. A nyílászárók műanyagból készültek,3 rétegű hőszigetelt üvegezéssel, rejtett redőny tokkal. A burkolatok magas minőségű járólap, illetve laminált padló. Fűtése-melegvíz: hőszivattyú megoldással, padlófűtéssel. 1db klíma a vételárban. Az ár tartalmazza:, - a kulcsrakész kivitelezésen felül, a telkeket elválasztó kerítést 3D kerítést 3 oldalról, utcafronti épített homokkő kerítést, térkövezett teraszt és járdát, , redőnyöket, 1db klímát Átadási ( műszaki) határidő: 2026.12.30 hó Az ár NEM tartalmazza: - beépített bútorok, konyhabútor gépekkel, Megközelítés: aszfaltozott útról, saját utcafront, saját telekterület, ezen belül saját önálló mérőórák. (víz, villany, csatorna van) A ház elosztását tekintve: Amerikaikonyhás nappali étkező + 3szoba (15-11m2, a szülői háló 15m2 saját fürdőszobával), gardrób + 2db fürdőszoba + wc, terasz (12m2) Praktikusság miatt fő szempont volt, az élhető terek kialakítása is ezért 15m2-11 m2 nagyságú hálószobák készültek. A nappaliból közvetlen kijárat van a teraszra Fontosabb paraméterek: ● 2026-ban épül ● 510 m2 önálló telekterület ● Porotherm tégla, 15cm szigeteléssel, nemesvakolattal, padlóban 10cm, födémen 25cm szigetelés ● Nappali + 3 hálószoba + kicsi gardrób+ háztartási helyiség + 2 fürdőszoba-wc-vel+ terasz ● Saját telekterület, saját utcafront ● Akadálymentesített bejutás ● Hőszivattyú, padlófűtés, 100 l Ariston forróvíztároló ● a riasztó rendszer alapszerelés , 3D kerítés, homokkő épített utcafronti kerítés ● Alacsony rezsiköltség, A+ energetika Eladási irányár: 89 500 000.- ft Igény esetén bizonyos készültségi fok eléréséig, a belső burkolatok, ajtók szaniterek választhatók. Megbízható és tapasztalt kivitelező jegyzi a ház építését, több mint éves múlttal, számtalan referenciaépülettel rendelkezik Székesfehérváron. A vásárláshoz, a jelenleg aktuális otthonteremtésére vonatkozó támogatás igénybe vehető (OSP 3%, CSOK Plusz, Jelzáloghitel, Babaváró kölcsön, Piaci hitel…) Az ingatlan adottságainak, fekvésének köszönhetően alkalmas, gyermekes családoknak.. továbbá vállalkozásra, üzleti vagy befektetési célra, hiszen akár bérbe adható,vagy irodai tevékenység,(Csendes tevékenység engedélyezett). Ha felkeltette érdeklődését, hívjon bizalommal, (hétvégén is) éljen ingyenes, személyre szabott hitelügyintézés szolgáltatásunkkal. Segítünk továbbá adásvételhez szükséges ügyvédi közreműködésben, energetikai tanúsítvány, valamint értékbecslés elkészítésében. For English information please send a message.

Megosztás Facebookon Megosztás Twitteren
www.ujingatlanok.hu - QR kód

Linkajánló

 

LinkBank