Nyomtatás
Amerikai konyhás: Igen; Kertkapcsolatos: Igen;

Eladó családi ház Székesfehérvár Vizivárosban

ID szám: 84176

Az Ön üzletkötője:

Posztlné Leiti Gabriella
+36-30-503-0000

Főbb adatok:

Ajánlat Eladó
Típus Újszerű
Jelleg Új családi ház
Ár 186 MFt

Ingatlan adatai

Épült 2020
Megye Fejér megye
Város Székesfehérvár
Komfort Összkomfort
Fűtési mód Cirkófűtés
Épületszintek 1 emelet
Lift nincs
Hasznos alapterület 164 nm
Telek területe 600 nm
Lakáshoz tartozó kert 600 nm
Terasz területe 20 nm
Fűtési mód Cirkófűtés
Egész szobák száma 5 db
Parkolás Teremgarázs-garázs
Emelet Nincs adat + Egyszerű emelet

Ingatlan bemutatása

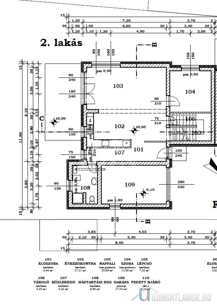
Eladó prémium családi ház – modern műszaki tartalommal, szeparált kerttel! H-004743. Székesfehérváron, Vízívárosban- frekventált helyen ( Bem J utca), 164m2-es nappali+4 szobás családiház, 600m2-es kerttel eladó! Kivételes lehetőség azok számára, akik korszerű műszaki megoldásokkal felszerelt, tágas otthont keresnek nyugodt környezetben! Kiváló lokáció: Az ingatlan elhelyezkedésének köszönhetően a Történelmi Belváros, illetve az M7 autópálya pár perc távolságra található, mindemellett bevásárló központ, iskola, óvoda…. buszmegálló, vasútállomás is könnyen megközelíthető. A ház mögött elhelyezkedő telek teljesen elszeparált, füvesített, parkosított, így ideális választás lehet mindenki számára, mivel nem utcafronti. A kert mérete és kialakítása lehetővé teszi akár medence elhelyezését is. A szobák kifejezetten jó méretűek ( 13m2-14m2), élhető, praktikus elrendezéssel. ________________________________________ Főbb paraméterek: • 2020-as építés, 600m2 telek • Porotherm 30 tégla + 15 cm homlokzati szigetelés • 164 m² hasznos alapterület, 2 szinten • Nappali + 4 szoba • Konyha + kamra • Háztartási helyiség • 2 fürdőszoba + 1 vendég WC Műszaki tartalom és extrák: • Gázkazán + minden szobában klíma • 6,5 kW-os napelem rendszer ( SZALDÓS) • Elektromos redőnyök és rovarhálók minden nyílászárón • Elektromos teraszárnyékoló (a terasz teljes területére) • Beépített öntözőrendszer • Vízlágyító berendezés • Kamera- és riasztórendszer Parkolás: • 1 állásos garázs • Elektromos autó töltő kiépítve • További 3 autó számára beállási lehetőség ________________________________________ Rezsi költségek: • Villanyszámla: 0 Ft • Gázszámla: kb. 10.000 Ft/hó ________________________________________ Irányár: 186.000.000 Ft Energiahatékony, modern, tágas családi otthon, ahol a műszaki tartalom és a kényelmi extrák valóban a mai igényeket szolgálják. Amennyiben egy azonnal költözhető, prémium minőségű ingatlant keres, amely hosszú távon is fenntartható és gazdaságos, ez a ház kiváló választás lehet! Ne maradjon le róla! További információért vagy megtekintésért keressen bizalommal. Ha felkeltette érdeklődését, és további részleteket szeretne megtudni, hívjon bizalommal, éljen, személyre szabott ingyenes hitelügyintézés szolgáltatásunkkal. Segítünk továbbá adásvételhez szükséges ügyvédi közreműködésben, energetikai tanúsítvány, valamint értékbecslés elkészítésében.

Eladó családi ház Székesfehérvár Vizivárosban

ID szám: 84176

Amerikai konyhás: Igen; Kertkapcsolatos: Igen;

Ajánlat

Eladó

Típus

Újszerű

Épület jellege

Új családi ház

Ár

186 MFt

Ingatlan adatai

Épült 2020
Megye Fejér megye
Város Székesfehérvár
Komfort Összkomfort
Épületszintek tetőtér pinceszint földszint 1 emelet nincs nincs nincs
Lift nincs
Hasznos alapterület 164 nm
Telek területe 600 nm
Lakáshoz tartozó kert 600 nm
Terasz területe 20 nm
Fűtési mód Cirkófűtés
Egész szobák száma 5 db
Parkolás Teremgarázs-garázs
Emelet egyszerű emelet tetőtér tetőtéri kétszintes Nincs adat van nincs nincs
Nagyításhoz kattintson a képre

Az Ön üzletkötője:

Posztlné Leiti Gabriella
+36-30-503-0000
Üzenet az üzletkötőnek Ingatlan ajánlása Nyomtatási kép
Megosztás Facebookon Megosztás Twitteren

Ingatlan bemutatása

Eladó prémium családi ház – modern műszaki tartalommal, szeparált kerttel! H-004743. Székesfehérváron, Vízívárosban- frekventált helyen ( Bem J utca), 164m2-es nappali+4 szobás családiház, 600m2-es kerttel eladó! Kivételes lehetőség azok számára, akik korszerű műszaki megoldásokkal felszerelt, tágas otthont keresnek nyugodt környezetben! Kiváló lokáció: Az ingatlan elhelyezkedésének köszönhetően a Történelmi Belváros, illetve az M7 autópálya pár perc távolságra található, mindemellett bevásárló központ, iskola, óvoda…. buszmegálló, vasútállomás is könnyen megközelíthető. A ház mögött elhelyezkedő telek teljesen elszeparált, füvesített, parkosított, így ideális választás lehet mindenki számára, mivel nem utcafronti. A kert mérete és kialakítása lehetővé teszi akár medence elhelyezését is. A szobák kifejezetten jó méretűek ( 13m2-14m2), élhető, praktikus elrendezéssel. ________________________________________ Főbb paraméterek: • 2020-as építés, 600m2 telek • Porotherm 30 tégla + 15 cm homlokzati szigetelés • 164 m² hasznos alapterület, 2 szinten • Nappali + 4 szoba • Konyha + kamra • Háztartási helyiség • 2 fürdőszoba + 1 vendég WC Műszaki tartalom és extrák: • Gázkazán + minden szobában klíma • 6,5 kW-os napelem rendszer ( SZALDÓS) • Elektromos redőnyök és rovarhálók minden nyílászárón • Elektromos teraszárnyékoló (a terasz teljes területére) • Beépített öntözőrendszer • Vízlágyító berendezés • Kamera- és riasztórendszer Parkolás: • 1 állásos garázs • Elektromos autó töltő kiépítve • További 3 autó számára beállási lehetőség ________________________________________ Rezsi költségek: • Villanyszámla: 0 Ft • Gázszámla: kb. 10.000 Ft/hó ________________________________________ Irányár: 186.000.000 Ft Energiahatékony, modern, tágas családi otthon, ahol a műszaki tartalom és a kényelmi extrák valóban a mai igényeket szolgálják. Amennyiben egy azonnal költözhető, prémium minőségű ingatlant keres, amely hosszú távon is fenntartható és gazdaságos, ez a ház kiváló választás lehet! Ne maradjon le róla! További információért vagy megtekintésért keressen bizalommal. Ha felkeltette érdeklődését, és további részleteket szeretne megtudni, hívjon bizalommal, éljen, személyre szabott ingyenes hitelügyintézés szolgáltatásunkkal. Segítünk továbbá adásvételhez szükséges ügyvédi közreműködésben, energetikai tanúsítvány, valamint értékbecslés elkészítésében.

Megosztás Facebookon Megosztás Twitteren
www.ujingatlanok.hu - QR kód

Linkajánló

 

LinkBank