Nyomtatás
|
Amerikai konyhás: Igen; Kertkapcsolatos: Igen;
|
||
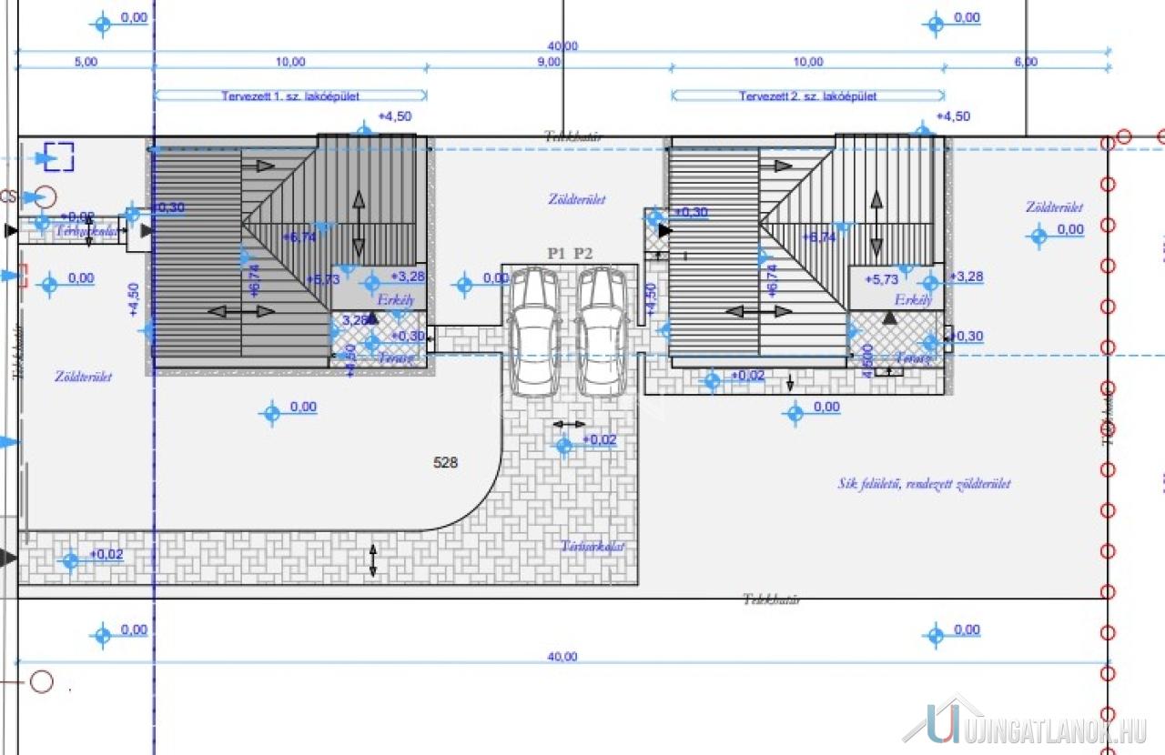
Eladó családi ház Tiszasziget Családi ház eladó Tiszaszigeten! |
ID szám: 82121 | |
|
Eladó családi ház Tiszasziget Családi ház eladó Tiszaszigeten!
ID szám: 82121
Amerikai konyhás: Igen; Kertkapcsolatos: Igen;
Ajánlat
Eladó
Típus
Újépítésű
Épület jellege
Új családi ház
Ár
69.80 MFt
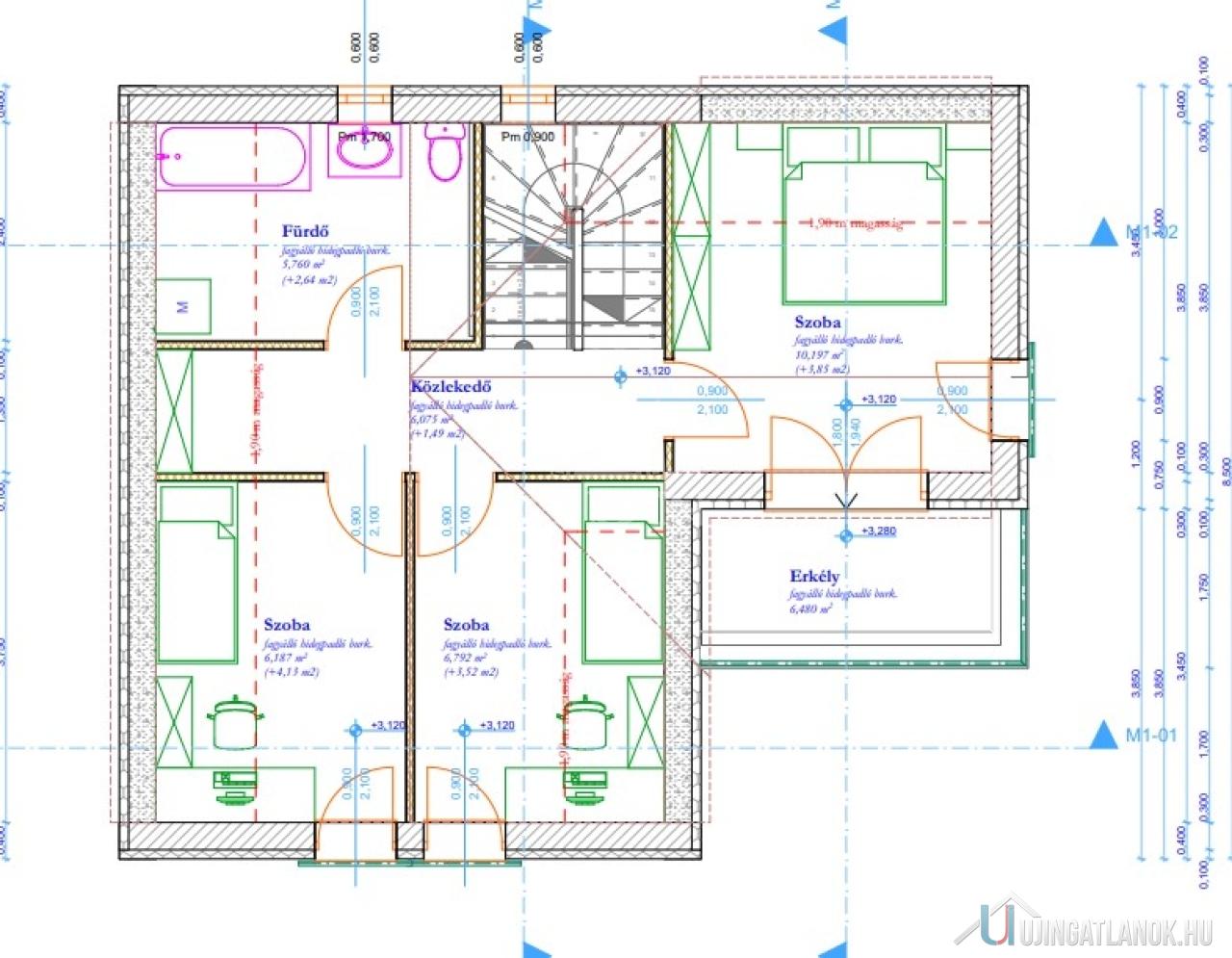
Ingatlan adatai
| Épült | 2025 |
|---|---|
| Megye | Csongrád megye |
| Város | Tiszasziget |
| Komfort | Összkomfort |
| Épületszintek tetőtér pinceszint földszint |
1 emelet
|
| Lift |
|
| Hasznos alapterület | 92 nm |
| Telek területe | 300 nm |
| Lakáshoz tartozó kert | 300 nm |
| Terasz területe | 8 nm |
| Egész szobák száma | 1 db |
| Félszobák száma | 3 db |
| Parkolás | Udvaron-felszíni beálló |
| Emelet egyszerű emelet tetőtér tetőtéri kétszintes |
Nincs adat
|
Nagyításhoz kattintson a képre
Az Ön üzletkötője:
Vetró-Gyenizse Dóra Anna
+36-30-974-5561


