Nyomtatás
Amerikai konyhás: Igen; Kertkapcsolatos: Igen;

Eladó családi ház Üllő Impozáns luxusház!

ID szám: 83443

Az Ön üzletkötője:

Szuhai Zoltán
+36-20-955-2867

Főbb adatok:

Ajánlat Eladó
Típus Újépítésű
Jelleg Új családi ház
Ár 169.90 MFt

Ingatlan adatai

Épült 2025
Megye Pest megye
Város Üllő
Komfort Dupla komfort
Fűtési mód Cirkófűtés
Épületszintek 1 emelet
Lift nincs
Hasznos alapterület 194 nm
Telek területe 558 nm
Lakáshoz tartozó kert 558 nm
Erkély területe 7 nm
Terasz területe 15 nm
Fűtési mód Cirkófűtés
Egész szobák száma 4 db
Parkolás Teremgarázs-garázs
Emelet Nincs adat + Egyszerű emelet

Ingatlan bemutatása

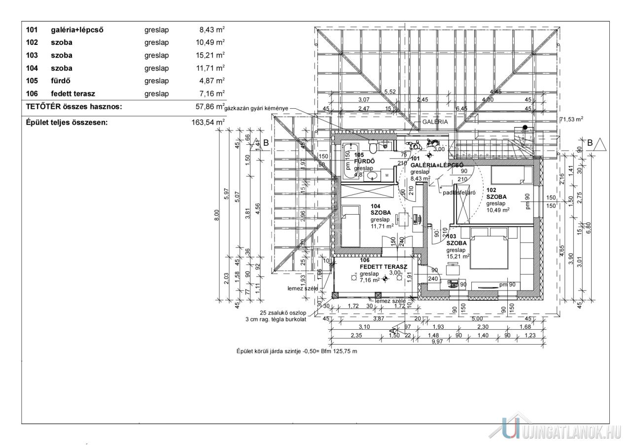
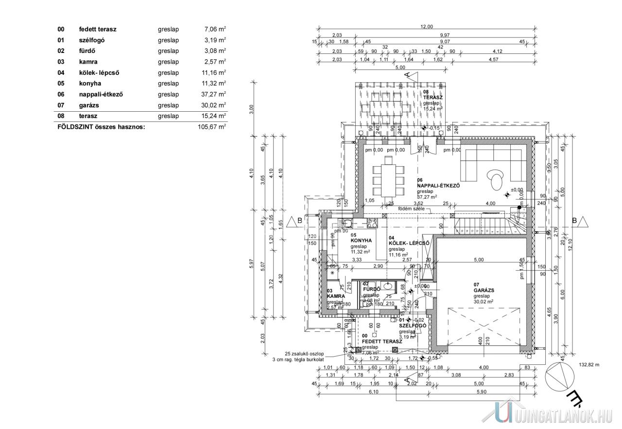
Eladó Üllő csendes kertvárosi részén egy új építésű kétszintes nettó:163,54m2-es 4szobás impozáns családi ház, amely 558m2-es teleken helyezkedik el. **INGATLAN HELYSZÍNE, LOKÁCIÓ** Az új építésű családi ház, ideális elhelyezkedésének köszönhetően könnyű hozzáférést biztosít Budapest és környéke felé. Békés, csendes környezet, amely távol tart a város zajától, miközben minden fontos szolgáltatás közel van. Közlekedés szempontjából is kiváló döntés, pár perc alatt elérhető az autópálya. Urbanizációs előnyei közé tartoznak az iskolák, óvodák, bevásárlási lehetőségek és egészségügyi létesítmények közelsége. **ÉPÜLET JELLEMZŐI KÍVÜLRŐL** • Falazat: 30 cm-es Porotherm Klíma tégla, 15 cm-es Ytong válaszfalak • Hőszigetelés: 10–20 cm-es grafitos homlokzati szigetelés, 10 cm zárt és 20 cm nyitott cellás poliuretán hab az aljzatban, szarufák között és a zárófödémen • Nyílászárók: 82mm-es profilvastagság, 3 rétegű üveg, gázzal töltve, dió RAL színű műanyag ablakok, vele megegyező színű elektromos alumínium redőny + beépített szúnyogháló • Beltéri ajtók: Síkban záródó, rejtett zsanéros, V gravíros , festett MDF, automata küszöbbel és olasz króm kilinccsel • Tető: Terrán Coppo Ódon betoncserép, 50 év garanciával • Külső megjelenés: kovácsoltvas korlátok, úszókapu, szilikonos Revco vékonyvakolat A kertbe elhelyezésre került egy 6 m²-es hőszigetelt faház elektromos padlófűtéssel, ami kerti tárolóként funkcionálhat. **AZ INGATLAN JELLEMZŐI BELÜLRŐL** • Lakótér összesen: 194 m² (garázzsal együtt) • Garázs: 30 m²-es két autó beállására alkalmas, ipari műgyanta padlóval, padlófűtéssel, elektromos autótöltésre kialakított gyorstöltő kiállással, Hörmann garázskapuval. • Konyhabútor: AEG, Whirlpool, Electrolux beépített gépekkel, led világítással, tömör fa munkalappal, Blum vasalattal, Blanco gránitmosogató, Blanco csaptelep. • Fűtés: Kondenzációs gázkazán, padlófűtéssel minden helyiségben, a fürdőszobákban törölközőszárító radiátor • Hűtés: 2 db Gree Smart One 5 kW-os klíma • Biztonság: 4K kamera rendszer, riasztórendszer, Hikvision kaputelefon • Energiaellátás: 3×25 A 380V **BELSŐ ELRENDEZÉS:** Alsó szint helyiségei: • Előszoba • Fürdőszoba WC-vel • Kamra • Amerikai konyhás nappali Felső szint helyiségei: • 3 szoba • Fürdőszoba WC-vel Amennyiben felkeltette a meghirdetett ingatlan az érdeklődését, keressen bizalommal. Kihagyhatatlan ajánlatok: CSOK+,OTTHON START, kedvezményes kamatozású lakáshitelek. Az ország szinte összes bankjának a hiteleit is kínáljuk, egyedi, általunk igénybe vehető kedvezményekkel, díjmentes ügyintézéssel.

Eladó családi ház Üllő Impozáns luxusház!

ID szám: 83443

Amerikai konyhás: Igen; Kertkapcsolatos: Igen;

Ajánlat

Eladó

Típus

Újépítésű

Épület jellege

Új családi ház

Ár

169.90 MFt

Ingatlan adatai

Épült 2025
Megye Pest megye
Város Üllő
Komfort Dupla komfort
Épületszintek tetőtér pinceszint földszint 1 emelet nincs nincs nincs
Lift nincs
Hasznos alapterület 194 nm
Telek területe 558 nm
Lakáshoz tartozó kert 558 nm
Erkély területe 7 nm
Terasz területe 15 nm
Fűtési mód Cirkófűtés
Egész szobák száma 4 db
Parkolás Teremgarázs-garázs
Emelet egyszerű emelet tetőtér tetőtéri kétszintes Nincs adat van nincs nincs
Nagyításhoz kattintson a képre

Az Ön üzletkötője:

Szuhai Zoltán
+36-20-955-2867
Üzenet az üzletkötőnek Ingatlan ajánlása Nyomtatási kép
Megosztás Facebookon Megosztás Twitteren

Ingatlan bemutatása

Eladó Üllő csendes kertvárosi részén egy új építésű kétszintes nettó:163,54m2-es 4szobás impozáns családi ház, amely 558m2-es teleken helyezkedik el. **INGATLAN HELYSZÍNE, LOKÁCIÓ** Az új építésű családi ház, ideális elhelyezkedésének köszönhetően könnyű hozzáférést biztosít Budapest és környéke felé. Békés, csendes környezet, amely távol tart a város zajától, miközben minden fontos szolgáltatás közel van. Közlekedés szempontjából is kiváló döntés, pár perc alatt elérhető az autópálya. Urbanizációs előnyei közé tartoznak az iskolák, óvodák, bevásárlási lehetőségek és egészségügyi létesítmények közelsége. **ÉPÜLET JELLEMZŐI KÍVÜLRŐL** • Falazat: 30 cm-es Porotherm Klíma tégla, 15 cm-es Ytong válaszfalak • Hőszigetelés: 10–20 cm-es grafitos homlokzati szigetelés, 10 cm zárt és 20 cm nyitott cellás poliuretán hab az aljzatban, szarufák között és a zárófödémen • Nyílászárók: 82mm-es profilvastagság, 3 rétegű üveg, gázzal töltve, dió RAL színű műanyag ablakok, vele megegyező színű elektromos alumínium redőny + beépített szúnyogháló • Beltéri ajtók: Síkban záródó, rejtett zsanéros, V gravíros , festett MDF, automata küszöbbel és olasz króm kilinccsel • Tető: Terrán Coppo Ódon betoncserép, 50 év garanciával • Külső megjelenés: kovácsoltvas korlátok, úszókapu, szilikonos Revco vékonyvakolat A kertbe elhelyezésre került egy 6 m²-es hőszigetelt faház elektromos padlófűtéssel, ami kerti tárolóként funkcionálhat. **AZ INGATLAN JELLEMZŐI BELÜLRŐL** • Lakótér összesen: 194 m² (garázzsal együtt) • Garázs: 30 m²-es két autó beállására alkalmas, ipari műgyanta padlóval, padlófűtéssel, elektromos autótöltésre kialakított gyorstöltő kiállással, Hörmann garázskapuval. • Konyhabútor: AEG, Whirlpool, Electrolux beépített gépekkel, led világítással, tömör fa munkalappal, Blum vasalattal, Blanco gránitmosogató, Blanco csaptelep. • Fűtés: Kondenzációs gázkazán, padlófűtéssel minden helyiségben, a fürdőszobákban törölközőszárító radiátor • Hűtés: 2 db Gree Smart One 5 kW-os klíma • Biztonság: 4K kamera rendszer, riasztórendszer, Hikvision kaputelefon • Energiaellátás: 3×25 A 380V **BELSŐ ELRENDEZÉS:** Alsó szint helyiségei: • Előszoba • Fürdőszoba WC-vel • Kamra • Amerikai konyhás nappali Felső szint helyiségei: • 3 szoba • Fürdőszoba WC-vel Amennyiben felkeltette a meghirdetett ingatlan az érdeklődését, keressen bizalommal. Kihagyhatatlan ajánlatok: CSOK+,OTTHON START, kedvezményes kamatozású lakáshitelek. Az ország szinte összes bankjának a hiteleit is kínáljuk, egyedi, általunk igénybe vehető kedvezményekkel, díjmentes ügyintézéssel.

Megosztás Facebookon Megosztás Twitteren
www.ujingatlanok.hu - QR kód

Linkajánló

 

LinkBank