Nyomtatás
Amerikai konyhás: Igen; Kertkapcsolatos: Igen;

Eladó családi ház Veresegyház Ráday utca

ID szám: 82368

Az Ön üzletkötője:

Horváth Péter
+36-70-606-2990

Főbb adatok:

Ajánlat Eladó
Típus Újépítésű
Jelleg Új családi ház
Ár 109.90 MFt

Ingatlan adatai

Épült 2025
Megye Pest megye
Város Veresegyház
Komfort Összkomfort
Épületszintek 1 emelet
Lift nincs
Hasznos alapterület 95 nm
Telek területe 969 nm
Lakáshoz tartozó kert 969 nm
Terasz területe 26 nm
Egész szobák száma 4 db
Parkolás Udvaron-felszíni beálló
Emelet Nincs adat + Egyszerű emelet

Ingatlan bemutatása

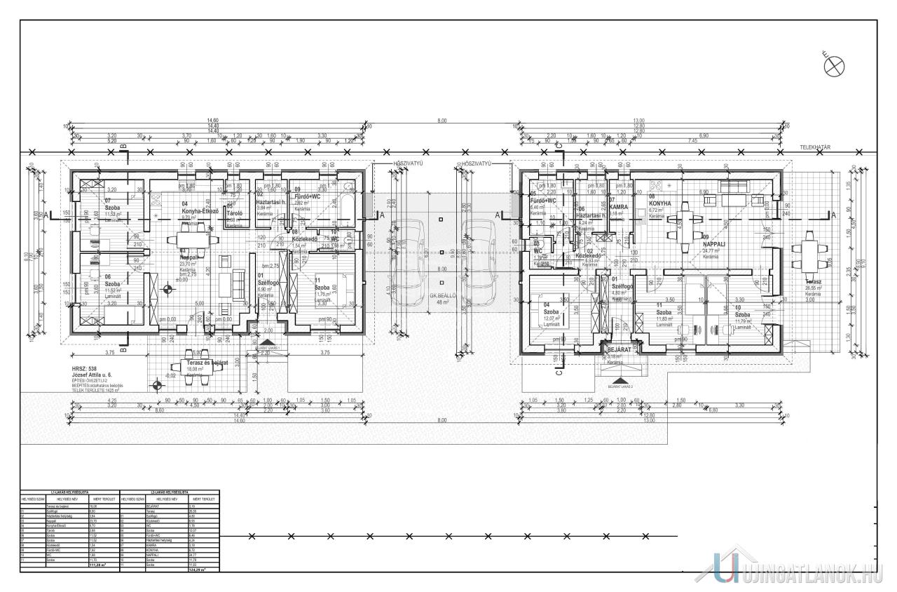
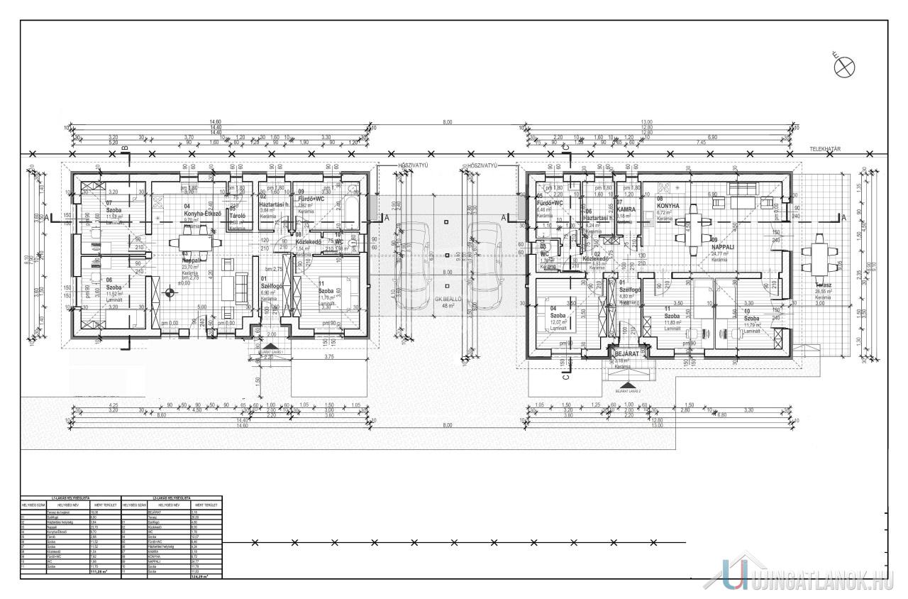
Veresegyházon a Ráday utca 31. szám alatt, 969 m²-es telken, nettó 93,2 m²-es és 94,55 m²-es három szoba + amerikai konyhás nappalival rendelkező, energiahatékony ikerházfelek eladók, megbízható számos referenciával rendelkező kivitelezőtől! Az utcafronti ingatlan 347 m²-es telekrésszel 109.990.000 Ft. A hátsó ingatlan 622 m²-es telkerésszel 124.999.000. Ft. Az ingatlanok csak a fedett kocsibeállókkal érintkeznek. A tartószerkezeti falak Porotherm P30N+F téglából, betonkoszorúval, fa födémes tetőszerkezettel készülnek. A lábazat 10 cm polisztirol lépésálló, a homlokzatok 15cm-es EPS, a vízszintes födém 30 cm ásványgyapot szigeteléssel lesz ellátva. Három rétegű üvegekkel szerelt, hat légkamrás műanyag thermo nyílászárók kerülnek beépítésre, elektromos alúmínium redőnyökkel és szúnyoghálóval. A minimális energiaigényt a megfelelő szigetelésen kívül a megújuló energiát használó gépészet is biztosítja. A fűtést és a használati melegvíz ellátását split rendszerű levegő-víz hőszivattyús rendszer fogja végezni. A hűtésről fan-coil fog gondoskodni. Burkolatok , szaniterek, belső ajtók, csaptelepek választhatóak a következő értékhatárig: -Hidegburkolat: 8000 Ft.-/m2 -Melegburkolat: 6.000 Ft.-/m2 -Beltéri ajtók: 80.000.Ft.-/db -Fürdőkád: 40.000.- Ft.- -Csaptelepek: 15000.- Ft.-/db Magasabb árú választás is lehetséges, a különbség finanszírozásával. A kivitelező korábban számos ingatlant épített Isaszegen és Veresegyházon, a már birtokbaadott ingatlanokat komoly érdeklődés esetén szívesen megmutatjuk referenciaként. Csok plusz, Otthon Start igényelhető! Tervezett átadás 2026 harmadik negyedéve Érdeklődő ügyfeleinknek a tervdokumetációt és a műszaki tartalmat készséggel rendelkezésre bocsájtjuk. INGYENES hitel tanácsadás, CSOK Plusz ügyintézés! BANKFÜGGETLEN hitelcentrumunk az összes elérhető bank és hitelintézet ajánlatát versenyezteti az Ön kedvéért, ráadásul DÍJMENTESEN. - Egyedi, bankfiókban nem elérhető kamat- és díjkedvezmények - Hitelképesség vizsgálat - Idő, energia és pénz megtakarítás - Teljes hivatali ügyintézés Amennyiben hirdetésem felkeltette az érdeklődését vagy egyéb információra van szüksége hívjon bizalommal!

Eladó családi ház Veresegyház Ráday utca

ID szám: 82368

Amerikai konyhás: Igen; Kertkapcsolatos: Igen;

Ajánlat

Eladó

Típus

Újépítésű

Épület jellege

Új családi ház

Ár

109.90 MFt

Ingatlan adatai

Épült 2025
Megye Pest megye
Város Veresegyház
Komfort Összkomfort
Épületszintek tetőtér pinceszint földszint 1 emelet nincs nincs nincs
Lift nincs
Hasznos alapterület 95 nm
Telek területe 969 nm
Lakáshoz tartozó kert 969 nm
Terasz területe 26 nm
Egész szobák száma 4 db
Parkolás Udvaron-felszíni beálló
Emelet egyszerű emelet tetőtér tetőtéri kétszintes Nincs adat van nincs nincs
Nagyításhoz kattintson a képre

Az Ön üzletkötője:

Horváth Péter
+36-70-606-2990
Üzenet az üzletkötőnek Ingatlan ajánlása Nyomtatási kép
Megosztás Facebookon Megosztás Twitteren

Ingatlan bemutatása

Veresegyházon a Ráday utca 31. szám alatt, 969 m²-es telken, nettó 93,2 m²-es és 94,55 m²-es három szoba + amerikai konyhás nappalival rendelkező, energiahatékony ikerházfelek eladók, megbízható számos referenciával rendelkező kivitelezőtől! Az utcafronti ingatlan 347 m²-es telekrésszel 109.990.000 Ft. A hátsó ingatlan 622 m²-es telkerésszel 124.999.000. Ft. Az ingatlanok csak a fedett kocsibeállókkal érintkeznek. A tartószerkezeti falak Porotherm P30N+F téglából, betonkoszorúval, fa födémes tetőszerkezettel készülnek. A lábazat 10 cm polisztirol lépésálló, a homlokzatok 15cm-es EPS, a vízszintes födém 30 cm ásványgyapot szigeteléssel lesz ellátva. Három rétegű üvegekkel szerelt, hat légkamrás műanyag thermo nyílászárók kerülnek beépítésre, elektromos alúmínium redőnyökkel és szúnyoghálóval. A minimális energiaigényt a megfelelő szigetelésen kívül a megújuló energiát használó gépészet is biztosítja. A fűtést és a használati melegvíz ellátását split rendszerű levegő-víz hőszivattyús rendszer fogja végezni. A hűtésről fan-coil fog gondoskodni. Burkolatok , szaniterek, belső ajtók, csaptelepek választhatóak a következő értékhatárig: -Hidegburkolat: 8000 Ft.-/m2 -Melegburkolat: 6.000 Ft.-/m2 -Beltéri ajtók: 80.000.Ft.-/db -Fürdőkád: 40.000.- Ft.- -Csaptelepek: 15000.- Ft.-/db Magasabb árú választás is lehetséges, a különbség finanszírozásával. A kivitelező korábban számos ingatlant épített Isaszegen és Veresegyházon, a már birtokbaadott ingatlanokat komoly érdeklődés esetén szívesen megmutatjuk referenciaként. Csok plusz, Otthon Start igényelhető! Tervezett átadás 2026 harmadik negyedéve Érdeklődő ügyfeleinknek a tervdokumetációt és a műszaki tartalmat készséggel rendelkezésre bocsájtjuk. INGYENES hitel tanácsadás, CSOK Plusz ügyintézés! BANKFÜGGETLEN hitelcentrumunk az összes elérhető bank és hitelintézet ajánlatát versenyezteti az Ön kedvéért, ráadásul DÍJMENTESEN. - Egyedi, bankfiókban nem elérhető kamat- és díjkedvezmények - Hitelképesség vizsgálat - Idő, energia és pénz megtakarítás - Teljes hivatali ügyintézés Amennyiben hirdetésem felkeltette az érdeklődését vagy egyéb információra van szüksége hívjon bizalommal!

Megosztás Facebookon Megosztás Twitteren
www.ujingatlanok.hu - QR kód

Linkajánló

 

LinkBank