Nyomtatás
Amerikai konyhás: Igen; Kertkapcsolatos: Igen;

Eladó ikerház Albertirsa ÚJ ÉPÍTÉSŰ 100%-os készültséggel!

ID szám: 83480

Az Ön üzletkötője:

Szuhai Andrea
+36-20-326-4010

Főbb adatok:

Ajánlat Eladó
Típus Újépítésű
Jelleg Új családi ház
Ár 118 MFt

Ingatlan adatai

Épült 2025
Megye Pest megye
Város Albertirsa
Komfort Dupla komfort
Épületszintek 1 emelet
Lift nincs
Hasznos alapterület 175 nm
Telek területe 600 nm
Lakáshoz tartozó kert 600 nm
Terasz területe 22 nm
Egész szobák száma 5 db
Parkolás Teremgarázs-garázs
Emelet Nincs adat + Egyszerű emelet

Ingatlan bemutatása

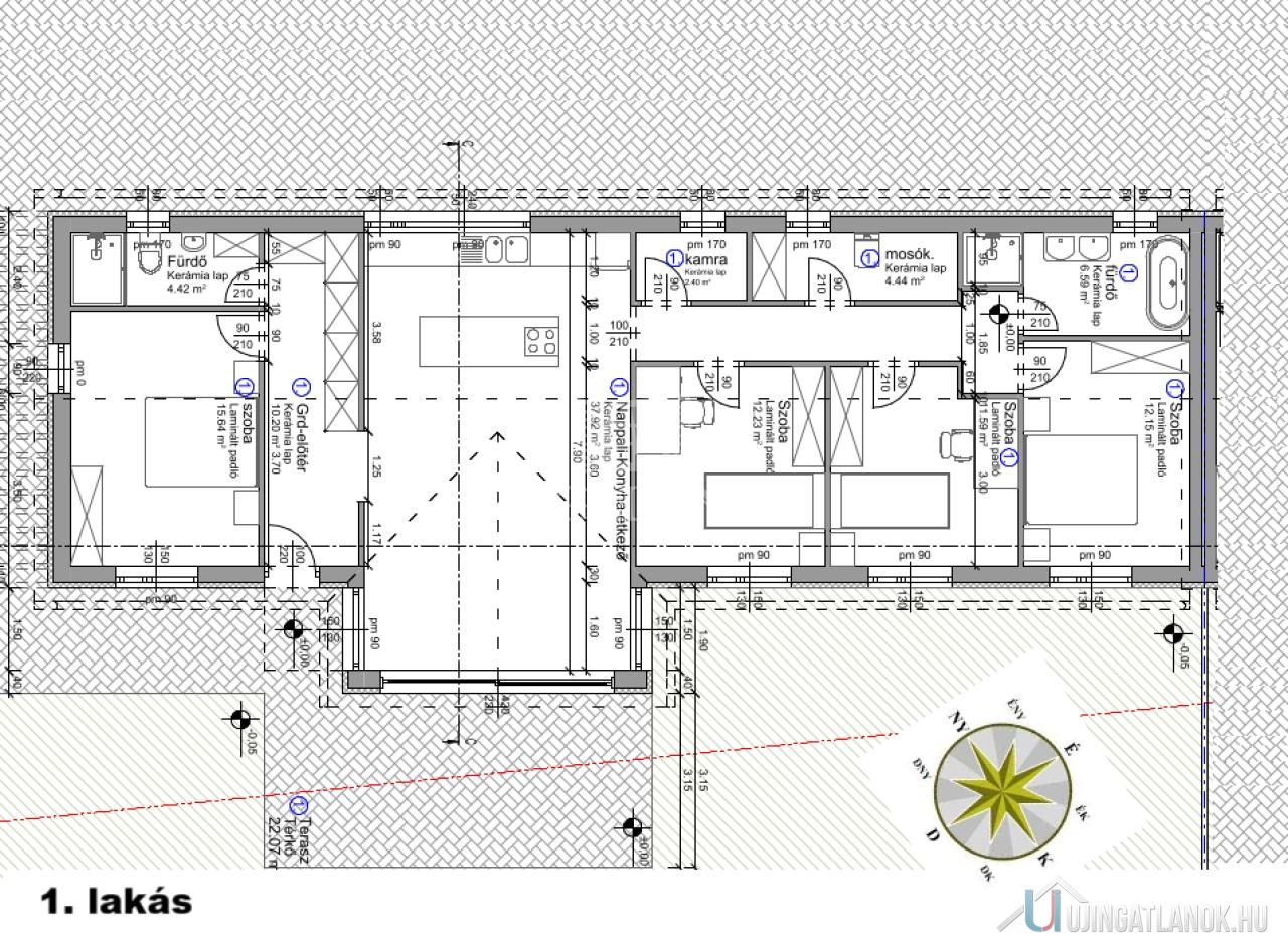
ELADÓ ALBERTIRSÁN, egy KÖZPONTI, ÖSSZKÖZMŰVES, ASZFALTOZOTT UTCÁBAN ÚJ ÉPÍTÉSŰ, FÖLDSZINTES, AKADÁLYMENTES, AZONNAL BEKÖLTÖZHETŐ családi ház (kétlakásos társasház) SAJÁT KERTTEL, KÜLÖN BEJÁRATTAL. KÉT GENERÁCIÓNAK IS ALKALMAS, KIEMELKEDŐ MŰSZAKI TARTALOMMAL + H tarifával. 1. lakás GARÁZS épülettel - Elrendezés: 4 hálószoba + nappali + 2 fürdő + kamra + háztartási helyiség - Lakótér: 127 m2 - Terasz: 22 m2, 600m2-es SAJÁT KERT - Külön épület: 37 m2, KÉTÁLLÁSOS GARÁZS - Teljes hasznos nettó terület: 175 m2 (127 + 37 + 11) - Ár: 118 M Ft 2. lakás - Elrendezés: 4 hálószoba + nappali + 2 fürdő + kamra + háztartási helyiség - Lakótér: 124 m2 - Terasz: 26 m2, 730m2-es SAJÁT KERT - Teljes hasznos nettó terület: 137 m2 (124 + 13) - Ár: 102 M Ft Szerkezet és hőszigetelés: - Főfal: Leier 30 NF tégla - Válaszfalak: Leier 20 S és 10 tégla - Padló alatti szigetelés: EPS 100 (10 cm) - Külső nyílászárók: fehér műanyag, 3 rétegű üvegezéssel - Födémszigetelés: 30 cm ásványgyapot - Fa tetőszerkezet, tetőhéjazat: Bramac betoncserép - Homlokzati szigetelés: 10 cm EPS - Lábazati szigetelés: 5 cm + barna szemcsés díszvakolat Gépészet és komfort: VILLANYSZERELÉS: 3x16 A +1x25A H tarifás kiépítéssel. - Hőszivattyú: japán Fujitsu High Power fűtésre és melegvíz-ellátásra - Hidegburkolatos helyiségekben PADLÓFŰTÉS - Szobákban és nappaliban digitális vezérlésű, HŰTŐ-FŰTŐ Galletti Flat FANCOILOK - Fürdőszobánként 1 db törölközőszárító fali radiátor Vízszerelés: - 2 db fürdőszoba: fürdőnként törölközőszárítós RADIÁTOR; RAVAK ROSA II akril SAROKKÁD + zuhanyzó; GEBERIT WC falsík mögötti tartály nyomólappal. A másik fürdőben zuhanyzó, + GEBERIT WC. Elhelyezkedés és megközelítés - ÖNÁLLÓ MEGKÖZELÍTHETŐSÉG, SAJÁT MÉRŐÓRÁK - Vasútállomás: 15 perc séta / 2 perc autó - Óvoda: ~900 m, bevásárlás: ~1 km - Budapest: ~35 km Praktikus, MINDENKI számára jól használható terek, korszerű gépészet és igényes szerkezet – MEGBÍZHATÓ, ÉRTÉKÁLLÓ választás. Amennyiben felkeltette a meghirdetett ingatlan az érdeklődését, keressen bizalommal. Kihagyhatatlan ajánlatok: CSOK+, kedvezményes kamatozású lakáshitelek. Az ország szinte összes bankjának a hiteleit is kínáljuk, egyedi, általunk igénybe vehető kedvezményekkel, díjmentes ügyintézéssel.

Eladó ikerház Albertirsa ÚJ ÉPÍTÉSŰ 100%-os készültséggel!

ID szám: 83480

Amerikai konyhás: Igen; Kertkapcsolatos: Igen;

Ajánlat

Eladó

Típus

Újépítésű

Épület jellege

Új családi ház

Ár

118 MFt

Ingatlan adatai

Épült 2025
Megye Pest megye
Város Albertirsa
Komfort Dupla komfort
Épületszintek tetőtér pinceszint földszint 1 emelet nincs nincs nincs
Lift nincs
Hasznos alapterület 175 nm
Telek területe 600 nm
Lakáshoz tartozó kert 600 nm
Terasz területe 22 nm
Egész szobák száma 5 db
Parkolás Teremgarázs-garázs
Emelet egyszerű emelet tetőtér tetőtéri kétszintes Nincs adat van nincs nincs
Nagyításhoz kattintson a képre

Az Ön üzletkötője:

Szuhai Andrea
+36-20-326-4010
Üzenet az üzletkötőnek Ingatlan ajánlása Nyomtatási kép
Megosztás Facebookon Megosztás Twitteren

Ingatlan bemutatása

ELADÓ ALBERTIRSÁN, egy KÖZPONTI, ÖSSZKÖZMŰVES, ASZFALTOZOTT UTCÁBAN ÚJ ÉPÍTÉSŰ, FÖLDSZINTES, AKADÁLYMENTES, AZONNAL BEKÖLTÖZHETŐ családi ház (kétlakásos társasház) SAJÁT KERTTEL, KÜLÖN BEJÁRATTAL. KÉT GENERÁCIÓNAK IS ALKALMAS, KIEMELKEDŐ MŰSZAKI TARTALOMMAL + H tarifával. 1. lakás GARÁZS épülettel - Elrendezés: 4 hálószoba + nappali + 2 fürdő + kamra + háztartási helyiség - Lakótér: 127 m2 - Terasz: 22 m2, 600m2-es SAJÁT KERT - Külön épület: 37 m2, KÉTÁLLÁSOS GARÁZS - Teljes hasznos nettó terület: 175 m2 (127 + 37 + 11) - Ár: 118 M Ft 2. lakás - Elrendezés: 4 hálószoba + nappali + 2 fürdő + kamra + háztartási helyiség - Lakótér: 124 m2 - Terasz: 26 m2, 730m2-es SAJÁT KERT - Teljes hasznos nettó terület: 137 m2 (124 + 13) - Ár: 102 M Ft Szerkezet és hőszigetelés: - Főfal: Leier 30 NF tégla - Válaszfalak: Leier 20 S és 10 tégla - Padló alatti szigetelés: EPS 100 (10 cm) - Külső nyílászárók: fehér műanyag, 3 rétegű üvegezéssel - Födémszigetelés: 30 cm ásványgyapot - Fa tetőszerkezet, tetőhéjazat: Bramac betoncserép - Homlokzati szigetelés: 10 cm EPS - Lábazati szigetelés: 5 cm + barna szemcsés díszvakolat Gépészet és komfort: VILLANYSZERELÉS: 3x16 A +1x25A H tarifás kiépítéssel. - Hőszivattyú: japán Fujitsu High Power fűtésre és melegvíz-ellátásra - Hidegburkolatos helyiségekben PADLÓFŰTÉS - Szobákban és nappaliban digitális vezérlésű, HŰTŐ-FŰTŐ Galletti Flat FANCOILOK - Fürdőszobánként 1 db törölközőszárító fali radiátor Vízszerelés: - 2 db fürdőszoba: fürdőnként törölközőszárítós RADIÁTOR; RAVAK ROSA II akril SAROKKÁD + zuhanyzó; GEBERIT WC falsík mögötti tartály nyomólappal. A másik fürdőben zuhanyzó, + GEBERIT WC. Elhelyezkedés és megközelítés - ÖNÁLLÓ MEGKÖZELÍTHETŐSÉG, SAJÁT MÉRŐÓRÁK - Vasútállomás: 15 perc séta / 2 perc autó - Óvoda: ~900 m, bevásárlás: ~1 km - Budapest: ~35 km Praktikus, MINDENKI számára jól használható terek, korszerű gépészet és igényes szerkezet – MEGBÍZHATÓ, ÉRTÉKÁLLÓ választás. Amennyiben felkeltette a meghirdetett ingatlan az érdeklődését, keressen bizalommal. Kihagyhatatlan ajánlatok: CSOK+, kedvezményes kamatozású lakáshitelek. Az ország szinte összes bankjának a hiteleit is kínáljuk, egyedi, általunk igénybe vehető kedvezményekkel, díjmentes ügyintézéssel.

Megosztás Facebookon Megosztás Twitteren
www.ujingatlanok.hu - QR kód

Linkajánló

 

LinkBank