Nyomtatás
Amerikai konyhás: Igen; Kertkapcsolatos: Igen;

Eladó ikerház Áporka EGYSZINTES, ÚJÉPÍTÉSŰ IKERHÁZ!

ID szám: 84966

Az Ön üzletkötője:

Nyegrutz Tibor
+36-30-250-4987

Főbb adatok:

Ajánlat Eladó
Típus Újépítésű
Jelleg Új családi ház
Ár 79.50 MFt

Ingatlan adatai

Épült 2025
Megye Pest megye
Város Áporka
Komfort Összkomfort
Épületszintek 1 emelet
Lift nincs
Hasznos alapterület 95 nm
Telek területe 440 nm
Lakáshoz tartozó kert 440 nm
Terasz területe 12 nm
Egész szobák száma 5 db
Parkolás Udvaron-felszíni beálló
Emelet Nincs adat + Egyszerű emelet

Ingatlan bemutatása

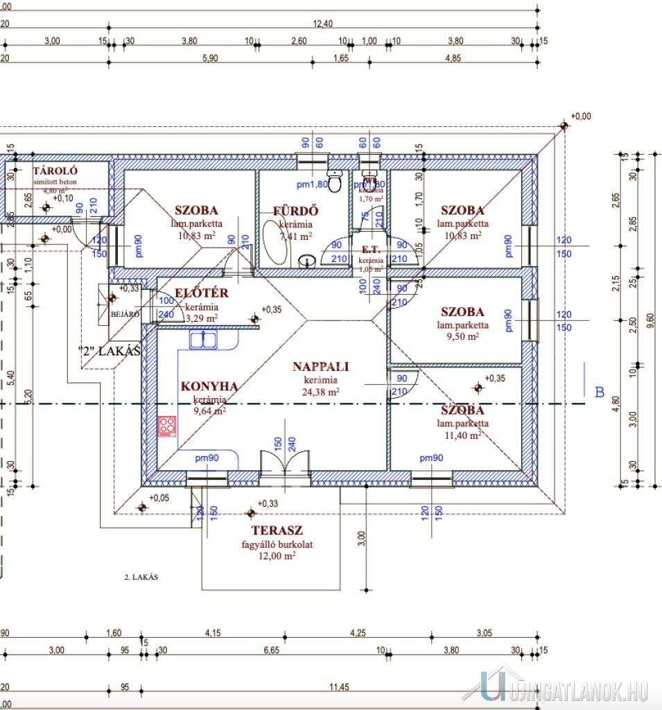
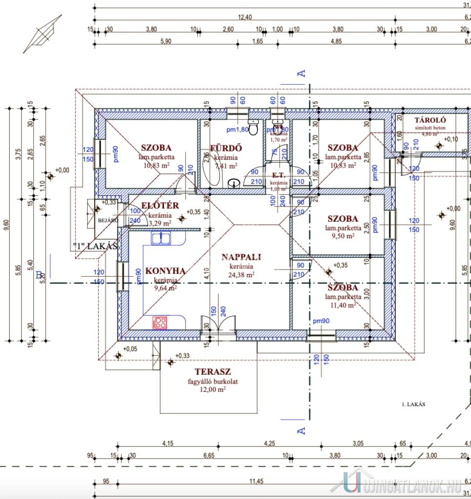
ÁPORKÁN, CSENDES KERTVÁROSI környezetében, nettó 95 m2-es, nappali + 4 szobás, AUTÓBEÁLLÓVAL, TÁROLÓVAL ÉRINTKEZŐ, MODERN, EGYSZINTES, ÚJÉPÍTÉSŰ, IKERHÁZAT kínálunk eladásra! HELYISÉGEI: -Előtér: 3.29m2 -Közlekedő: 1.05m2 -Szoba: 10.83m2 -Szoba: 9.50m2 -Szoba: 11.40m2 -Fürdőszoba: 7.41m2 -WC: 1,7m2 -Szoba: 10.83m2 -Nappali: 24.38m2 -Konyha: 9.64m2 -Tároló: 4.80m2 -Terasz: 12m2 Az ingatlanhoz saját, kizárólagos használatú, lekerített TELEKRÉSZEK tartoznak. Autóbeálló tartozik az ingatlanhoz, a kialakítását a vételár tartalmazza. Külső falazat: Ytong 30 cm-es, 12 cm-es Dryvit hőszigeteléssel, 20 cm-es cellulóz alapú fújt födém szigeteléssel. Műanyag nyílászárok: 5 légkamrás fokozott hőszigetelésű mindkét oldalt színezett barna (sötét dió) műanyagból, thermoplan tripla 0,7k üvegezéssel. Bejárati ajtó szabványnak megfelelő 5 ponton záródó biztonsági ajtó, mindkét oldalt sötét dió színben. A fűtést HŐSZIVATTYÚ biztosítja, padlófűtéssel (igény szerint radiátorokkal is). Nagyon IGÉNYES KIVITELEZÉS, minőségi anyagok felhasználásával épül ( részletes Műszaki leírással és további anyagokkal rendelkezem.) Külön mérőórák, szeparált telekrészek, különböző utcai bejáratok! Mindkét házhoz felszíni autóbeálló hely biztosított. MÉRETEK, TÁJOLÁS, ELRENDEZÉS, AZ ALAPRAJZOKON. ( Belső átalakítás-kialakítás a Vevő igényei alapján megoldható ) TERVEZETT ÁTADÁS: 2026. második negyedév! Megtekinthető elkészült REFERENCIA munkák. Az ikerház CSOK PLUSZ, FALUSI CSOK valamint 3% START hitelre és egyéb kedvező hitelekre alkalmas. (Szükség esetén ingyenes hitelügyintézéssel) Az ingatlan tehermentes, könnyen megközelíthető! Áporka egy Pest megyei község a Csepeli-síkon, Budapesttől délre, az 51-es főút közelében, Kiskunlacháza szomszédságában. A Ráckevei-Soroksári Duna-ág (RSD) partján fekvő település kedvelt horgász- és üdülőhely, amely könnyen elérhető a fővárosból. A nyugodt, családias község kiváló lehetőségeket kínál a vízi turizmus és a pihenés kedvelőinek. Főbb jellemzők: Fekvés: Budapesttől kb. 30-40 perc autóútra, a Ráckevei-Soroksári Duna bal partján. Áporka ideális célpont azoknak, akik a főváros közelségében keresnek vízparti kikapcsolódást. Az ingatlan megtekintése előre egyeztetett időpontban lehetséges, akár hétvégén is. Bővebb információkkal kapcsolatban várom jelentkezését, keressen bizalommal a hét minden napján!

Eladó ikerház Áporka EGYSZINTES, ÚJÉPÍTÉSŰ IKERHÁZ!

ID szám: 84966

Amerikai konyhás: Igen; Kertkapcsolatos: Igen;

Ajánlat

Eladó

Típus

Újépítésű

Épület jellege

Új családi ház

Ár

79.50 MFt

Ingatlan adatai

Épült 2025
Megye Pest megye
Város Áporka
Komfort Összkomfort
Épületszintek tetőtér pinceszint földszint 1 emelet nincs nincs nincs
Lift nincs
Hasznos alapterület 95 nm
Telek területe 440 nm
Lakáshoz tartozó kert 440 nm
Terasz területe 12 nm
Egész szobák száma 5 db
Parkolás Udvaron-felszíni beálló
Emelet egyszerű emelet tetőtér tetőtéri kétszintes Nincs adat van nincs nincs
Nagyításhoz kattintson a képre

Az Ön üzletkötője:

Nyegrutz Tibor
+36-30-250-4987
Üzenet az üzletkötőnek Ingatlan ajánlása Nyomtatási kép
Megosztás Facebookon Megosztás Twitteren

Ingatlan bemutatása

ÁPORKÁN, CSENDES KERTVÁROSI környezetében, nettó 95 m2-es, nappali + 4 szobás, AUTÓBEÁLLÓVAL, TÁROLÓVAL ÉRINTKEZŐ, MODERN, EGYSZINTES, ÚJÉPÍTÉSŰ, IKERHÁZAT kínálunk eladásra! HELYISÉGEI: -Előtér: 3.29m2 -Közlekedő: 1.05m2 -Szoba: 10.83m2 -Szoba: 9.50m2 -Szoba: 11.40m2 -Fürdőszoba: 7.41m2 -WC: 1,7m2 -Szoba: 10.83m2 -Nappali: 24.38m2 -Konyha: 9.64m2 -Tároló: 4.80m2 -Terasz: 12m2 Az ingatlanhoz saját, kizárólagos használatú, lekerített TELEKRÉSZEK tartoznak. Autóbeálló tartozik az ingatlanhoz, a kialakítását a vételár tartalmazza. Külső falazat: Ytong 30 cm-es, 12 cm-es Dryvit hőszigeteléssel, 20 cm-es cellulóz alapú fújt födém szigeteléssel. Műanyag nyílászárok: 5 légkamrás fokozott hőszigetelésű mindkét oldalt színezett barna (sötét dió) műanyagból, thermoplan tripla 0,7k üvegezéssel. Bejárati ajtó szabványnak megfelelő 5 ponton záródó biztonsági ajtó, mindkét oldalt sötét dió színben. A fűtést HŐSZIVATTYÚ biztosítja, padlófűtéssel (igény szerint radiátorokkal is). Nagyon IGÉNYES KIVITELEZÉS, minőségi anyagok felhasználásával épül ( részletes Műszaki leírással és további anyagokkal rendelkezem.) Külön mérőórák, szeparált telekrészek, különböző utcai bejáratok! Mindkét házhoz felszíni autóbeálló hely biztosított. MÉRETEK, TÁJOLÁS, ELRENDEZÉS, AZ ALAPRAJZOKON. ( Belső átalakítás-kialakítás a Vevő igényei alapján megoldható ) TERVEZETT ÁTADÁS: 2026. második negyedév! Megtekinthető elkészült REFERENCIA munkák. Az ikerház CSOK PLUSZ, FALUSI CSOK valamint 3% START hitelre és egyéb kedvező hitelekre alkalmas. (Szükség esetén ingyenes hitelügyintézéssel) Az ingatlan tehermentes, könnyen megközelíthető! Áporka egy Pest megyei község a Csepeli-síkon, Budapesttől délre, az 51-es főút közelében, Kiskunlacháza szomszédságában. A Ráckevei-Soroksári Duna-ág (RSD) partján fekvő település kedvelt horgász- és üdülőhely, amely könnyen elérhető a fővárosból. A nyugodt, családias község kiváló lehetőségeket kínál a vízi turizmus és a pihenés kedvelőinek. Főbb jellemzők: Fekvés: Budapesttől kb. 30-40 perc autóútra, a Ráckevei-Soroksári Duna bal partján. Áporka ideális célpont azoknak, akik a főváros közelségében keresnek vízparti kikapcsolódást. Az ingatlan megtekintése előre egyeztetett időpontban lehetséges, akár hétvégén is. Bővebb információkkal kapcsolatban várom jelentkezését, keressen bizalommal a hét minden napján!

Megosztás Facebookon Megosztás Twitteren
www.ujingatlanok.hu - QR kód

Linkajánló

 

LinkBank