Nyomtatás
|
Amerikai konyhás: Igen; Kertkapcsolatos: Igen;
|
||
Eladó ikerház Budapest, III. kerület Szakóca utca |
ID szám: 85231 | |
|
Eladó ikerház Budapest, III. kerület Szakóca utca
ID szám: 85231
Amerikai konyhás: Igen; Kertkapcsolatos: Igen;
Ajánlat
Eladó
Típus
Újszerű
Épület jellege
Új családi ház
Ár
222.50 MFt
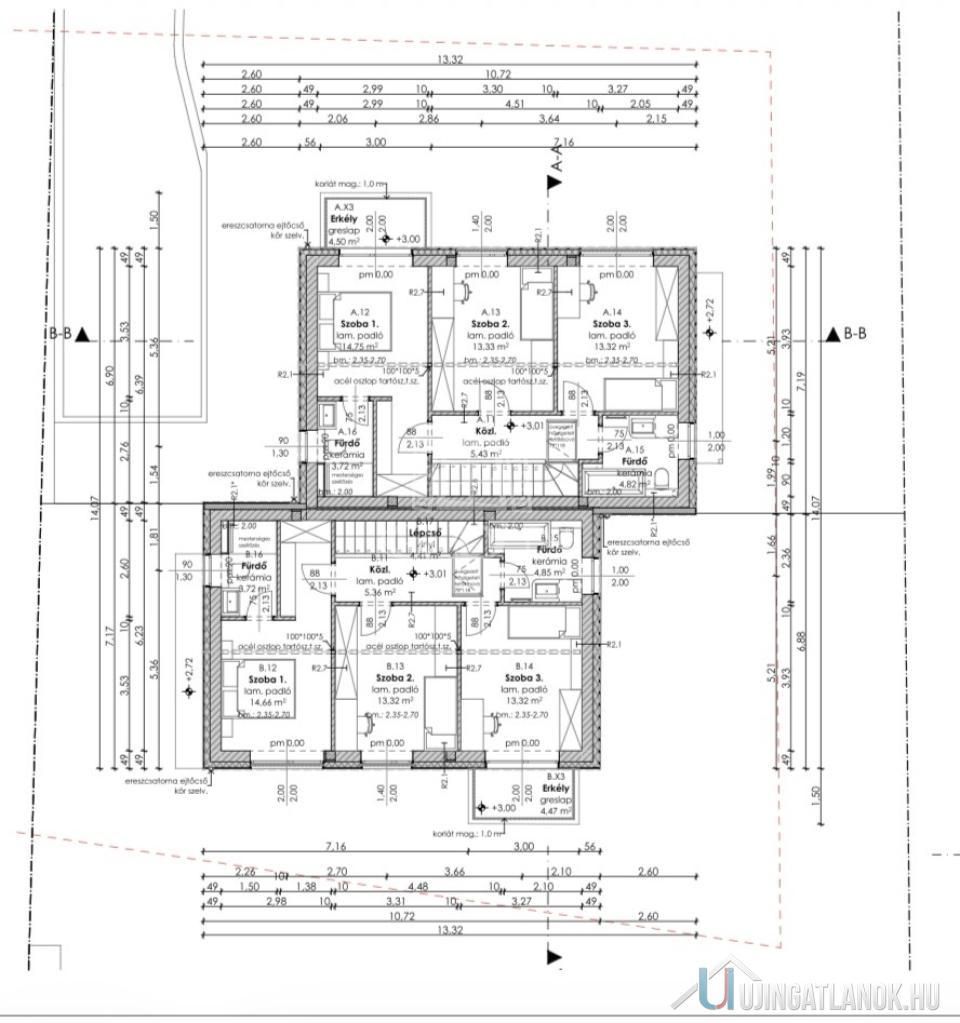
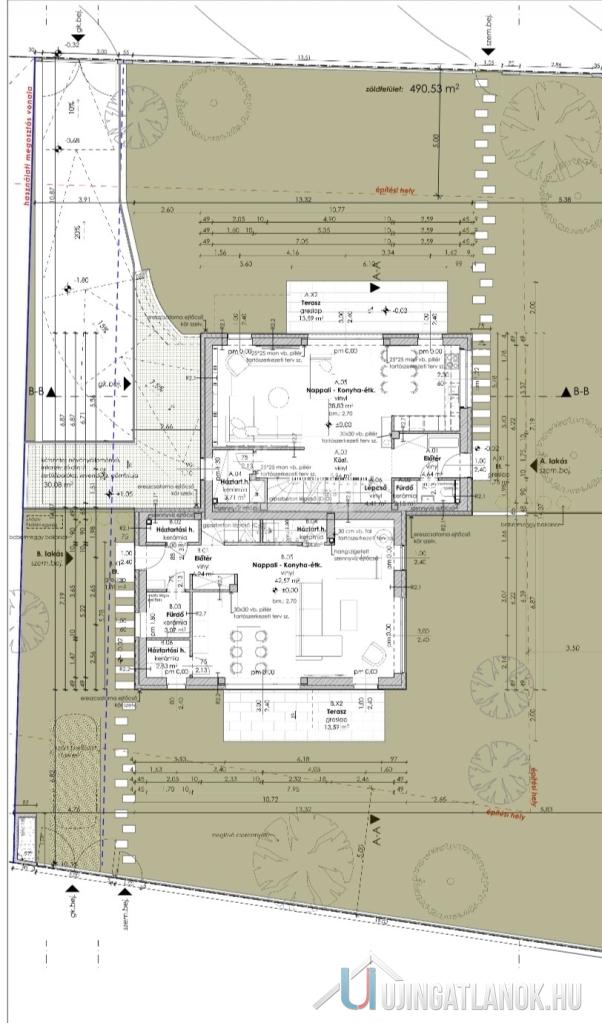
Ingatlan adatai
| Épült | 2027 |
|---|---|
| Kerület | Budapest III. kerület |
| Övezet | Aranyhegy |
| Komfort | Dupla komfort |
| Épületszintek tetőtér pinceszint földszint |
1 emelet
|
| Lift |
|
| Hasznos alapterület | 118 nm |
| Telek területe | 775 nm |
| Lakáshoz tartozó kert | 775 nm |
| Erkély területe | 35 nm |
| Egész szobák száma | 5 db |
| Parkolás | Udvaron-felszíni beálló |
| Emelet egyszerű emelet tetőtér tetőtéri kétszintes |
Nincs adat
|
Nagyításhoz kattintson a képre
Az Ön üzletkötője:
Füredi Felícia
+36-30-828-2621


