Nyomtatás
Amerikai konyhás: Igen; Kertkapcsolatos: Igen;
|
Eladó ikerház Budapest, X. kerület Szőlőtelep utca |
ID szám: 85125 |
|
Az Ön üzletkötője:
 Hallai Mónika
 +36-30-649-5546
|
Főbb adatok:
| Ajánlat |
Eladó |
| Típus |
Újépítésű |
| Jelleg |
Új családi ház |
| Ár |
134.90 MFt |
|
Ingatlan adatai
| Épült |
2025 |
| Kerület |
Budapest X. kerület |
| Komfort |
Dupla komfort |
|
Épületszintek
|
2 emelet |
| Lift |
nincs |
| Hasznos alapterület |
130 nm |
| Telek területe |
231 nm |
| Lakáshoz tartozó kert |
231 nm |
| Erkély területe |
2 nm |
| Terasz területe |
5 nm |
| Egész szobák száma |
4 db |
| Parkolás |
Teremgarázs-garázs |
| Emelet |
Nincs adat + Egyszerű emelet |
|
Ingatlan bemutatása
Új építésű, kétszintes ikerház prémium felszereltséggel!
Csendes környezet – Magas minőségű kivitelezés – Teljes digitális átláthatóság!
Budapest X. kerületének egyik legnyugodtabb mellékutcájában, kiváló közlekedési és infrastrukturális adottságok mellett készül ez a korszerű, kétszintes ikerház.
Az építkezés teljes folyamata átláthatóan nyomon követhető!
Főbb adatok
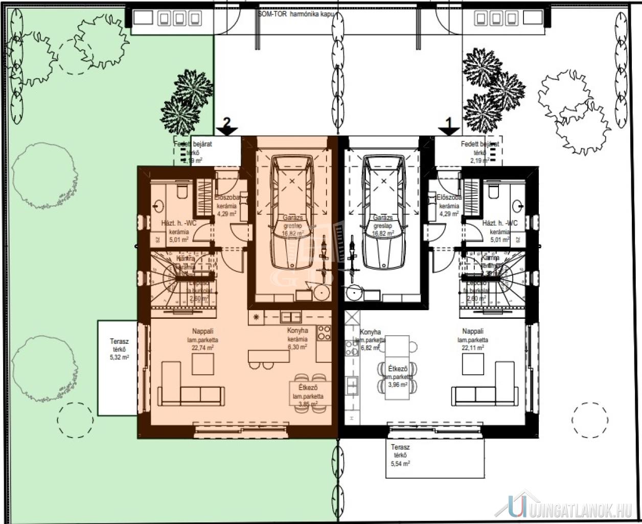
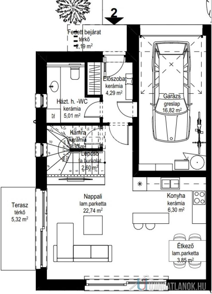
Hasznos alapterület: 122 m²
Telekméret: 231 m² saját kerttel
Szintek száma: földszint + emelet
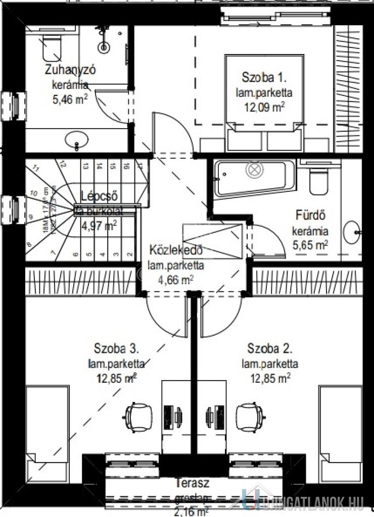
Hálószobák: 3 külön nyíló szoba
Fürdőszobák: összesen 3 (2 az emeleten, 1 a földszinten)
Nappali: 33 m²-es amerikai konyhás tér, közvetlen teraszkapcsolattal
Parkolás: fedett garázs, nagyobb méretű autó számára is ideális
Műszaki felszereltség
POROTHERM 30 N+F téglafalak, monolit vasbeton födémszerkezet
15 cm homlokzati EPS hőszigetelés + 20 cm födémszigetelés
Hőszivattyúval működő mennyezeti fűtés és hűtés
3 rétegű hőszigetelt nyílászárók és biztonsági bejárati ajtó
Laminált parketta és kerámia burkolatok kombinációja
Terrán Zenit Max Carbon tetőcserép
Kiemelt extrák
Komplett okosotthon rendszer
Motoros alumínium redőnyök
Kamera- és riasztórendszer előkészítés
Videó kaputelefon
Elektromos kapu és autótöltési lehetőség
Automata kertöntöző
WPC kerítés, rejtett világítás, kültéri lámpatestek
Digitális projektkövetés – PlanRadar
A vásárló:
Élőben követheti az építkezés előrehaladását telefonon
Kéthetente részletes fotódokumentációt kap
Az átadáskor digitálisan megkap minden szükséges hivatalos dokumentumot (garanciák, tervrajzok, jegyzőkönyvek)
Finanszírozási lehetőségek tárháza
Hitelből is megvásárolható
Díjmentes hitelügyintézés minden hazai bank felé
Elérhető aktuális állami támogatások
Várható átadás: 2026. III. negyedév
Ez az ingatlan ideális választás mindazok számára, akik modern, biztonságos és kényelmes otthont szeretnének. Ne hagyja ki ezt a kivételes lehetőséget!
ID: 390189
|
|
Eladó ikerház Budapest, X. kerület Szőlőtelep utca
ID szám: 85125
Amerikai konyhás: Igen; Kertkapcsolatos: Igen;
Ajánlat
Eladó
Típus
Újépítésű
Épület jellege
Új családi ház
Ár
134.90 MFt
Ingatlan adatai
| Épült |
2025 |
| Kerület |
Budapest X. kerület |
| Komfort |
Dupla komfort |
|
Épületszintek
tetőtér
pinceszint
földszint
|
2 emelet
|
| Lift |
|
| Hasznos alapterület |
130 nm |
| Telek területe |
231 nm |
| Lakáshoz tartozó kert |
231 nm |
| Erkély területe |
2 nm |
| Terasz területe |
5 nm |
| Egész szobák száma |
4 db |
| Parkolás |
Teremgarázs-garázs |
| Emelet
egyszerű emelet
tetőtér
tetőtéri kétszintes
|
Nincs adat
|
Ingatlan bemutatása
Új építésű, kétszintes ikerház prémium felszereltséggel!
Csendes környezet – Magas minőségű kivitelezés – Teljes digitális átláthatóság!
Budapest X. kerületének egyik legnyugodtabb mellékutcájában, kiváló közlekedési és infrastrukturális adottságok mellett készül ez a korszerű, kétszintes ikerház.
Az építkezés teljes folyamata átláthatóan nyomon követhető!
Főbb adatok
Hasznos alapterület: 122 m²
Telekméret: 231 m² saját kerttel
Szintek száma: földszint + emelet
Hálószobák: 3 külön nyíló szoba
Fürdőszobák: összesen 3 (2 az emeleten, 1 a földszinten)
Nappali: 33 m²-es amerikai konyhás tér, közvetlen teraszkapcsolattal
Parkolás: fedett garázs, nagyobb méretű autó számára is ideális
Műszaki felszereltség
POROTHERM 30 N+F téglafalak, monolit vasbeton födémszerkezet
15 cm homlokzati EPS hőszigetelés + 20 cm födémszigetelés
Hőszivattyúval működő mennyezeti fűtés és hűtés
3 rétegű hőszigetelt nyílászárók és biztonsági bejárati ajtó
Laminált parketta és kerámia burkolatok kombinációja
Terrán Zenit Max Carbon tetőcserép
Kiemelt extrák
Komplett okosotthon rendszer
Motoros alumínium redőnyök
Kamera- és riasztórendszer előkészítés
Videó kaputelefon
Elektromos kapu és autótöltési lehetőség
Automata kertöntöző
WPC kerítés, rejtett világítás, kültéri lámpatestek
Digitális projektkövetés – PlanRadar
A vásárló:
Élőben követheti az építkezés előrehaladását telefonon
Kéthetente részletes fotódokumentációt kap
Az átadáskor digitálisan megkap minden szükséges hivatalos dokumentumot (garanciák, tervrajzok, jegyzőkönyvek)
Finanszírozási lehetőségek tárháza
Hitelből is megvásárolható
Díjmentes hitelügyintézés minden hazai bank felé
Elérhető aktuális állami támogatások
Várható átadás: 2026. III. negyedév
Ez az ingatlan ideális választás mindazok számára, akik modern, biztonságos és kényelmes otthont szeretnének. Ne hagyja ki ezt a kivételes lehetőséget!
ID: 390189