Nyomtatás
Amerikai konyhás: Igen; Kertkapcsolatos: Igen;

Eladó ikerház Budapest, X. kerület Szőlőtelep utca

ID szám: 85126

Az Ön üzletkötője:

Hallai Mónika
+36-30-649-5546

Főbb adatok:

Ajánlat Eladó
Típus Újépítésű
Jelleg Új családi ház
Ár 134.90 MFt

Ingatlan adatai

Épült 2025
Kerület Budapest X. kerület
Komfort Dupla komfort
Épületszintek 2 emelet
Lift nincs
Hasznos alapterület 130 nm
Telek területe 231 nm
Lakáshoz tartozó kert 231 nm
Erkély területe 2 nm
Terasz területe 5 nm
Egész szobák száma 4 db
Parkolás Teremgarázs-garázs
Emelet Nincs adat + Egyszerű emelet

Ingatlan bemutatása

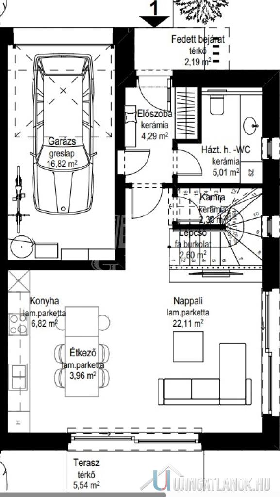
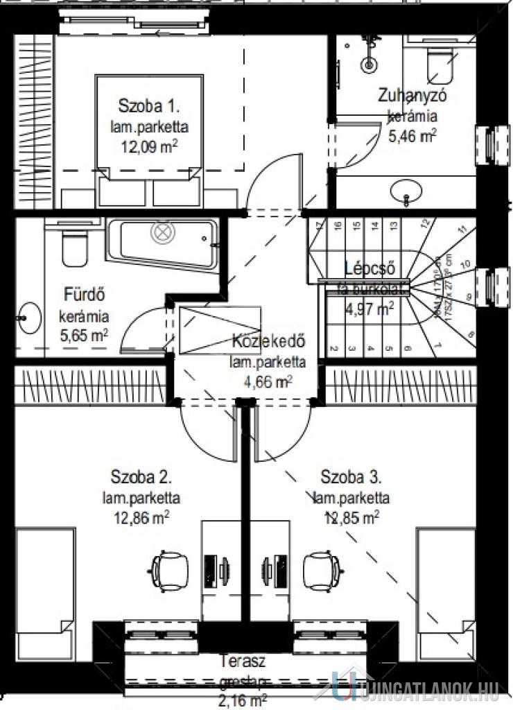
Új építésű, prémium kivitelezésű kétszintes ikerház Budapest X. kerületében – modern műszaki tartalommal és teljes átláthatósággal Csendes, nyugodt mellékutcában, kiváló közlekedési és infrastrukturális adottságok mellett épül ez a kétszintes, ikerházi lakás, amely a modern építészeti megoldásokat ötvözi a magas szintű műszaki tartalommal és a kényelmi extrákkal. Az ingatlan különlegessége a dupla falazat légréssel, amely kiváló hang- és hőszigetelést biztosít, így garantálva a nyugodt, zavartalan otthoni környezetet. Főbb adatok Hasznos alapterület: 122 m² Telekméret: 231 m² saját kerttel Szintek: földszint + emelet Hálószobák: 3 külön nyíló szoba Fürdőszobák: összesen 3 (2 az emeleten, 1 a földszinten) Nappali: 33 m²-es amerikai konyhás tér, közvetlen teraszkapcsolattal Parkolás: fedett, nagy méretű autó számára is alkalmas garázs Műszaki tartalom POROTHERM 30 N+F téglafalak, monolit vasbeton födém 15 cm homlokzati EPS hőszigetelés + 20 cm födémszigetelés Hőszivattyús rendszerrel működő korszerű gépészet Nappaliban fan-coil rendszer, az emeleten mennyezeti hűtés-fűtés Padlófűtés minden helyiségben 3 rétegű, hőszigetelt nyílászárók, biztonsági bejárati ajtó Laminált parketta és minőségi kerámia burkolatok Terrán Zenit Max Carbon tetőcserép Kényelmi és extra megoldások Teljes körű okosotthon rendszer Motoros alumínium redőnyök Kamera- és riasztórendszer előkészítés Videó kaputelefon Elektromos kapu és autótöltési lehetőség Automata öntözőrendszer Igényes WPC kerítés, rejtett kültéri világítás Légtechnikai rendszer kiépítve (garázs és előszoba) Garázs és kiegészítő műszaki részletek Temperált fűtéssel ellátott garázs Belső oldalon 5 cm-es hőszigetelés Praktikus kialakítás, nagyobb járművek számára is ideális Digitális projektkövetés – teljes átláthatóság A kivitelezés folyamata végig nyomon követhető: Élő projektkövetés mobilon keresztül Kéthetente részletes fotódokumentáció Átadáskor teljes digitális dokumentáció (tervek, garanciák, jegyzőkönyvek) Finanszírozás Hitel igényelhető Díjmentes hitelügyintézés Elérhető állami támogatások Várható átadás: 2026. III. negyedév Ez az ingatlan ideális választás azok számára, akik modern technológiával felszerelt, energiatakarékos és prémium minőségű otthont keresnek csendes, mégis jól megközelíthető környezetben. Ne maradjon le róla – kérjen további információt még ma! ID: 394053

Eladó ikerház Budapest, X. kerület Szőlőtelep utca

ID szám: 85126

Amerikai konyhás: Igen; Kertkapcsolatos: Igen;

Ajánlat

Eladó

Típus

Újépítésű

Épület jellege

Új családi ház

Ár

134.90 MFt

Ingatlan adatai

Épült 2025
Kerület Budapest X. kerület
Komfort Dupla komfort
Épületszintek tetőtér pinceszint földszint 2 emelet nincs nincs nincs
Lift nincs
Hasznos alapterület 130 nm
Telek területe 231 nm
Lakáshoz tartozó kert 231 nm
Erkély területe 2 nm
Terasz területe 5 nm
Egész szobák száma 4 db
Parkolás Teremgarázs-garázs
Emelet egyszerű emelet tetőtér tetőtéri kétszintes Nincs adat van nincs nincs
Nagyításhoz kattintson a képre

Az Ön üzletkötője:

Hallai Mónika
+36-30-649-5546
Üzenet az üzletkötőnek Ingatlan ajánlása Nyomtatási kép
Megosztás Facebookon Megosztás Twitteren

Ingatlan bemutatása

Új építésű, prémium kivitelezésű kétszintes ikerház Budapest X. kerületében – modern műszaki tartalommal és teljes átláthatósággal Csendes, nyugodt mellékutcában, kiváló közlekedési és infrastrukturális adottságok mellett épül ez a kétszintes, ikerházi lakás, amely a modern építészeti megoldásokat ötvözi a magas szintű műszaki tartalommal és a kényelmi extrákkal. Az ingatlan különlegessége a dupla falazat légréssel, amely kiváló hang- és hőszigetelést biztosít, így garantálva a nyugodt, zavartalan otthoni környezetet. Főbb adatok Hasznos alapterület: 122 m² Telekméret: 231 m² saját kerttel Szintek: földszint + emelet Hálószobák: 3 külön nyíló szoba Fürdőszobák: összesen 3 (2 az emeleten, 1 a földszinten) Nappali: 33 m²-es amerikai konyhás tér, közvetlen teraszkapcsolattal Parkolás: fedett, nagy méretű autó számára is alkalmas garázs Műszaki tartalom POROTHERM 30 N+F téglafalak, monolit vasbeton födém 15 cm homlokzati EPS hőszigetelés + 20 cm födémszigetelés Hőszivattyús rendszerrel működő korszerű gépészet Nappaliban fan-coil rendszer, az emeleten mennyezeti hűtés-fűtés Padlófűtés minden helyiségben 3 rétegű, hőszigetelt nyílászárók, biztonsági bejárati ajtó Laminált parketta és minőségi kerámia burkolatok Terrán Zenit Max Carbon tetőcserép Kényelmi és extra megoldások Teljes körű okosotthon rendszer Motoros alumínium redőnyök Kamera- és riasztórendszer előkészítés Videó kaputelefon Elektromos kapu és autótöltési lehetőség Automata öntözőrendszer Igényes WPC kerítés, rejtett kültéri világítás Légtechnikai rendszer kiépítve (garázs és előszoba) Garázs és kiegészítő műszaki részletek Temperált fűtéssel ellátott garázs Belső oldalon 5 cm-es hőszigetelés Praktikus kialakítás, nagyobb járművek számára is ideális Digitális projektkövetés – teljes átláthatóság A kivitelezés folyamata végig nyomon követhető: Élő projektkövetés mobilon keresztül Kéthetente részletes fotódokumentáció Átadáskor teljes digitális dokumentáció (tervek, garanciák, jegyzőkönyvek) Finanszírozás Hitel igényelhető Díjmentes hitelügyintézés Elérhető állami támogatások Várható átadás: 2026. III. negyedév Ez az ingatlan ideális választás azok számára, akik modern technológiával felszerelt, energiatakarékos és prémium minőségű otthont keresnek csendes, mégis jól megközelíthető környezetben. Ne maradjon le róla – kérjen további információt még ma! ID: 394053

Megosztás Facebookon Megosztás Twitteren
www.ujingatlanok.hu - QR kód

Linkajánló

 

LinkBank