Nyomtatás
|
Amerikai konyhás: Igen; Kertkapcsolatos: Igen;
|
||
Eladó ikerház Budapest, XV. kerület Árvavár utca |
ID szám: 83616 | |
|
Eladó ikerház Budapest, XV. kerület Árvavár utca
ID szám: 83616
Amerikai konyhás: Igen; Kertkapcsolatos: Igen;
Ajánlat
Eladó
Típus
Újszerű
Épület jellege
Új családi ház
Ár
189 MFt
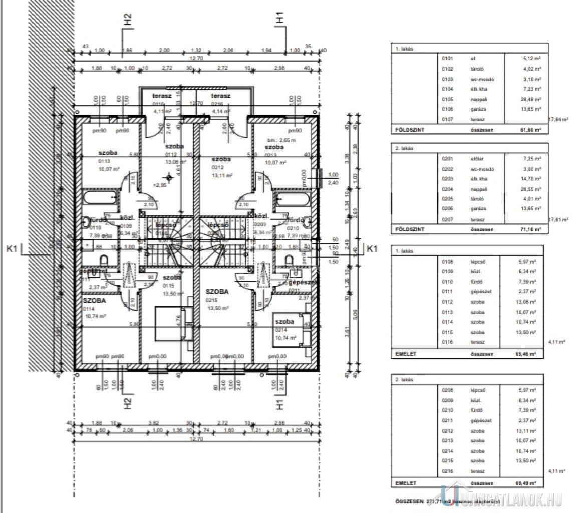
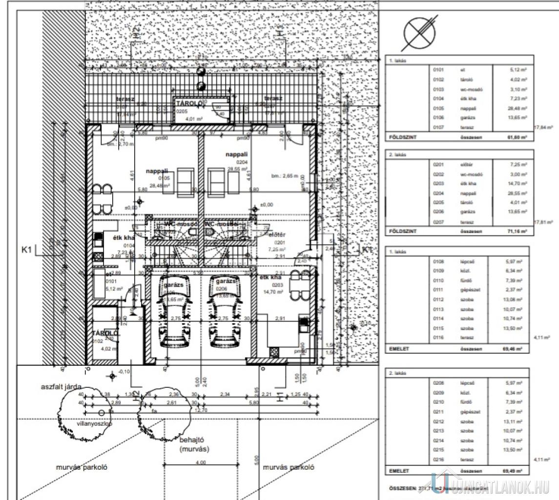
Ingatlan adatai
| Épült | 2025 |
|---|---|
| Kerület | Budapest XV. kerület |
| Komfort | Dupla komfort |
| Épületszintek tetőtér pinceszint földszint |
1 emelet
|
| Lift |
|
| Hasznos alapterület | 141 nm |
| Telek területe | 720 nm |
| Lakáshoz tartozó kert | 720 nm |
| Fűtési mód | Cirkófűtés |
| Egész szobák száma | 5 db |
| Parkolás | Teremgarázs-garázs |
| Emelet egyszerű emelet tetőtér tetőtéri kétszintes |
Nincs adat
|
Nagyításhoz kattintson a képre
Az Ön üzletkötője:
Balogh Csaba
+36-20-310-4234


