Nyomtatás
Amerikai konyhás: Igen; Kertkapcsolatos: Igen;

Eladó ikerház Budapest, XVIII. kerület Kerékvágás út

ID szám: 82283

Az Ön üzletkötője:

Lauer Kelvin
+36-20-505-6767

Főbb adatok:

Ajánlat Eladó
Típus Újépítésű
Jelleg Új családi ház
Ár 149.40 MFt

Ingatlan adatai

Épült 2026
Kerület Budapest XVIII. kerület
Övezet Almáskert
Komfort Összkomfort
Épületszintek 1 emelet
Lift nincs
Hasznos alapterület 146 nm
Telek területe 400 nm
Lakáshoz tartozó kert 400 nm
Terasz területe 13 nm
Egész szobák száma 4 db
Parkolás Teremgarázs-garázs
Emelet Nincs adat + Egyszerű emelet

Ingatlan bemutatása

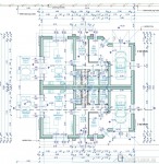
✨ Két Szintes Ikerház – Budapest XVIII., Almáskert – Modern, zöldövezeti otthon tágas terekkel Cím: 1182 Budapest, Almáskert Alapterület: 146 m² (nettó 120,88 m²) Telek: 1300 m² összesen (lakásonként min. 400 m² saját, leválasztott rész) Szobák száma: 4 Ár: 149.400.000- Leírás Ez az a hely, ahol a modern design találkozik a kertvárosi nyugalommal – és ahol végre nem kell kompromisszumot kötnöd. Ha szeretnél egy olyan otthonba hazajárni, ahol egyszerre érzed a nyugalmat, a modern kényelmet és a hosszú távú biztonságot, akkor ez az ikerház pontosan neked való. Egy olyan környéken, ahol a zöld és a friss levegő természetes, az új építésű házak között pedig jó érzés hazaérkezni. A ház hangulata – modern, fényes, szerethető Az otthon központja egy tágas, 34 m²-es amerikai konyhás nappali közvetlen kertkapcsolattal, amelyhez egy 15 m²-es terasz csatlakozik – ideális reggelihez, esti levegőzéshez, családi grillezéshez. Privát szféra: Az emeleti hálószobák (3 vagy akár 4 szoba) biztosítják. A hőszigetelt, 19,8 m²-es garázs elektromos kapuval érkezik, és két kényelmes méretű erkély is tartozik a házhoz (2,11 m² + 6,61 m²). Korszerű technológia, alacsony fenntartás Korszerű energetika — az építés során a szigorú jogszabályi és környezetvédelmi előírásoknak megfelelő technológiákat alkalmaznak, ami jövőálló működést és alacsonyabb fenntartási költségeket eredményez, hogy hosszú távon élhető, gazdaságosan fenntartható otthon legyen Ez a ház nem csak szép, de okos is. A levegő-víz hőszivattyús rendszer, a padlófűtés és a prémium szigetelés AA++ energetikai szintet garantál. 2db inverteres hűtő-fűtő klíma (nappaliban és az emeleti közlekedőben), minőségi, választható burkolatok, szaniterek és beltéri ajtók. Minden elem arra lett tervezve, hogy időtálló legyen és a napi kényelmet szolgálja. Igény szerint alakítható belső megoldások Felejtsd el a sablonmegoldásokat. Mivel a ház most épül, nem kész tények elé állítunk, hanem a kezedbe adjuk a döntést. Szabadság a részletekben: A burkolatokat, a beltéri ajtókat és a szanitereket te választhatod ki A belső kialakítás több ponton is személyre szabható, így az otthonod tényleg a saját elképzeléseidet tükrözheti. Kérhetsz extra kiállásokat, modern kényelmi funkciókat, külső-belső technikai előkészítéseket — a kivitelező rugalmas, és segít, hogy a végeredmény pontosan olyan legyen, ahogyan kéred Stabil háttér, kézzel fogható minőség A szomszédos referenciák és a megbízható saját tőkével rendelkező stabíl kivitelező a garancia arra, hogy jó helyen vagy. Ugyan is a projekt mögött egy olyan csapat áll, akinek több elkészült/készülő háza található a közvetlen környéken is. Ezeket bármikor be tudod járni – így még a döntés előtt pontosan látod, milyen minőséget kapsz majd kulcsra készen. A kész munkák magukért beszélnek. Építés – átadás Kezdés: 2025. szeptember Várható átadás: 2026. Első negyedév Olyan Családoknak és befektetőknek Ajánlom akik: szeretnek nyugodt környezetben élni, fontosnak tartják a modern technológiát, hosszú távra keresnek értékálló ingatlant, és nem csak egy házat szeretnének, hanem egy otthont. új építés + keresett kerületrész = likvid, értékálló befektetés. "Otthon a mában, érték a jövőben" Műszaki jellemzők és adatok: 30-as főfal 10 cm-es tégla válaszfalak + 15 cm homlokzati szigetelés Vasbeton sávalap Antracit/fehér 3 rétegű, 6 légkamrás thermo ablakok 12 kW levegő-víz hőszivattyú, 230 l-es víztartály Padlófűtés 2db 3,5 kW inverteres hűtő-fűtő Klíma Antracit színű cserép Amerikai konyhás nappali 3/4 hálószoba 2 fürdő Saját, kerítéssel elválasztott telekrész (kert) Kertkapcsolatos nappali Hőszigetelt szekcionált elektromos garázs -és elektromos kapuval. Riasztó, kamera és a napelem rendszer kiálásokkal szerelve. Bruttó: 146m² Nettó: 121m² Telek: 400m² Terasz: 12,6m² Belmagasság: 275cm Szoba: 13,92m² Szoba: 13,42m² Szoba: 10m² Szoba: 9,89m² Nappali-Konyha: 34m² Fürdőszoba: 7,13m² Fürdőszoba: 3,54m² Garázs: 19,8m² Háztartási helyiség: 6,84m² Közlekedő: 9,95m² Közlekedő: 14,87m²

Eladó ikerház Budapest, XVIII. kerület Kerékvágás út

ID szám: 82283

Amerikai konyhás: Igen; Kertkapcsolatos: Igen;

Ajánlat

Eladó

Típus

Újépítésű

Épület jellege

Új családi ház

Ár

149.40 MFt

Ingatlan adatai

Épült 2026
Kerület Budapest XVIII. kerület
Övezet Almáskert
Komfort Összkomfort
Épületszintek tetőtér pinceszint földszint 1 emelet nincs nincs nincs
Lift nincs
Hasznos alapterület 146 nm
Telek területe 400 nm
Lakáshoz tartozó kert 400 nm
Terasz területe 13 nm
Egész szobák száma 4 db
Parkolás Teremgarázs-garázs
Emelet egyszerű emelet tetőtér tetőtéri kétszintes Nincs adat van nincs nincs
Nagyításhoz kattintson a képre

Az Ön üzletkötője:

Lauer Kelvin
+36-20-505-6767
Üzenet az üzletkötőnek Ingatlan ajánlása Nyomtatási kép
Megosztás Facebookon Megosztás Twitteren

Ingatlan bemutatása

✨ Két Szintes Ikerház – Budapest XVIII., Almáskert – Modern, zöldövezeti otthon tágas terekkel Cím: 1182 Budapest, Almáskert Alapterület: 146 m² (nettó 120,88 m²) Telek: 1300 m² összesen (lakásonként min. 400 m² saját, leválasztott rész) Szobák száma: 4 Ár: 149.400.000- Leírás Ez az a hely, ahol a modern design találkozik a kertvárosi nyugalommal – és ahol végre nem kell kompromisszumot kötnöd. Ha szeretnél egy olyan otthonba hazajárni, ahol egyszerre érzed a nyugalmat, a modern kényelmet és a hosszú távú biztonságot, akkor ez az ikerház pontosan neked való. Egy olyan környéken, ahol a zöld és a friss levegő természetes, az új építésű házak között pedig jó érzés hazaérkezni. A ház hangulata – modern, fényes, szerethető Az otthon központja egy tágas, 34 m²-es amerikai konyhás nappali közvetlen kertkapcsolattal, amelyhez egy 15 m²-es terasz csatlakozik – ideális reggelihez, esti levegőzéshez, családi grillezéshez. Privát szféra: Az emeleti hálószobák (3 vagy akár 4 szoba) biztosítják. A hőszigetelt, 19,8 m²-es garázs elektromos kapuval érkezik, és két kényelmes méretű erkély is tartozik a házhoz (2,11 m² + 6,61 m²). Korszerű technológia, alacsony fenntartás Korszerű energetika — az építés során a szigorú jogszabályi és környezetvédelmi előírásoknak megfelelő technológiákat alkalmaznak, ami jövőálló működést és alacsonyabb fenntartási költségeket eredményez, hogy hosszú távon élhető, gazdaságosan fenntartható otthon legyen Ez a ház nem csak szép, de okos is. A levegő-víz hőszivattyús rendszer, a padlófűtés és a prémium szigetelés AA++ energetikai szintet garantál. 2db inverteres hűtő-fűtő klíma (nappaliban és az emeleti közlekedőben), minőségi, választható burkolatok, szaniterek és beltéri ajtók. Minden elem arra lett tervezve, hogy időtálló legyen és a napi kényelmet szolgálja. Igény szerint alakítható belső megoldások Felejtsd el a sablonmegoldásokat. Mivel a ház most épül, nem kész tények elé állítunk, hanem a kezedbe adjuk a döntést. Szabadság a részletekben: A burkolatokat, a beltéri ajtókat és a szanitereket te választhatod ki A belső kialakítás több ponton is személyre szabható, így az otthonod tényleg a saját elképzeléseidet tükrözheti. Kérhetsz extra kiállásokat, modern kényelmi funkciókat, külső-belső technikai előkészítéseket — a kivitelező rugalmas, és segít, hogy a végeredmény pontosan olyan legyen, ahogyan kéred Stabil háttér, kézzel fogható minőség A szomszédos referenciák és a megbízható saját tőkével rendelkező stabíl kivitelező a garancia arra, hogy jó helyen vagy. Ugyan is a projekt mögött egy olyan csapat áll, akinek több elkészült/készülő háza található a közvetlen környéken is. Ezeket bármikor be tudod járni – így még a döntés előtt pontosan látod, milyen minőséget kapsz majd kulcsra készen. A kész munkák magukért beszélnek. Építés – átadás Kezdés: 2025. szeptember Várható átadás: 2026. Első negyedév Olyan Családoknak és befektetőknek Ajánlom akik: szeretnek nyugodt környezetben élni, fontosnak tartják a modern technológiát, hosszú távra keresnek értékálló ingatlant, és nem csak egy házat szeretnének, hanem egy otthont. új építés + keresett kerületrész = likvid, értékálló befektetés. "Otthon a mában, érték a jövőben" Műszaki jellemzők és adatok: 30-as főfal 10 cm-es tégla válaszfalak + 15 cm homlokzati szigetelés Vasbeton sávalap Antracit/fehér 3 rétegű, 6 légkamrás thermo ablakok 12 kW levegő-víz hőszivattyú, 230 l-es víztartály Padlófűtés 2db 3,5 kW inverteres hűtő-fűtő Klíma Antracit színű cserép Amerikai konyhás nappali 3/4 hálószoba 2 fürdő Saját, kerítéssel elválasztott telekrész (kert) Kertkapcsolatos nappali Hőszigetelt szekcionált elektromos garázs -és elektromos kapuval. Riasztó, kamera és a napelem rendszer kiálásokkal szerelve. Bruttó: 146m² Nettó: 121m² Telek: 400m² Terasz: 12,6m² Belmagasság: 275cm Szoba: 13,92m² Szoba: 13,42m² Szoba: 10m² Szoba: 9,89m² Nappali-Konyha: 34m² Fürdőszoba: 7,13m² Fürdőszoba: 3,54m² Garázs: 19,8m² Háztartási helyiség: 6,84m² Közlekedő: 9,95m² Közlekedő: 14,87m²

Megosztás Facebookon Megosztás Twitteren
www.ujingatlanok.hu - QR kód

Linkajánló

 

LinkBank