Nyomtatás
Amerikai konyhás: Igen; Kertkapcsolatos: Igen;
|
Eladó ikerház Budapest, XXII. kerület Budafok kedvelt részén ÚJ Ikerház ! |
ID szám: 85202 |
|
Az Ön üzletkötője:
 László István
 +36-30-638-1550
|
Főbb adatok:
| Ajánlat |
Eladó |
| Típus |
Újépítésű |
| Jelleg |
Új családi ház |
| Ár |
142.90 MFt |
|
Ingatlan adatai
| Épült |
2026 |
| Kerület |
Budapest XXII. kerület |
| Övezet |
Budatétény |
| Komfort |
Összkomfort |
|
Épületszintek
|
1 emelet |
| Lift |
nincs |
| Hasznos alapterület |
88 nm |
| Telek területe |
300 nm |
| Lakáshoz tartozó kert |
300 nm |
| Erkély területe |
13 nm |
| Terasz területe |
13 nm |
| Egész szobák száma |
3 db |
| Emelet |
Nincs adat + Egyszerű emelet |
|
Ingatlan bemutatása
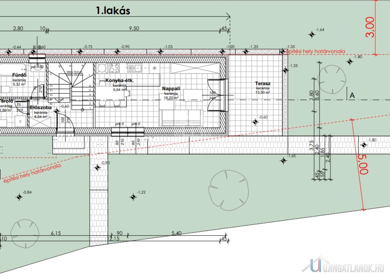
Eladásra kínálunk Budapest XXII. kerületében Budafokon 300 m2-es kerttel rendelkező belső kétszintes, dupla komfortos, nappali + 2 szobás, összesen 75 m2 nettó hasznos lakóterülettel rendelkező, új építésű ikerházat.
Elrendezés:
Földszint: nettó 41 m2 + terasz
• Nappali 18.2 m2
• Konyha - étkező 6.46 m2
• Előszoba 6.04 m2
• Fürdő - mosdó 5.27 m2
• Háztartási h. 5.32 m2
• Terasz 13,5 m2
Emelet: nettó 34 m2
• 2 szoba 12.6 m2, 10.44 m2
• Zuhanyzó + mosdó 2.75 m2
• Előszoba 2,15m2
• Lépcső 5,45 m2
• Tetőtéri terasz 13,5 m2
Kert:
• 300 m2
Műszaki paraméterek – szerkezeti leírás (részlet):
Beton sávalap. Tégla főfalak + 15 cm dryvit szigetelés.Tégla válaszfalak. Műanyag külső nyílászárók hőszigetelt üvegezéssel. Belső nyílászárók dekorfóliás ajtók. Cserép fedésű tető.
Fűtés: Az épület fűtését hőszivattyús rendszer látja el, minden helyiségben padlófűtés található.
Hideg-meleg burkolatok kiválaszthatók a műszaki leírásban rögzített árak szerint.
Tapasztalt - megbízható generál kivitelező munkájával készül a ház - referencia ingatlanjai megtekinthetőek!
Kiváló lokációval rendelkezik az ingatlan. A közelben található iskola – óvoda – bölcsőde – bevásárlóközpont.
Projekt átadás: 2026. november -december
Az ingatlant fiatal pároknak és családoknak egyaránt ajánljuk.
Amennyiben Önnek a vásárláshoz szüksége lenne hitelre egyedi kedvezménnyel,kezdeményezheti a kapcsolatfelvételt bankfüggetlen hitelügyintézőinkkel, teljesen DÍJMENTESEN.
Az ingatlan részletes ismertetése és bemutatása előre egyeztetett időpontban lehetséges, melyet nagyon rugalmasan kezelünk, akár HÉTVÉGÉN is.
Amennyiben felkeltette az érdeklődését, további kérdéseivel kapcsolatban várom jelentkezését!
|
|
Eladó ikerház Budapest, XXII. kerület Budafok kedvelt részén ÚJ Ikerház !
ID szám: 85202
Amerikai konyhás: Igen; Kertkapcsolatos: Igen;
Ajánlat
Eladó
Típus
Újépítésű
Épület jellege
Új családi ház
Ár
142.90 MFt
Ingatlan adatai
| Épült |
2026 |
| Kerület |
Budapest XXII. kerület |
| Övezet |
Budatétény |
| Komfort |
Összkomfort |
|
Épületszintek
tetőtér
pinceszint
földszint
|
1 emelet
|
| Lift |
|
| Hasznos alapterület |
88 nm |
| Telek területe |
300 nm |
| Lakáshoz tartozó kert |
300 nm |
| Erkély területe |
13 nm |
| Terasz területe |
13 nm |
| Egész szobák száma |
3 db |
| Emelet
egyszerű emelet
tetőtér
tetőtéri kétszintes
|
Nincs adat
|
Ingatlan bemutatása
Eladásra kínálunk Budapest XXII. kerületében Budafokon 300 m2-es kerttel rendelkező belső kétszintes, dupla komfortos, nappali + 2 szobás, összesen 75 m2 nettó hasznos lakóterülettel rendelkező, új építésű ikerházat.
Elrendezés:
Földszint: nettó 41 m2 + terasz
• Nappali 18.2 m2
• Konyha - étkező 6.46 m2
• Előszoba 6.04 m2
• Fürdő - mosdó 5.27 m2
• Háztartási h. 5.32 m2
• Terasz 13,5 m2
Emelet: nettó 34 m2
• 2 szoba 12.6 m2, 10.44 m2
• Zuhanyzó + mosdó 2.75 m2
• Előszoba 2,15m2
• Lépcső 5,45 m2
• Tetőtéri terasz 13,5 m2
Kert:
• 300 m2
Műszaki paraméterek – szerkezeti leírás (részlet):
Beton sávalap. Tégla főfalak + 15 cm dryvit szigetelés.Tégla válaszfalak. Műanyag külső nyílászárók hőszigetelt üvegezéssel. Belső nyílászárók dekorfóliás ajtók. Cserép fedésű tető.
Fűtés: Az épület fűtését hőszivattyús rendszer látja el, minden helyiségben padlófűtés található.
Hideg-meleg burkolatok kiválaszthatók a műszaki leírásban rögzített árak szerint.
Tapasztalt - megbízható generál kivitelező munkájával készül a ház - referencia ingatlanjai megtekinthetőek!
Kiváló lokációval rendelkezik az ingatlan. A közelben található iskola – óvoda – bölcsőde – bevásárlóközpont.
Projekt átadás: 2026. november -december
Az ingatlant fiatal pároknak és családoknak egyaránt ajánljuk.
Amennyiben Önnek a vásárláshoz szüksége lenne hitelre egyedi kedvezménnyel,kezdeményezheti a kapcsolatfelvételt bankfüggetlen hitelügyintézőinkkel, teljesen DÍJMENTESEN.
Az ingatlan részletes ismertetése és bemutatása előre egyeztetett időpontban lehetséges, melyet nagyon rugalmasan kezelünk, akár HÉTVÉGÉN is.
Amennyiben felkeltette az érdeklődését, további kérdéseivel kapcsolatban várom jelentkezését!