Nyomtatás
Amerikai konyhás: Igen; Kertkapcsolatos: Igen;
|
Eladó ikerház Dabas Kormányablak vonzásában! |
ID szám: 86273 |
|
Az Ön üzletkötője:
 Lőrinczy László
 +36-30-180-4608
|
Főbb adatok:
| Ajánlat |
Eladó |
| Típus |
Újszerű |
| Jelleg |
Új családi ház |
| Ár |
79.99 MFt |
|
Ingatlan adatai
| Épült |
2026 |
| Megye |
Pest megye |
| Város |
Dabas |
| Komfort |
Összkomfort |
|
Épületszintek
|
1 emelet |
| Lift |
nincs |
| Hasznos alapterület |
90 nm |
| Telek területe |
300 nm |
| Lakáshoz tartozó kert |
300 nm |
| Terasz területe |
6 nm |
| Egész szobák száma |
4 db |
| Parkolás |
Udvaron-felszíni beálló |
| Emelet |
Nincs adat + Egyszerű emelet |
|
Ingatlan bemutatása
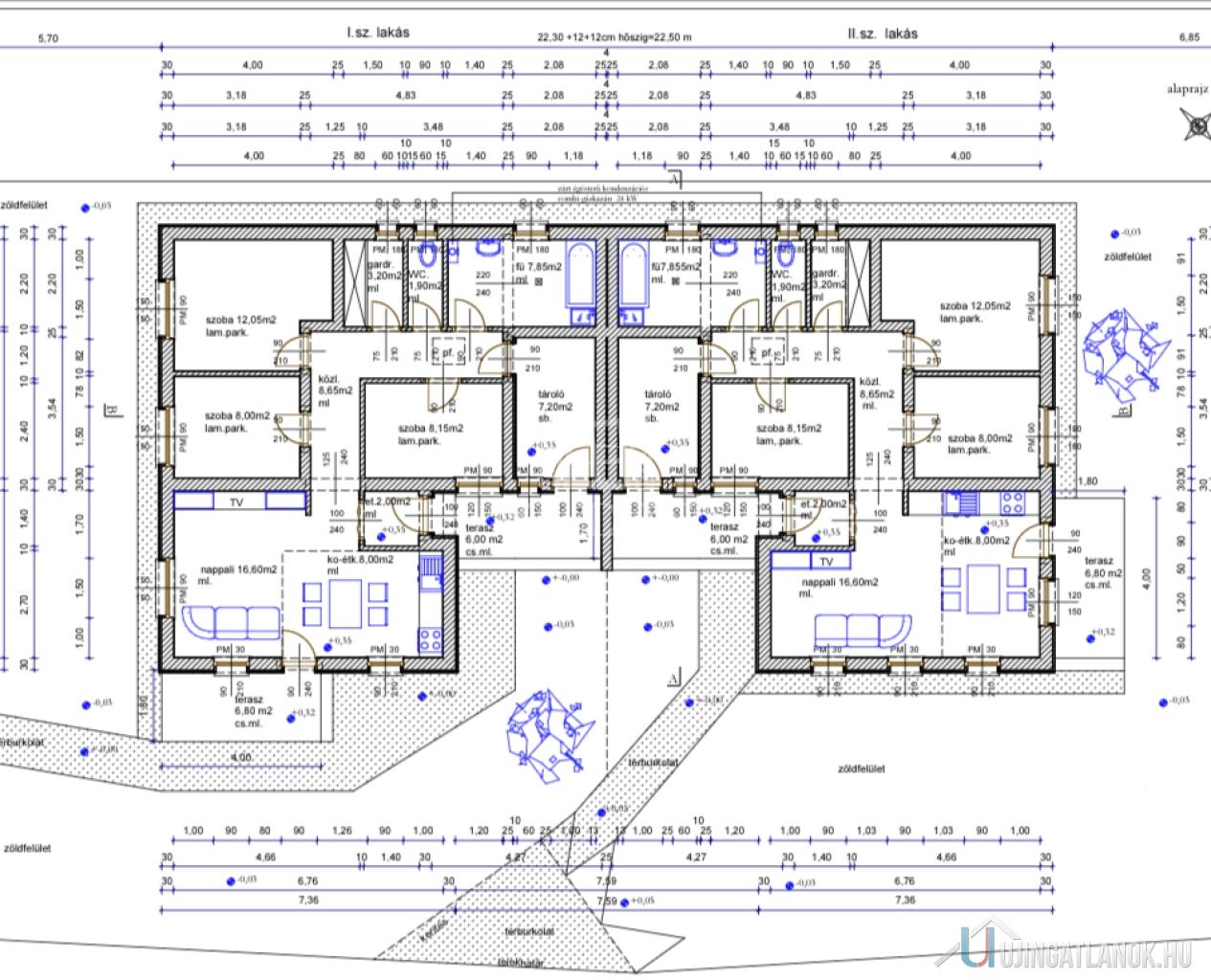
Dabason 300 nm-es intim telken, újonnan épülő nettó 84 nm-es hasznos lakótérrel rendelkező, nappali+3 hálós hátsó ikerház eladó.
Az ingatlan 30-as Ytong falazóelemből épült, fa födémmel.
A tető héjazata antracit betoncserép, a homlokzatok 10cm Austrotherm EPS, a padló 10cm Austrotherm AT-N100-as, a vízszintes födém 25cm Ásványgyapot szigeteléssel lesz ellátva.
A minimális energiaigényt a megfelelő szigetelésen kívül a megújuló energiát használó gépészet is biztosítja, a fűtést és a meleg víz ellátást hőszivattyús rendszer fogja ellátni, padlófűtéssel.
A műszaki tartalom választható az alábbi költségkereten belül:
-hidegburkolat: 6000.- Ft./m2-ig.
-meleg burkolat: 6000.- Ft./m2-ig
-csaptelepek:15.000.- Ft./db
-kád vagy zuhany: 40.000.- Ft.
-beltéri ajtók:35.000.- Ft./db
Elektromos kiépítés:
-Konnektorok szobákban: 3 db
-Konnektorok nappaliban: 4 db + internet és kábel tv kiállás
-Konnektorok konyhában: 6 db
-Világítás helyiségenként:1-1 db
-Kábeltévé: Előkészítés
Magasabb árú tatalom is választható a különbség finanszírozásával, várható átadás megállapodást követően fél éven belül.
INGYENES hitel tanácsadás, CSOK Plusz Otthonstart ügyintézés!
BANKFÜGGETLEN hitelcentrumunk az összes elérhető bank és hitelintézet ajánlatát versenyezteti az Ön kedvéért, ráadásul DÍJMENTESEN.
Amennyiben hirdetésem felkeltette az érdeklődését vagy egyéb információra van szüksége hívjon bizalommal!
LL
|
|
Eladó ikerház Dabas Kormányablak vonzásában!
ID szám: 86273
Amerikai konyhás: Igen; Kertkapcsolatos: Igen;
Ajánlat
Eladó
Típus
Újszerű
Épület jellege
Új családi ház
Ár
79.99 MFt
Ingatlan adatai
| Épült |
2026 |
| Megye |
Pest megye |
| Város |
Dabas |
| Komfort |
Összkomfort |
|
Épületszintek
tetőtér
pinceszint
földszint
|
1 emelet
|
| Lift |
|
| Hasznos alapterület |
90 nm |
| Telek területe |
300 nm |
| Lakáshoz tartozó kert |
300 nm |
| Terasz területe |
6 nm |
| Egész szobák száma |
4 db |
| Parkolás |
Udvaron-felszíni beálló |
| Emelet
egyszerű emelet
tetőtér
tetőtéri kétszintes
|
Nincs adat
|
Ingatlan bemutatása
Dabason 300 nm-es intim telken, újonnan épülő nettó 84 nm-es hasznos lakótérrel rendelkező, nappali+3 hálós hátsó ikerház eladó.
Az ingatlan 30-as Ytong falazóelemből épült, fa födémmel.
A tető héjazata antracit betoncserép, a homlokzatok 10cm Austrotherm EPS, a padló 10cm Austrotherm AT-N100-as, a vízszintes födém 25cm Ásványgyapot szigeteléssel lesz ellátva.
A minimális energiaigényt a megfelelő szigetelésen kívül a megújuló energiát használó gépészet is biztosítja, a fűtést és a meleg víz ellátást hőszivattyús rendszer fogja ellátni, padlófűtéssel.
A műszaki tartalom választható az alábbi költségkereten belül:
-hidegburkolat: 6000.- Ft./m2-ig.
-meleg burkolat: 6000.- Ft./m2-ig
-csaptelepek:15.000.- Ft./db
-kád vagy zuhany: 40.000.- Ft.
-beltéri ajtók:35.000.- Ft./db
Elektromos kiépítés:
-Konnektorok szobákban: 3 db
-Konnektorok nappaliban: 4 db + internet és kábel tv kiállás
-Konnektorok konyhában: 6 db
-Világítás helyiségenként:1-1 db
-Kábeltévé: Előkészítés
Magasabb árú tatalom is választható a különbség finanszírozásával, várható átadás megállapodást követően fél éven belül.
INGYENES hitel tanácsadás, CSOK Plusz Otthonstart ügyintézés!
BANKFÜGGETLEN hitelcentrumunk az összes elérhető bank és hitelintézet ajánlatát versenyezteti az Ön kedvéért, ráadásul DÍJMENTESEN.
Amennyiben hirdetésem felkeltette az érdeklődését vagy egyéb információra van szüksége hívjon bizalommal!
LL