Nyomtatás
Amerikai konyhás: Nem; Kertkapcsolatos: Igen;
|
Eladó ikerház Dömsöd Dunavecsei út környéke |
ID szám: 83623 |
|
Az Ön üzletkötője:
 Kémeri-Szekernyés Tímea
 +36-30-248-2485
|
Főbb adatok:
| Ajánlat |
Eladó |
| Típus |
Újépítésű |
| Jelleg |
Új családi ház |
| Ár |
49.90 MFt |
|
Ingatlan adatai
| Épült |
2026 |
| Megye |
Pest megye |
| Város |
Dömsöd |
| Komfort |
Összkomfort |
|
Épületszintek
|
1 emelet |
| Lift |
nincs |
| Hasznos alapterület |
64 nm |
| Telek területe |
194 nm |
| Lakáshoz tartozó kert |
194 nm |
| Terasz területe |
9 nm |
| Egész szobák száma |
3 db |
| Parkolás |
Udvaron-felszíni beálló |
| Emelet |
Nincs adat + Egyszerű emelet |
|
Ingatlan bemutatása
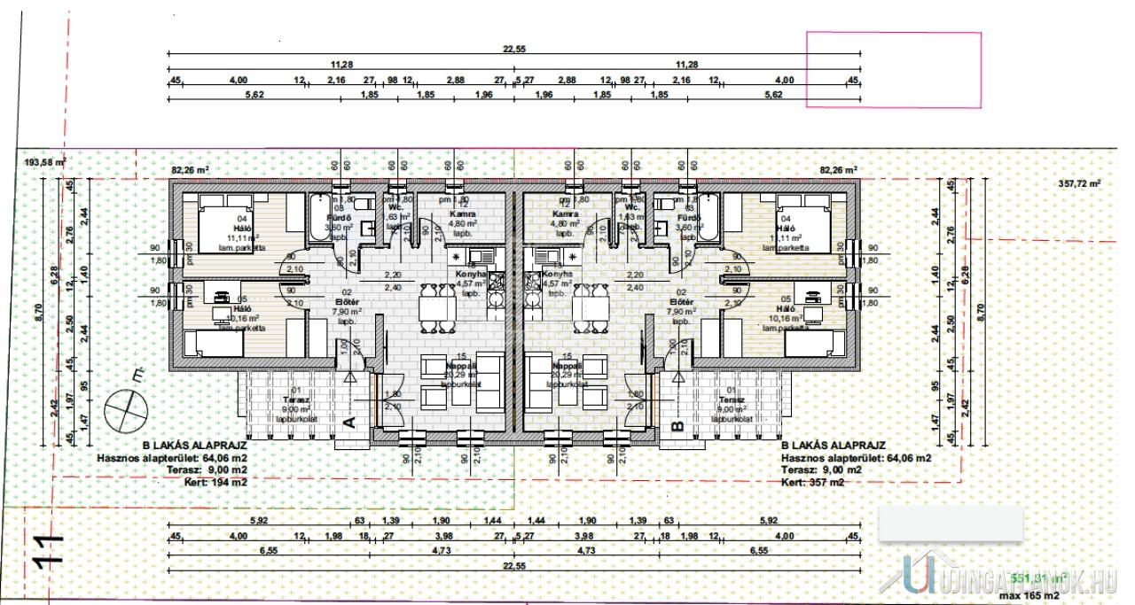
Eladó ikerház Dömsödön, a Dunavecsei út környékén.
A két fél között a telek mérete miatt árkülönbség van
A Lakás - 64,06 m2, telekméret: 194 m2 - ára 49.900.000 ft
B Lakás - 64,06 m2, telekméret 357 m2 - ára 50.900.000 ft
Az ingatlan jelenleg építés alatt áll és nappali kapcsolatos lesz!
A ház fűtéséről hőszivattyú gondoskodik.
Összesen 2 szoba és nappalis lesz az ikerház.
Várható átadási idő 2026 nyár.
Amennyiben szeretne egy teljesen új és korszerűen épített energiatakarékos otthonba költözni, ne habozzon, hívjon bizalommal!
FINANSZÍROZÁS:
Nálunk mindent egy helyen intézhet:
- hivatalos ingatlanközvetítés;
- szakszerű jogi képviselet;
- profi CSOK-PLUSZ, és hitelügyintézés: 16 Bank, több mint 100 konstrukció;
VÁROM MEGTISZTELŐ HÍVÁSÁT!
A részletes adatvédelmi tájékoztató folyamatosan elérhető a oldalon.
|
|
Eladó ikerház Dömsöd Dunavecsei út környéke
ID szám: 83623
Amerikai konyhás: Nem; Kertkapcsolatos: Igen;
Ajánlat
Eladó
Típus
Újépítésű
Épület jellege
Új családi ház
Ár
49.90 MFt
Ingatlan adatai
| Épült |
2026 |
| Megye |
Pest megye |
| Város |
Dömsöd |
| Komfort |
Összkomfort |
|
Épületszintek
tetőtér
pinceszint
földszint
|
1 emelet
|
| Lift |
|
| Hasznos alapterület |
64 nm |
| Telek területe |
194 nm |
| Lakáshoz tartozó kert |
194 nm |
| Terasz területe |
9 nm |
| Egész szobák száma |
3 db |
| Parkolás |
Udvaron-felszíni beálló |
| Emelet
egyszerű emelet
tetőtér
tetőtéri kétszintes
|
Nincs adat
|
Ingatlan bemutatása
Eladó ikerház Dömsödön, a Dunavecsei út környékén.
A két fél között a telek mérete miatt árkülönbség van
A Lakás - 64,06 m2, telekméret: 194 m2 - ára 49.900.000 ft
B Lakás - 64,06 m2, telekméret 357 m2 - ára 50.900.000 ft
Az ingatlan jelenleg építés alatt áll és nappali kapcsolatos lesz!
A ház fűtéséről hőszivattyú gondoskodik.
Összesen 2 szoba és nappalis lesz az ikerház.
Várható átadási idő 2026 nyár.
Amennyiben szeretne egy teljesen új és korszerűen épített energiatakarékos otthonba költözni, ne habozzon, hívjon bizalommal!
FINANSZÍROZÁS:
Nálunk mindent egy helyen intézhet:
- hivatalos ingatlanközvetítés;
- szakszerű jogi képviselet;
- profi CSOK-PLUSZ, és hitelügyintézés: 16 Bank, több mint 100 konstrukció;
VÁROM MEGTISZTELŐ HÍVÁSÁT!
A részletes adatvédelmi tájékoztató folyamatosan elérhető a oldalon.