Nyomtatás
|
Amerikai konyhás: Igen; Kertkapcsolatos: Igen;
|
||
Eladó ikerház Dunaharaszti Tópark Lakópark |
ID szám: 85013 | |
|
Eladó ikerház Dunaharaszti Tópark Lakópark
ID szám: 85013
Amerikai konyhás: Igen; Kertkapcsolatos: Igen;
Ajánlat
Eladó
Típus
Újépítésű
Épület jellege
Új családi ház
Ár
200 MFt
Ingatlan adatai
| Épült | 2025 |
|---|---|
| Megye | Pest megye |
| Város | Dunaharaszti |
| Komfort | Dupla komfort |
| Épületszintek tetőtér pinceszint földszint |
1 emelet
|
| Lift |
|
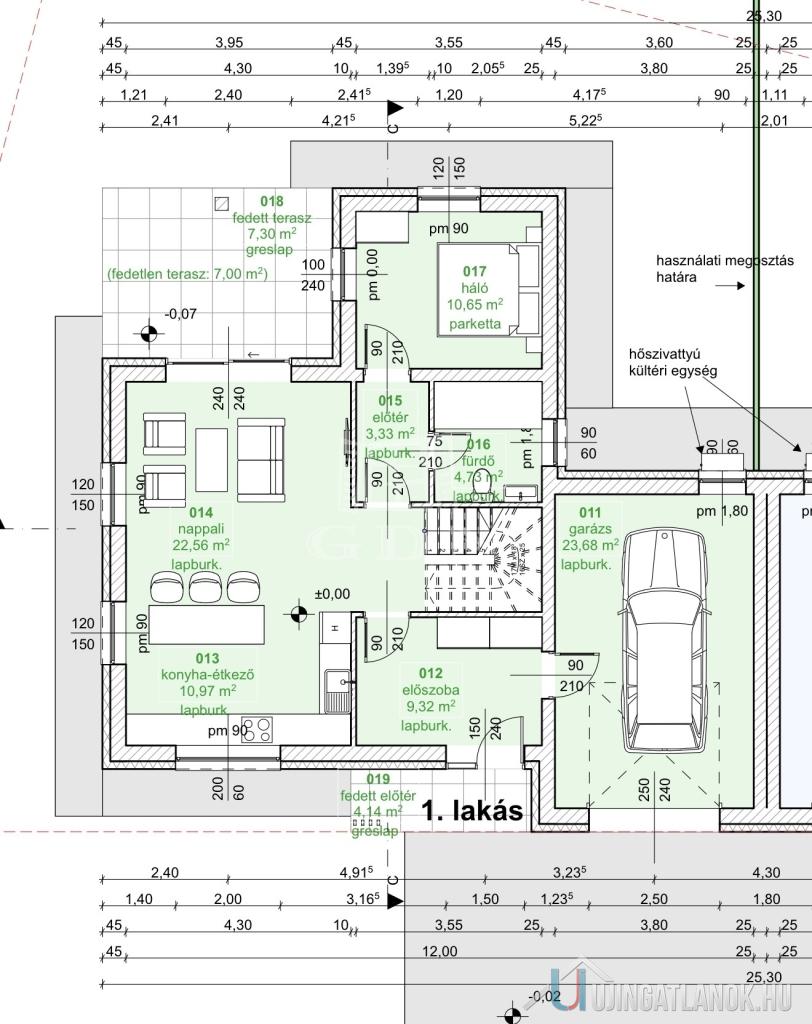
| Hasznos alapterület | 160 nm |
| Telek területe | 509 nm |
| Lakáshoz tartozó kert | 509 nm |
| Terasz területe | 19 nm |
| Egész szobák száma | 5 db |
| Parkolás | Teremgarázs-garázs |
| Emelet egyszerű emelet tetőtér tetőtéri kétszintes |
Nincs adat
|
Nagyításhoz kattintson a képre
Az Ön üzletkötője:
Göbölyös Ágnes
+36-30-397-6489


