Nyomtatás
Amerikai konyhás: Igen; Kertkapcsolatos: Igen;
|
Eladó ikerház Ecser pazar kertvárosban |
ID szám: 82158 |
|
Az Ön üzletkötője:
 Balogh Csaba
 +36-20-310-4234
|
Főbb adatok:
| Ajánlat |
Eladó |
| Típus |
Újszerű |
| Jelleg |
Új családi ház |
| Ár |
89.90 MFt |
|
Ingatlan adatai
| Épült |
2025 |
| Megye |
Pest megye |
| Város |
Ecser |
| Komfort |
Összkomfort |
|
Épületszintek
|
1 emelet |
| Lift |
nincs |
| Hasznos alapterület |
75 nm |
| Telek területe |
320 nm |
| Lakáshoz tartozó kert |
320 nm |
| Terasz területe |
15 nm |
| Egész szobák száma |
3 db |
| Parkolás |
Udvaron-felszíni beálló |
| Emelet |
Nincs adat + Egyszerű emelet |
|
Ingatlan bemutatása
IGÉNYES, MEGBÍZHATÓ, REFERENCIÁVAL RENDELKEZŐ BERUHÁZÓTÓL IKERHÁZ MINDKÉT FELE ELADÓ!!
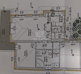
A jó ellátottságú, könnyen megközelíthető, XVII. kerület szomszédságában elhelyezkedő Ecseren, pazar kertvárosi környezetben kínálok eladásra, egy 320 m2-es telekterülettel rendelkező, kertkapcsolatos, lakásonként 75 m2 alapterületű, amerikai konyhás-nappalis + 2 különnyíló szobás, sarokkádas fürdőszobás, energiahatékony, alacsony fenntartású ikerház felet.
Az idei (2025) építésű, téglaszerkezetű ingatlan magas műszaki tartalommal kerül kialakításra, aminek része a 15 cm dryvit szigetelés, több rétegű műanyag nyílászárók, hőszivattyús padlófűtés.
A beruházó magas minőségű burkolatokat hidegburkolatokat: 10 ezer forint/m2, melegburkolatokat: 7 ezer forint/ m2 összeghatárig biztosít, magasabb vevői igény esetén a különbözet megfizetését követően az is lehetséges.
A jelenleg szerkezetkész állapotban lévő ingatlan várható átadása 2026 április-május.
Megtekinthető a hét bármely napján!
Várom a hívását, akár hétvégén is!
B.Cs.
|
|
Eladó ikerház Ecser pazar kertvárosban
ID szám: 82158
Amerikai konyhás: Igen; Kertkapcsolatos: Igen;
Ajánlat
Eladó
Típus
Újszerű
Épület jellege
Új családi ház
Ár
89.90 MFt
Ingatlan adatai
| Épült |
2025 |
| Megye |
Pest megye |
| Város |
Ecser |
| Komfort |
Összkomfort |
|
Épületszintek
tetőtér
pinceszint
földszint
|
1 emelet
|
| Lift |
|
| Hasznos alapterület |
75 nm |
| Telek területe |
320 nm |
| Lakáshoz tartozó kert |
320 nm |
| Terasz területe |
15 nm |
| Egész szobák száma |
3 db |
| Parkolás |
Udvaron-felszíni beálló |
| Emelet
egyszerű emelet
tetőtér
tetőtéri kétszintes
|
Nincs adat
|
Ingatlan bemutatása
IGÉNYES, MEGBÍZHATÓ, REFERENCIÁVAL RENDELKEZŐ BERUHÁZÓTÓL IKERHÁZ MINDKÉT FELE ELADÓ!!
A jó ellátottságú, könnyen megközelíthető, XVII. kerület szomszédságában elhelyezkedő Ecseren, pazar kertvárosi környezetben kínálok eladásra, egy 320 m2-es telekterülettel rendelkező, kertkapcsolatos, lakásonként 75 m2 alapterületű, amerikai konyhás-nappalis + 2 különnyíló szobás, sarokkádas fürdőszobás, energiahatékony, alacsony fenntartású ikerház felet.
Az idei (2025) építésű, téglaszerkezetű ingatlan magas műszaki tartalommal kerül kialakításra, aminek része a 15 cm dryvit szigetelés, több rétegű műanyag nyílászárók, hőszivattyús padlófűtés.
A beruházó magas minőségű burkolatokat hidegburkolatokat: 10 ezer forint/m2, melegburkolatokat: 7 ezer forint/ m2 összeghatárig biztosít, magasabb vevői igény esetén a különbözet megfizetését követően az is lehetséges.
A jelenleg szerkezetkész állapotban lévő ingatlan várható átadása 2026 április-május.
Megtekinthető a hét bármely napján!
Várom a hívását, akár hétvégén is!
B.Cs.