Nyomtatás
Amerikai konyhás: Igen; Kertkapcsolatos: Igen;

Eladó ikerház Ercsi Ercsi Duna-part közelében

ID szám: 85164

Az Ön üzletkötője:

Forster Tamás
+36-30-887-7351

Főbb adatok:

Ajánlat Eladó
Típus Újépítésű
Jelleg Új családi ház
Ár 65 MFt

Ingatlan adatai

Épült 2026
Megye Fejér megye
Város Ercsi
Komfort Összkomfort
Épületszintek 1 emelet
Lift nincs
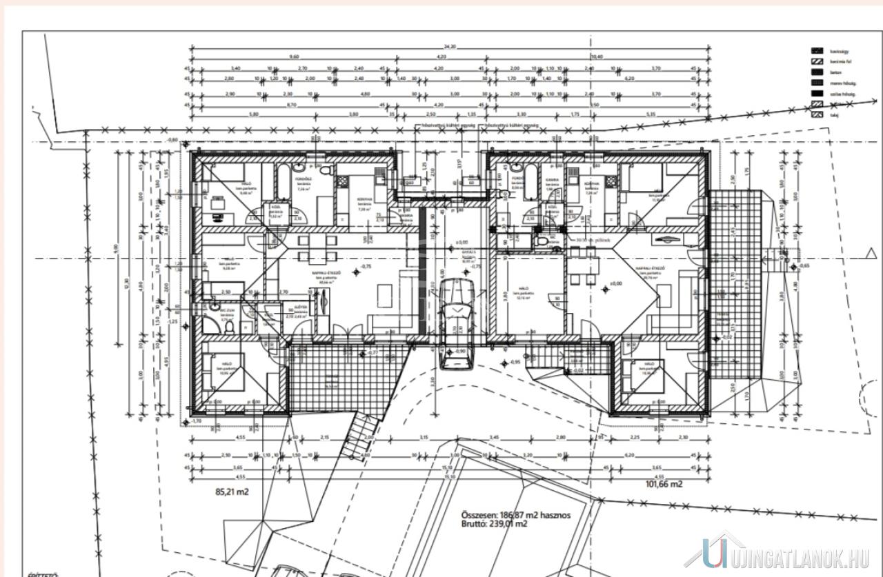
Hasznos alapterület 102 nm
Telek területe 860 nm
Lakáshoz tartozó kert 860 nm
Terasz területe 22 nm
Egész szobák száma 4 db
Parkolás Teremgarázs-garázs
Emelet Nincs adat + Egyszerű emelet

Ingatlan bemutatása

Lakóterek, ahol minden sarok beszél Ez a 85 m²-es lakás nem pusztán otthon, hanem tudatosan megtervezett élettér. A nappali–étkező központú kialakítás köré három külön nyíló hálószoba szerveződik, így a privát szféra és a közös terek tökéletes egyensúlyban vannak. A délnyugati tájolás egész napos fényt biztosít, a terasz pedig folytatása a belső térnek – kültéri nappaliként, reggeli kávétól az esti beszélgetésekig. Terasz-terápia A 22 m²-es terasz közvetlen kapcsolatban áll a kerttel. Itt a természet nem háttér, hanem a mindennapok részévé válik. Saját garázs, saját rend A saját garázs kényelmes parkolást és extra tárolóhelyet ad, így minden a praktikumot és a kényelmet szolgálja. Energia, ami mosolyra késztet A lakás korszerű hőszivattyús padlófűtéssel rendelkezik, az energiatakarékos melegvíz-ellátás minimálisra csökkenti a fenntartási költségeket, a precíz szigetelés és a 3 rétegű üvegezésű műanyag nyílászárók a komfortot szolgálják, a 2,7 m belmagasság pedig tágas, levegős tereket eredményez. Az önálló mérőórák teljesen leválasztott használatot biztosítanak. Apró részletek, nagy különbség A nappali és a hálószobák jól szeparáltak, a közlekedők praktikusak, a terasz a belső tér természetes folytatása. Minden részlet a hétköznapok kényelmét szolgálja, miközben a terek arányai és funkcionalitása rendkívül átgondolt. Mi teszi különlegessé ezt az otthont? - Ikerház jelleg, mégis teljesen elkülönített életterek - Kizárólagos kerthasználat, ahol a kültér valóban része az életnek - Modern, energiatakarékos megoldások, amelyek hosszú távon is megtérülnek - Nyugodt, rendezett környezet, ami pihenést és feltöltődést ad Várható átadás: 2026. A projektet egy tapasztalt, több sikeres munkával rendelkező kivitelező viszi végig, magas minőségben. Mivel az ingatlan még épül, most van itt az ideje, hogy beleszólj a részletekbe, és valóban a sajátodra formáld. Az átadás várható ideje a kivitelezés ütemétől függ – aktuális információkért keress bizalommal. Ha család, barátok vagy csak a saját nyugalmod a tét, itt minden szobában jut hely a nevetésnek.Ez az otthon nem csak falakból áll, hanem lehetőségekből, ahol minden pillanatra jut egy kis varázslat.

Eladó ikerház Ercsi Ercsi Duna-part közelében

ID szám: 85164

Amerikai konyhás: Igen; Kertkapcsolatos: Igen;

Ajánlat

Eladó

Típus

Újépítésű

Épület jellege

Új családi ház

Ár

65 MFt

Ingatlan adatai

Épült 2026
Megye Fejér megye
Város Ercsi
Komfort Összkomfort
Épületszintek tetőtér pinceszint földszint 1 emelet nincs nincs nincs
Lift nincs
Hasznos alapterület 102 nm
Telek területe 860 nm
Lakáshoz tartozó kert 860 nm
Terasz területe 22 nm
Egész szobák száma 4 db
Parkolás Teremgarázs-garázs
Emelet egyszerű emelet tetőtér tetőtéri kétszintes Nincs adat van nincs nincs
Nagyításhoz kattintson a képre

Az Ön üzletkötője:

Forster Tamás
+36-30-887-7351
Üzenet az üzletkötőnek Ingatlan ajánlása Nyomtatási kép
Megosztás Facebookon Megosztás Twitteren

Ingatlan bemutatása

Lakóterek, ahol minden sarok beszél Ez a 85 m²-es lakás nem pusztán otthon, hanem tudatosan megtervezett élettér. A nappali–étkező központú kialakítás köré három külön nyíló hálószoba szerveződik, így a privát szféra és a közös terek tökéletes egyensúlyban vannak. A délnyugati tájolás egész napos fényt biztosít, a terasz pedig folytatása a belső térnek – kültéri nappaliként, reggeli kávétól az esti beszélgetésekig. Terasz-terápia A 22 m²-es terasz közvetlen kapcsolatban áll a kerttel. Itt a természet nem háttér, hanem a mindennapok részévé válik. Saját garázs, saját rend A saját garázs kényelmes parkolást és extra tárolóhelyet ad, így minden a praktikumot és a kényelmet szolgálja. Energia, ami mosolyra késztet A lakás korszerű hőszivattyús padlófűtéssel rendelkezik, az energiatakarékos melegvíz-ellátás minimálisra csökkenti a fenntartási költségeket, a precíz szigetelés és a 3 rétegű üvegezésű műanyag nyílászárók a komfortot szolgálják, a 2,7 m belmagasság pedig tágas, levegős tereket eredményez. Az önálló mérőórák teljesen leválasztott használatot biztosítanak. Apró részletek, nagy különbség A nappali és a hálószobák jól szeparáltak, a közlekedők praktikusak, a terasz a belső tér természetes folytatása. Minden részlet a hétköznapok kényelmét szolgálja, miközben a terek arányai és funkcionalitása rendkívül átgondolt. Mi teszi különlegessé ezt az otthont? - Ikerház jelleg, mégis teljesen elkülönített életterek - Kizárólagos kerthasználat, ahol a kültér valóban része az életnek - Modern, energiatakarékos megoldások, amelyek hosszú távon is megtérülnek - Nyugodt, rendezett környezet, ami pihenést és feltöltődést ad Várható átadás: 2026. A projektet egy tapasztalt, több sikeres munkával rendelkező kivitelező viszi végig, magas minőségben. Mivel az ingatlan még épül, most van itt az ideje, hogy beleszólj a részletekbe, és valóban a sajátodra formáld. Az átadás várható ideje a kivitelezés ütemétől függ – aktuális információkért keress bizalommal. Ha család, barátok vagy csak a saját nyugalmod a tét, itt minden szobában jut hely a nevetésnek.Ez az otthon nem csak falakból áll, hanem lehetőségekből, ahol minden pillanatra jut egy kis varázslat.

Megosztás Facebookon Megosztás Twitteren
www.ujingatlanok.hu - QR kód

Linkajánló

 

LinkBank