Nyomtatás
Amerikai konyhás: Nem; Kertkapcsolatos: Igen;
|
Eladó ikerház Kerepes Panoráma lakópark |
ID szám: 85912 |
|
Az Ön üzletkötője:
 Jekkel Béla
 +36-30-572-2590
|
Főbb adatok:
| Ajánlat |
Eladó |
| Típus |
Újszerű |
| Jelleg |
Új családi ház |
| Ár |
72.50 MFt |
|
Ingatlan adatai
| Épült |
2024 |
| Megye |
Pest megye |
| Város |
Kerepes |
| Fűtési mód |
Egyéb |
|
Épületszintek
|
1 emelet |
| Lift |
nincs |
| Hasznos alapterület |
108 nm |
| Telek területe |
750 nm |
| Lakáshoz tartozó kert |
750 nm |
| Terasz területe |
13 nm |
| Fűtési mód |
Egyéb |
| Egész szobák száma |
4 db |
| Parkolás |
Teremgarázs-garázs |
| Emelet |
Nincs adat + Egyszerű emelet |
|
Ingatlan bemutatása
Panoráma. Kert. Terasz.
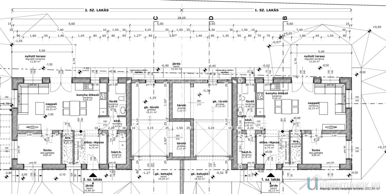
Eladó Kerepes legszebb részén, a Panoráma lakóparkban egy 134 m²-es, félig kész ikerházfél 390 m² saját telekkel és 13 m² terasszal – most bevezető áron: 72,5 millió Ft-ért.(Az ár a jelenlegi, befejezés előtti állapotra vonatkozik.) A közcsatornázás 2027 eleji moratóriumfeloldásig fúrt kúttal és szikkasztóval megoldott, így a mindennapi használat biztosított. Az ikerházfél akár egyben is megvásárolható a másik féllel!
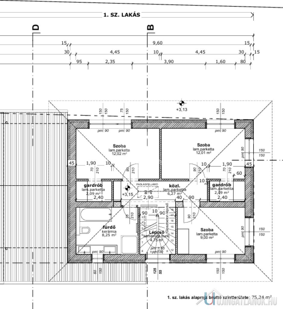
A nettó 108 m²-es lakótérhez garázs, tároló és padlás tartozik. Az alsó szinten amerikai konyhás nappali, teraszkapcsolat és vendégszoba, az emeleten három külön nyíló szoba és tágas fürdő kapott helyet. A telekről lenyűgöző örökpanoráma nyílik, a környék csendes, mégis könnyen elérhető Budapest.
Ritka lehetőség: saját igényeid szerint fejezheted be, miközben már most értéket képvisel – CSOK és államilag támogatott hitel is igénybe vehető.
|
|
Eladó ikerház Kerepes Panoráma lakópark
ID szám: 85912
Amerikai konyhás: Nem; Kertkapcsolatos: Igen;
Ajánlat
Eladó
Típus
Újszerű
Épület jellege
Új családi ház
Ár
72.50 MFt
Ingatlan adatai
| Épült |
2024 |
| Megye |
Pest megye |
| Város |
Kerepes |
|
Épületszintek
tetőtér
pinceszint
földszint
|
1 emelet
|
| Lift |
|
| Hasznos alapterület |
108 nm |
| Telek területe |
750 nm |
| Lakáshoz tartozó kert |
750 nm |
| Terasz területe |
13 nm |
| Fűtési mód |
Egyéb |
| Egész szobák száma |
4 db |
| Parkolás |
Teremgarázs-garázs |
| Emelet
egyszerű emelet
tetőtér
tetőtéri kétszintes
|
Nincs adat
|
Ingatlan bemutatása
Panoráma. Kert. Terasz.
Eladó Kerepes legszebb részén, a Panoráma lakóparkban egy 134 m²-es, félig kész ikerházfél 390 m² saját telekkel és 13 m² terasszal – most bevezető áron: 72,5 millió Ft-ért.(Az ár a jelenlegi, befejezés előtti állapotra vonatkozik.) A közcsatornázás 2027 eleji moratóriumfeloldásig fúrt kúttal és szikkasztóval megoldott, így a mindennapi használat biztosított. Az ikerházfél akár egyben is megvásárolható a másik féllel!
A nettó 108 m²-es lakótérhez garázs, tároló és padlás tartozik. Az alsó szinten amerikai konyhás nappali, teraszkapcsolat és vendégszoba, az emeleten három külön nyíló szoba és tágas fürdő kapott helyet. A telekről lenyűgöző örökpanoráma nyílik, a környék csendes, mégis könnyen elérhető Budapest.
Ritka lehetőség: saját igényeid szerint fejezheted be, miközben már most értéket képvisel – CSOK és államilag támogatott hitel is igénybe vehető.