Nyomtatás
Amerikai konyhás: Igen; Kertkapcsolatos: Igen;
|
Eladó ikerház Kóka József Attila utca |
ID szám: 83711 |
|
Az Ön üzletkötője:
 Horváth Péter
 +36-70-606-2990
|
Főbb adatok:
| Ajánlat |
Eladó |
| Típus |
Újépítésű |
| Jelleg |
Új családi ház |
| Ár |
58.99 MFt |
|
Ingatlan adatai
| Épült |
2026 |
| Megye |
Pest megye |
| Város |
Kóka |
| Komfort |
Összkomfort |
|
Épületszintek
|
1 emelet |
| Lift |
nincs |
| Hasznos alapterület |
101 nm |
| Telek területe |
934 nm |
| Lakáshoz tartozó kert |
934 nm |
| Terasz területe |
14 nm |
| Egész szobák száma |
4 db |
| Parkolás |
Teremgarázs-garázs |
| Emelet |
Nincs adat + Egyszerű emelet |
|
Ingatlan bemutatása
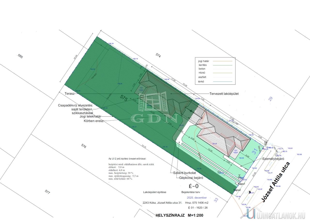
Kókán a József Attila utca 31. szám alatt, 1406 m2-es telkeken, újonnan épülő nettó 101,45 m2 nettó hasznos lakótérrel rendelkező, kulcsrakész ikerházfelek eladóak
Az ingatlanok csak a fedett gépkocsibeállóval érintkeznek.
Az utcafronti ház kizárólagos használatú telekrésze 472 m2. A hátsó háznak 934 m2-es a kizárólagos használatú telekrésze.
Az ingatlanok 30-as Nútféderes téglából épülnek, fa födémmel.
A tető héjazata betoncserép lesz, a homlokzatok 15cm EPS, a padló 10cm lépésálló, a födém 30cm ásványgyapot szigeteléssel lesz ellátva.
A külső nyílászárók 6 légkamrás háromrétegű üveggel szerelt műanyag thermók lesznek.
A fűtést hőszivattyús rendszer fogja ellátni, padlófűtéssel.
Műszaki tartalom:
-Csempe, járólap 3000 ft/m²
-Meleg burkolat 3000 Ft/m²
-Fürdőkád: 40.000.- Ft
-Beltéri ajtók 32.000.- Ft. /db
-Csaptelepek: 15.000.- Ft. /db
Magasabb árú választás is lehetséges a különbség finanszírozásával.
Elektromos kiépítés:
-Konnektorok szobákban: 3 db
-Konnektorok nappaliban 4db + internet és kábeltv kiállás
-Konnektorok konyhában: 6db
-Világítás helyiségenként 1-1 db
-Kábeltévé: Előkészítés
-Kapumozgató elektronika: előkészítés
-Riasztó: előkészítés
Az utcafronti kerítés színezett zsalukővel, fa lécezéssel készül.
A kivitelező korábban épített ingatlanjait komoly érdeklődés esetén szívesen megmutatjuk referenciaként.
INGYENES hitel tanácsadás, Otthon Start, CSOK Plusz ügyintézés!
BANKFÜGGETLEN hitelcentrumunk az összes elérhető bank és hitelintézet ajánlatát versenyezteti az Ön kedvéért, ráadásul DÍJMENTESEN.
- Egyedi, bankfiókban nem elérhető kamat- és díjkedvezmények
- Hitelképesség vizsgálat
- Idő, energia és pénz megtakarítás
- Teljes hivatali ügyintézés
Amennyiben hirdetésem felkeltette az érdeklődését vagy egyéb információra van szüksége hívjon bizalommal!
|
|
Eladó ikerház Kóka József Attila utca
ID szám: 83711
Amerikai konyhás: Igen; Kertkapcsolatos: Igen;
Ajánlat
Eladó
Típus
Újépítésű
Épület jellege
Új családi ház
Ár
58.99 MFt
Ingatlan adatai
| Épült |
2026 |
| Megye |
Pest megye |
| Város |
Kóka |
| Komfort |
Összkomfort |
|
Épületszintek
tetőtér
pinceszint
földszint
|
1 emelet
|
| Lift |
|
| Hasznos alapterület |
101 nm |
| Telek területe |
934 nm |
| Lakáshoz tartozó kert |
934 nm |
| Terasz területe |
14 nm |
| Egész szobák száma |
4 db |
| Parkolás |
Teremgarázs-garázs |
| Emelet
egyszerű emelet
tetőtér
tetőtéri kétszintes
|
Nincs adat
|
Ingatlan bemutatása
Kókán a József Attila utca 31. szám alatt, 1406 m2-es telkeken, újonnan épülő nettó 101,45 m2 nettó hasznos lakótérrel rendelkező, kulcsrakész ikerházfelek eladóak
Az ingatlanok csak a fedett gépkocsibeállóval érintkeznek.
Az utcafronti ház kizárólagos használatú telekrésze 472 m2. A hátsó háznak 934 m2-es a kizárólagos használatú telekrésze.
Az ingatlanok 30-as Nútféderes téglából épülnek, fa födémmel.
A tető héjazata betoncserép lesz, a homlokzatok 15cm EPS, a padló 10cm lépésálló, a födém 30cm ásványgyapot szigeteléssel lesz ellátva.
A külső nyílászárók 6 légkamrás háromrétegű üveggel szerelt műanyag thermók lesznek.
A fűtést hőszivattyús rendszer fogja ellátni, padlófűtéssel.
Műszaki tartalom:
-Csempe, járólap 3000 ft/m²
-Meleg burkolat 3000 Ft/m²
-Fürdőkád: 40.000.- Ft
-Beltéri ajtók 32.000.- Ft. /db
-Csaptelepek: 15.000.- Ft. /db
Magasabb árú választás is lehetséges a különbség finanszírozásával.
Elektromos kiépítés:
-Konnektorok szobákban: 3 db
-Konnektorok nappaliban 4db + internet és kábeltv kiállás
-Konnektorok konyhában: 6db
-Világítás helyiségenként 1-1 db
-Kábeltévé: Előkészítés
-Kapumozgató elektronika: előkészítés
-Riasztó: előkészítés
Az utcafronti kerítés színezett zsalukővel, fa lécezéssel készül.
A kivitelező korábban épített ingatlanjait komoly érdeklődés esetén szívesen megmutatjuk referenciaként.
INGYENES hitel tanácsadás, Otthon Start, CSOK Plusz ügyintézés!
BANKFÜGGETLEN hitelcentrumunk az összes elérhető bank és hitelintézet ajánlatát versenyezteti az Ön kedvéért, ráadásul DÍJMENTESEN.
- Egyedi, bankfiókban nem elérhető kamat- és díjkedvezmények
- Hitelképesség vizsgálat
- Idő, energia és pénz megtakarítás
- Teljes hivatali ügyintézés
Amennyiben hirdetésem felkeltette az érdeklődését vagy egyéb információra van szüksége hívjon bizalommal!