Nyomtatás
Amerikai konyhás: Igen; Kertkapcsolatos: Igen;
|
Eladó ikerház Mogyoród Szőlő utca |
ID szám: 85007 |
|
Az Ön üzletkötője:
 Nagy Barbara
 +36-70-490-7364
|
Főbb adatok:
| Ajánlat |
Eladó |
| Típus |
Újépítésű |
| Jelleg |
Új családi ház |
| Ár |
122.50 MFt |
|
Ingatlan adatai
| Épült |
2026 |
| Megye |
Pest megye |
| Város |
Mogyoród |
| Komfort |
Dupla komfort |
|
Épületszintek
|
1 emelet |
| Lift |
nincs |
| Hasznos alapterület |
145 nm |
| Telek területe |
240 nm |
| Lakáshoz tartozó kert |
240 nm |
| Terasz területe |
4 nm |
| Egész szobák száma |
5 db |
| Parkolás |
Udvaron-felszíni beálló |
| Emelet |
Nincs adat + Egyszerű emelet |
|
Ingatlan bemutatása
MOGYORÓD, ÚJÉPÍTÉSŰ IKERHÁZ, korszerű megoldásokkal, 5 SZOBÁVAL!
20% ÖNERŐVEL MEGVÁSÁROLHATÓ!
Eladásra kínálok Mogyoród belterületi részén, újszerű házak szomszédságában, kiváló közlekedéssel kettő ikerház felet.
Felosztásauk: földszint+emelet, mindez 142 nm alapterületen!
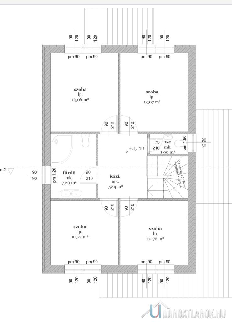
A házba érve az előszobából nyílik a háztatrtási helyiség, a fürdőszoba, egy különálló mosdó, és a 32 nm nagyásgú tágas, és világos amerikai konyhás nappali, amelyből a közel 9 nm nagyságú teraszra érkezünk.
Az emeleten 4 db hálószoba, egy fürdőszoba, és egy különálló mosdó szolgálja a kényelmet.
30-as porotherm tégla falak, melyeket 10 cm vastag ytong válaszfalak egészítenek ki!
Hőszigetelés:
A külső falak külső síkján 10 cm hőszigetelés készül. A lábazati hőszigetelés a terepcsatlakozástól számított 30 cm-ig zártcellás hőszigetelésből készül 10 cm vastagsággal.
A tetőszerkezet alá 30 cm hőszigetelés kerül.
A földszinti padozat alatt 10+5 cm lépésálló hőszigetelés készül
A fűtést hőszívattyú biztosítja, padlőfűtéses hőleadással.
Az ablakok thermo üvegek.
Mit tartalmaz még az ár? Az ár tartalmazza az elektromos kapu, klíma,
kamerarendszer és riasztórendszer kiállásait is!
Mindez 862.676. ft-os négyzetméteráron!
Fontos kiemelni, hogy amint a látványterveken is látszik egymás mellett elhelyezkedő, külön bejárattal rendelkeő ikerház, vagyis maximális az intimitás a saját területen!
Hívjon bizalommal!
|
|
Eladó ikerház Mogyoród Szőlő utca
ID szám: 85007
Amerikai konyhás: Igen; Kertkapcsolatos: Igen;
Ajánlat
Eladó
Típus
Újépítésű
Épület jellege
Új családi ház
Ár
122.50 MFt
Ingatlan adatai
| Épült |
2026 |
| Megye |
Pest megye |
| Város |
Mogyoród |
| Komfort |
Dupla komfort |
|
Épületszintek
tetőtér
pinceszint
földszint
|
1 emelet
|
| Lift |
|
| Hasznos alapterület |
145 nm |
| Telek területe |
240 nm |
| Lakáshoz tartozó kert |
240 nm |
| Terasz területe |
4 nm |
| Egész szobák száma |
5 db |
| Parkolás |
Udvaron-felszíni beálló |
| Emelet
egyszerű emelet
tetőtér
tetőtéri kétszintes
|
Nincs adat
|
Ingatlan bemutatása
MOGYORÓD, ÚJÉPÍTÉSŰ IKERHÁZ, korszerű megoldásokkal, 5 SZOBÁVAL!
20% ÖNERŐVEL MEGVÁSÁROLHATÓ!
Eladásra kínálok Mogyoród belterületi részén, újszerű házak szomszédságában, kiváló közlekedéssel kettő ikerház felet.
Felosztásauk: földszint+emelet, mindez 142 nm alapterületen!
A házba érve az előszobából nyílik a háztatrtási helyiség, a fürdőszoba, egy különálló mosdó, és a 32 nm nagyásgú tágas, és világos amerikai konyhás nappali, amelyből a közel 9 nm nagyságú teraszra érkezünk.
Az emeleten 4 db hálószoba, egy fürdőszoba, és egy különálló mosdó szolgálja a kényelmet.
30-as porotherm tégla falak, melyeket 10 cm vastag ytong válaszfalak egészítenek ki!
Hőszigetelés:
A külső falak külső síkján 10 cm hőszigetelés készül. A lábazati hőszigetelés a terepcsatlakozástól számított 30 cm-ig zártcellás hőszigetelésből készül 10 cm vastagsággal.
A tetőszerkezet alá 30 cm hőszigetelés kerül.
A földszinti padozat alatt 10+5 cm lépésálló hőszigetelés készül
A fűtést hőszívattyú biztosítja, padlőfűtéses hőleadással.
Az ablakok thermo üvegek.
Mit tartalmaz még az ár? Az ár tartalmazza az elektromos kapu, klíma,
kamerarendszer és riasztórendszer kiállásait is!
Mindez 862.676. ft-os négyzetméteráron!
Fontos kiemelni, hogy amint a látványterveken is látszik egymás mellett elhelyezkedő, külön bejárattal rendelkeő ikerház, vagyis maximális az intimitás a saját területen!
Hívjon bizalommal!