Nyomtatás
|
Amerikai konyhás: Igen; Kertkapcsolatos: Igen;
|
||
Eladó ikerház Pilisjászfalu Orgona utca |
ID szám: 82168 | |
|
Eladó ikerház Pilisjászfalu Orgona utca
ID szám: 82168
Amerikai konyhás: Igen; Kertkapcsolatos: Igen;
Ajánlat
Eladó
Típus
Újszerű
Épület jellege
Új családi ház
Ár
115.00 MFt
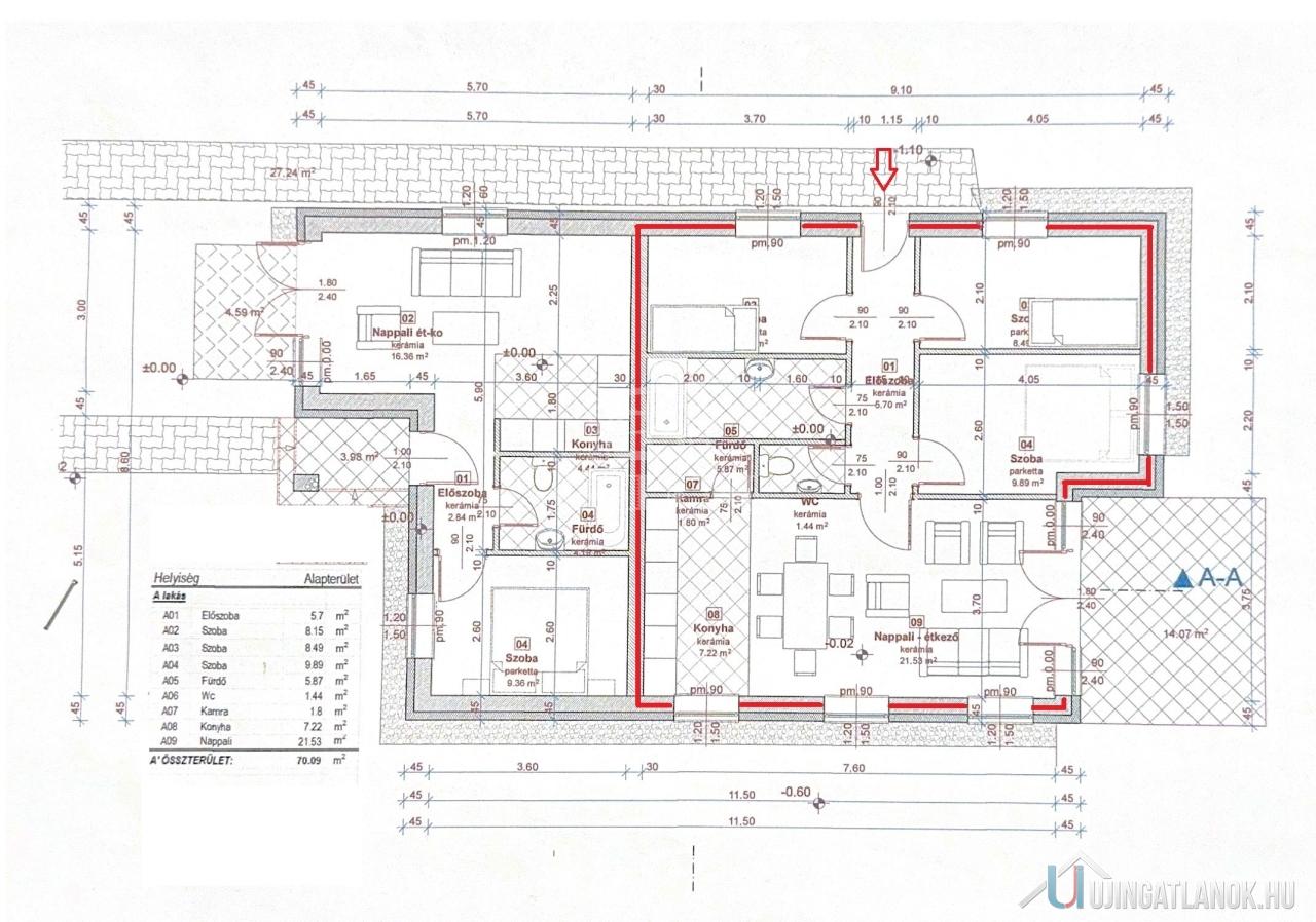
Ingatlan adatai
| Épült | 2020 |
|---|---|
| Megye | Pest megye |
| Város | Pilisjászfalu |
| Komfort | Összkomfort |
| Épületszintek tetőtér pinceszint földszint |
1 emelet
|
| Lift |
|
| Hasznos alapterület | 77 nm |
| Telek területe | 800 nm |
| Lakáshoz tartozó kert | 800 nm |
| Terasz területe | 14 nm |
| Fűtési mód | Cirkófűtés |
| Egész szobák száma | 4 db |
| Parkolás | Udvaron-felszíni beálló |
| Emelet egyszerű emelet tetőtér tetőtéri kétszintes |
Nincs adat
|
Nagyításhoz kattintson a képre
Az Ön üzletkötője:
Egri Attila
+36-30-442-1415


