Nyomtatás
Amerikai konyhás: Igen; Kertkapcsolatos: Igen;
|
Eladó ikerház Szeged Tápé kedvelt részén |
ID szám: 83788 |
|
Az Ön üzletkötője:
 Tejfel Éva
 +36-70-306-5123
|
Főbb adatok:
| Ajánlat |
Eladó |
| Típus |
Újépítésű |
| Jelleg |
Új családi ház |
| Ár |
142.90 MFt |
|
Ingatlan adatai
| Épült |
2025 |
| Megye |
Csongrád megye |
| Város |
Szeged |
| Komfort |
Összkomfort |
|
Épületszintek
|
1 emelet |
| Lift |
nincs |
| Hasznos alapterület |
135 nm |
| Telek területe |
600 nm |
| Lakáshoz tartozó kert |
600 nm |
| Erkély területe |
6 nm |
| Terasz területe |
30 nm |
| Egész szobák száma |
5 db |
| Parkolás |
Teremgarázs-garázs |
| Emelet |
Nincs adat + Egyszerű emelet |
|
Ingatlan bemutatása
IKERHÁZ ELADÓ SZEGED TÁPÉN SZERKEZETKÉSZ ÁLLAPOTBAN
Szeged egyik kedvelt városrészében, Tápén kínálok megvételre egy kétlakásos, tégla építésű ikerház egyik felét, amely a modern otthonok minden elvárásának megfelel.
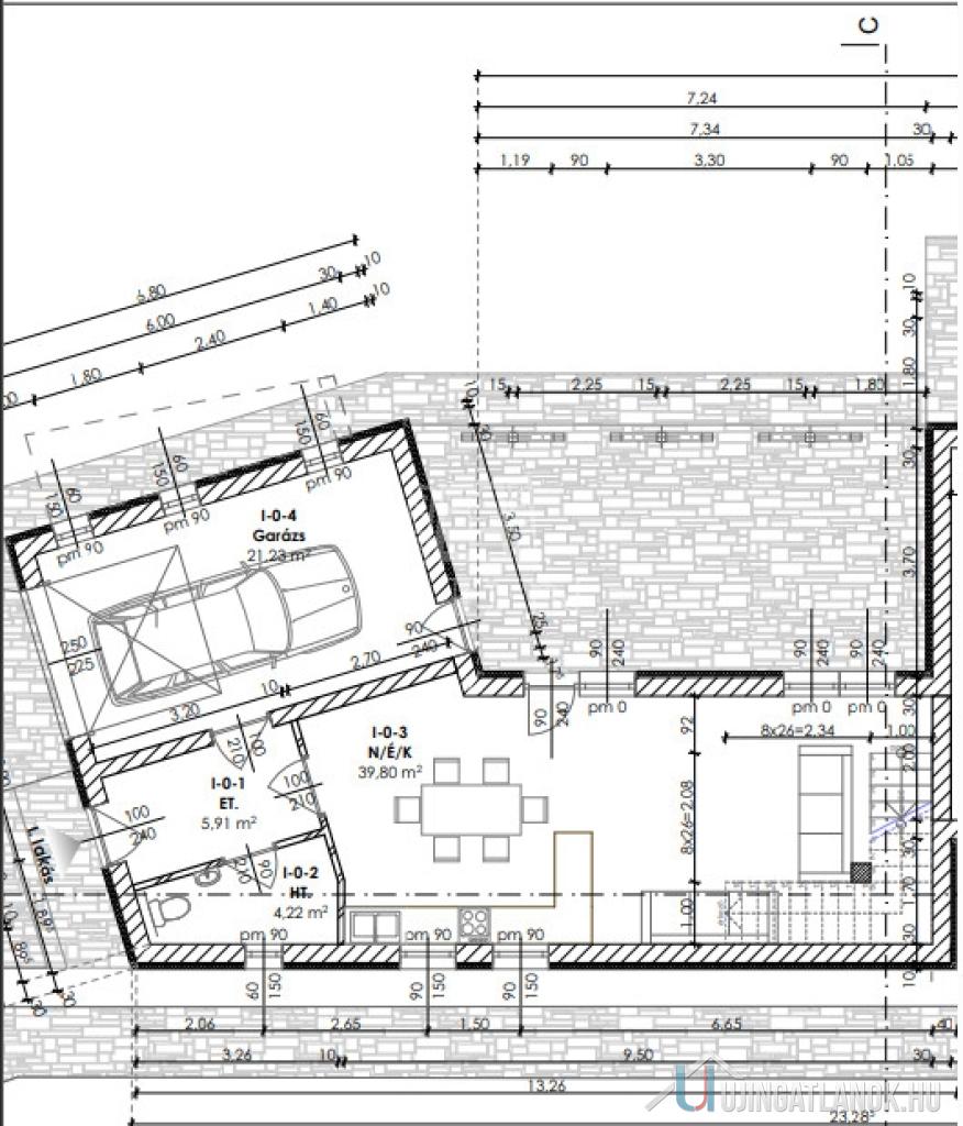
Az ingatlan nettó 135,33m², alapterületű, melyet tovább növel a 6 m²-es erkély és a 30 m²-es terasz, ideális teret biztosítva a pihenéshez és a családi együttlétekhez. Az alaprajz a hirdetés mellékleteként elérhető.
Az ingatlan szerkezetkész állapotban kerül értékesítésre, így a végső kialakítás teljes mértékben az új tulajdonos ízlését és igényeit tükrözheti.
Kiemelkedő műszaki tartalom
30 cm PTH tégla falazat
12 cm külső hőszigetelés
Prémium minőségű, 3 rétegű, 6 légkamrás nyílászárók
kívül dió, belül fehér kivitelben
Padlófűtés hőszivattyús rendszerrel
Helyiségenként szabályozható hűtés hőszivattyúval
H tarifás áram
Szerkezetkész állapot részletei
Glettelt falak, festésre előkészítve
Komplett villanyszerelés (szerelvények nélkül)
Napelem előkészítés
PANASONIC hőszivattyús fűtés–hűtés rendszer
Elektromos árnyékolástechnika: redőnyök és zsalúziák
Térkövezett udvar
Az ár nem tartalmazza
Beltéri ajtók és kilincsek
Kapcsolók, lámpák, aljzatok
Hideg- és melegburkolatok
Szaniterek
Ez az ingatlan ideális választás azok számára, akik modern, energiatakarékos és hosszú távon értékálló otthont keresnek Szeged egyik jól megközelíthető, mégis nyugodt környezetében.
További információért és megtekintésért keressen bizalommal!
|
|
Eladó ikerház Szeged Tápé kedvelt részén
ID szám: 83788
Amerikai konyhás: Igen; Kertkapcsolatos: Igen;
Ajánlat
Eladó
Típus
Újépítésű
Épület jellege
Új családi ház
Ár
142.90 MFt
Ingatlan adatai
| Épült |
2025 |
| Megye |
Csongrád megye |
| Város |
Szeged |
| Komfort |
Összkomfort |
|
Épületszintek
tetőtér
pinceszint
földszint
|
1 emelet
|
| Lift |
|
| Hasznos alapterület |
135 nm |
| Telek területe |
600 nm |
| Lakáshoz tartozó kert |
600 nm |
| Erkély területe |
6 nm |
| Terasz területe |
30 nm |
| Egész szobák száma |
5 db |
| Parkolás |
Teremgarázs-garázs |
| Emelet
egyszerű emelet
tetőtér
tetőtéri kétszintes
|
Nincs adat
|
Ingatlan bemutatása
IKERHÁZ ELADÓ SZEGED TÁPÉN SZERKEZETKÉSZ ÁLLAPOTBAN
Szeged egyik kedvelt városrészében, Tápén kínálok megvételre egy kétlakásos, tégla építésű ikerház egyik felét, amely a modern otthonok minden elvárásának megfelel.
Az ingatlan nettó 135,33m², alapterületű, melyet tovább növel a 6 m²-es erkély és a 30 m²-es terasz, ideális teret biztosítva a pihenéshez és a családi együttlétekhez. Az alaprajz a hirdetés mellékleteként elérhető.
Az ingatlan szerkezetkész állapotban kerül értékesítésre, így a végső kialakítás teljes mértékben az új tulajdonos ízlését és igényeit tükrözheti.
Kiemelkedő műszaki tartalom
30 cm PTH tégla falazat
12 cm külső hőszigetelés
Prémium minőségű, 3 rétegű, 6 légkamrás nyílászárók
kívül dió, belül fehér kivitelben
Padlófűtés hőszivattyús rendszerrel
Helyiségenként szabályozható hűtés hőszivattyúval
H tarifás áram
Szerkezetkész állapot részletei
Glettelt falak, festésre előkészítve
Komplett villanyszerelés (szerelvények nélkül)
Napelem előkészítés
PANASONIC hőszivattyús fűtés–hűtés rendszer
Elektromos árnyékolástechnika: redőnyök és zsalúziák
Térkövezett udvar
Az ár nem tartalmazza
Beltéri ajtók és kilincsek
Kapcsolók, lámpák, aljzatok
Hideg- és melegburkolatok
Szaniterek
Ez az ingatlan ideális választás azok számára, akik modern, energiatakarékos és hosszú távon értékálló otthont keresnek Szeged egyik jól megközelíthető, mégis nyugodt környezetében.
További információért és megtekintésért keressen bizalommal!