Nyomtatás
Amerikai konyhás: Igen; Kertkapcsolatos: Igen;

Eladó ikerház Szigethalom Pest megye

ID szám: 83697

Az Ön üzletkötője:

Csík Zsolt
+36-30-641-6167

Főbb adatok:

Ajánlat Eladó
Típus Újépítésű
Jelleg Új családi ház
Ár 89 MFt

Ingatlan adatai

Épült 2025
Megye Pest megye
Város Szigethalom
Komfort Dupla komfort
Épületszintek 1 emelet
Lift nincs
Hasznos alapterület 119 nm
Telek területe 350 nm
Lakáshoz tartozó kert 350 nm
Terasz területe 23 nm
Egész szobák száma 4 db
Parkolás Udvaron-felszíni beálló
Emelet Nincs adat + Egyszerű emelet

Ingatlan bemutatása

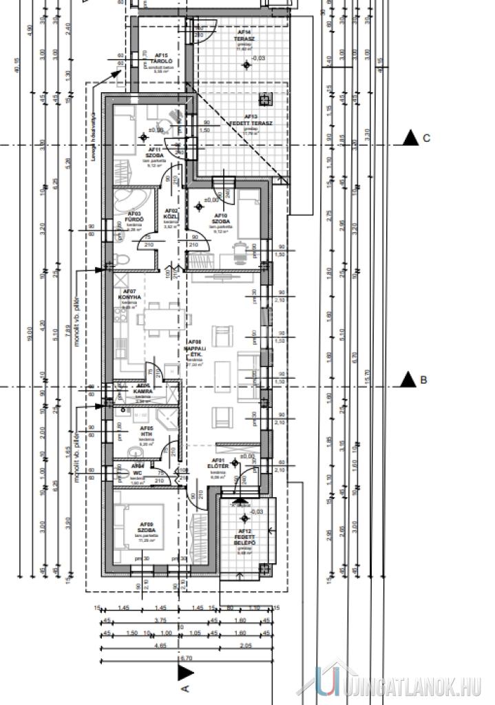
Szigethalom csendes aszfaltos utcájában a szomszédtól fedett kerti tárolóval elkülönített ikerház utcafronti lakása eladó. KIVÁLÓ KIVITELEZŐ, VERSENYKÉPES ÁRON, KIVÁLÓ OTTHONT AJÁNL ÖNNEK! CSOK +, H-TARIFA, 2026 06. havi ÁTADÁSSAL!! Az otthon 85,64 négyzetméteres, ehhez + kerti tároló 5,55 m2 és 29 m2 terasz kapcsolódik. Helyiségei: nappali/étkező 27,00 m2, szoba 11,25 m2, szoba 9,12 m2, szoba 9,12 m2, konyha 5,25 m2, fürdő szoba 5,28 m2, közlekedő 3,52 m2, előtér 6,06 m2, kamra 2,34 m2, wc 1,50 m2, hth 5,20 m2, fedett belépő 5,48 m2 fedett terasz 11,79 m2, terasz 11,40 m2, tároló 5,55 m2. A telek ideális 420 négyzetméteres, a szomszédot csak akkor látjuk és halljuk ha mi is szeretnénk, a teraszon zavartalanul pihenhetünk. Az otthon beton alapra, tégla falazattal, fa födémmel, beton cserép fedéssel épül meg. Az épület külső nyílászárói (ablakok) műanyag szerkezetűek 5 légkamrás 3 rétegű hőszigetelt üvegezéssel. A bejárati biztonsági ajtó több ponton záródó. A homlokzaton 15 cm Dryvit rendszerű, a födémben 25 cm fújt hőhíd mentes, míg a padlóban 10 cm lépésálló nikecell szigetelés kerül beépítésre. Fűtése/ hűtése, meleg vízellátása hőszivattyúval (levegő) történik padlófűtéssel. Burkolatok választhatóak keretösszegig, felette a vevő kompenzál. Szaniterek keretösszegig választhatók. A kert alap kertrendezéssel kerül átadásra. Az alaprajz változtatható, burkolatok választhatóak, a kivitelező igyekszik minden vásárlói igényt kielégíteni. Az ikerfelek külön mérőórával, külön helyrajzi számmal rendelkeznek, társas házi alapító okirat készül. Első "A" lakás 350 m2 kert, 75 m2 ára: 89.000.000 ft Hátsó "B" lakás 420 m2 kert, 85,64 m2 ára: 89.000.000 ft Várom megtisztelő hívását! FINANSZÍROZÁS: Nálunk mindent egy helyen intézhet: - hivatalos ingatlanközvetítés; - szakszerű jogi képviselet; - profi CSOK-PLUSZ, és hitelügyintézés: 16 Bank, több mint 100 konstrukció; A részletes adatvédelmi tájékoztató folyamatosan elérhető a gdn adatvédelmi oldalon.

Eladó ikerház Szigethalom Pest megye

ID szám: 83697

Amerikai konyhás: Igen; Kertkapcsolatos: Igen;

Ajánlat

Eladó

Típus

Újépítésű

Épület jellege

Új családi ház

Ár

89 MFt

Ingatlan adatai

Épült 2025
Megye Pest megye
Város Szigethalom
Komfort Dupla komfort
Épületszintek tetőtér pinceszint földszint 1 emelet nincs nincs nincs
Lift nincs
Hasznos alapterület 119 nm
Telek területe 350 nm
Lakáshoz tartozó kert 350 nm
Terasz területe 23 nm
Egész szobák száma 4 db
Parkolás Udvaron-felszíni beálló
Emelet egyszerű emelet tetőtér tetőtéri kétszintes Nincs adat van nincs nincs
Nagyításhoz kattintson a képre

Az Ön üzletkötője:

Csík Zsolt
+36-30-641-6167
Üzenet az üzletkötőnek Ingatlan ajánlása Nyomtatási kép
Megosztás Facebookon Megosztás Twitteren

Ingatlan bemutatása

Szigethalom csendes aszfaltos utcájában a szomszédtól fedett kerti tárolóval elkülönített ikerház utcafronti lakása eladó. KIVÁLÓ KIVITELEZŐ, VERSENYKÉPES ÁRON, KIVÁLÓ OTTHONT AJÁNL ÖNNEK! CSOK +, H-TARIFA, 2026 06. havi ÁTADÁSSAL!! Az otthon 85,64 négyzetméteres, ehhez + kerti tároló 5,55 m2 és 29 m2 terasz kapcsolódik. Helyiségei: nappali/étkező 27,00 m2, szoba 11,25 m2, szoba 9,12 m2, szoba 9,12 m2, konyha 5,25 m2, fürdő szoba 5,28 m2, közlekedő 3,52 m2, előtér 6,06 m2, kamra 2,34 m2, wc 1,50 m2, hth 5,20 m2, fedett belépő 5,48 m2 fedett terasz 11,79 m2, terasz 11,40 m2, tároló 5,55 m2. A telek ideális 420 négyzetméteres, a szomszédot csak akkor látjuk és halljuk ha mi is szeretnénk, a teraszon zavartalanul pihenhetünk. Az otthon beton alapra, tégla falazattal, fa födémmel, beton cserép fedéssel épül meg. Az épület külső nyílászárói (ablakok) műanyag szerkezetűek 5 légkamrás 3 rétegű hőszigetelt üvegezéssel. A bejárati biztonsági ajtó több ponton záródó. A homlokzaton 15 cm Dryvit rendszerű, a födémben 25 cm fújt hőhíd mentes, míg a padlóban 10 cm lépésálló nikecell szigetelés kerül beépítésre. Fűtése/ hűtése, meleg vízellátása hőszivattyúval (levegő) történik padlófűtéssel. Burkolatok választhatóak keretösszegig, felette a vevő kompenzál. Szaniterek keretösszegig választhatók. A kert alap kertrendezéssel kerül átadásra. Az alaprajz változtatható, burkolatok választhatóak, a kivitelező igyekszik minden vásárlói igényt kielégíteni. Az ikerfelek külön mérőórával, külön helyrajzi számmal rendelkeznek, társas házi alapító okirat készül. Első "A" lakás 350 m2 kert, 75 m2 ára: 89.000.000 ft Hátsó "B" lakás 420 m2 kert, 85,64 m2 ára: 89.000.000 ft Várom megtisztelő hívását! FINANSZÍROZÁS: Nálunk mindent egy helyen intézhet: - hivatalos ingatlanközvetítés; - szakszerű jogi képviselet; - profi CSOK-PLUSZ, és hitelügyintézés: 16 Bank, több mint 100 konstrukció; A részletes adatvédelmi tájékoztató folyamatosan elérhető a gdn adatvédelmi oldalon.

Megosztás Facebookon Megosztás Twitteren
www.ujingatlanok.hu - QR kód

Linkajánló

 

LinkBank