Nyomtatás
|
Amerikai konyhás: Igen; Kertkapcsolatos: Igen;
|
||
Eladó ikerház Szigetszentmárton Egyszintes Újépítésű, Garázzsal! |
ID szám: 84988 | |
|
Eladó ikerház Szigetszentmárton Egyszintes Újépítésű, Garázzsal!
ID szám: 84988
Amerikai konyhás: Igen; Kertkapcsolatos: Igen;
Ajánlat
Eladó
Típus
Újépítésű
Épület jellege
Új családi ház
Ár
93 MFt
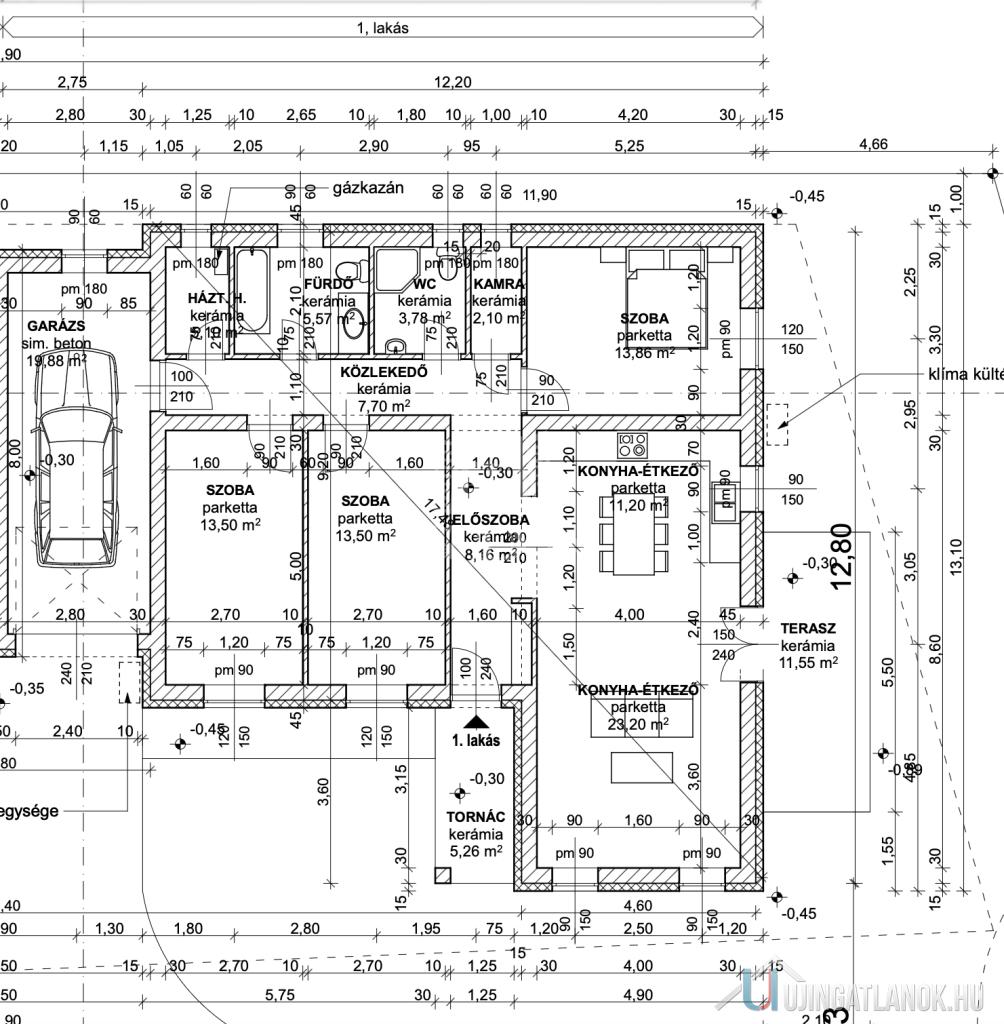
Ingatlan adatai
| Épült | 2025 |
|---|---|
| Megye | Pest megye |
| Város | Szigetszentmárton |
| Komfort | Összkomfort |
| Épületszintek tetőtér pinceszint földszint |
1 emelet
|
| Lift |
|
| Hasznos alapterület | 106 nm |
| Telek területe | 350 nm |
| Lakáshoz tartozó kert | 350 nm |
| Terasz területe | 12 nm |
| Fűtési mód | Cirkófűtés |
| Egész szobák száma | 4 db |
| Parkolás | Teremgarázs-garázs |
| Emelet egyszerű emelet tetőtér tetőtéri kétszintes |
Nincs adat
|
Nagyításhoz kattintson a képre
Az Ön üzletkötője:
Nyegrutz Tibor
+36-30-250-4987


