Nyomtatás
Amerikai konyhás: Igen; Kertkapcsolatos: Igen;
|
Eladó ikerház Tápiószecső Dobó István utca |
ID szám: 82015 |
|
Az Ön üzletkötője:
 Horváth Péter
 +36-70-606-2990
|
Főbb adatok:
| Ajánlat |
Eladó |
| Típus |
Újépítésű |
| Jelleg |
Új családi ház |
| Ár |
59.90 MFt |
|
Ingatlan adatai
| Épült |
2025 |
| Megye |
Pest megye |
| Város |
Tápiószecső |
| Komfort |
Összkomfort |
|
Épületszintek
|
1 emelet |
| Lift |
nincs |
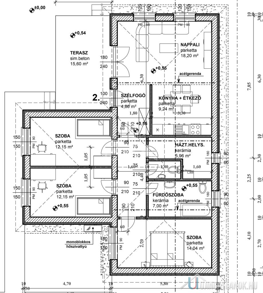
| Hasznos alapterület |
92 nm |
| Telek területe |
400 nm |
| Lakáshoz tartozó kert |
400 nm |
| Terasz területe |
16 nm |
| Egész szobák száma |
4 db |
| Parkolás |
Teremgarázs-garázs |
| Emelet |
Nincs adat + Egyszerű emelet |
|
Ingatlan bemutatása
Tápiószecsőn a Dobó István utcában 809 m2-es telkeken, Sülysáp hatáűrától 150 méterre, panorámás kilátással, újonnan épülő nettó 92,3 m2 nettó hasznos lakótérrel rendelkező, kulcsrakész ikerházfelek eladóak
Az utcafronti ingatlan elkelt.
A fedett gépkocsibeálló az utcafronti ingatlanhoz tartozik.
Az ingatlanok 30-as Nútféderes téglából épülnek, fa födémmel.
A tető héjazata antracit betoncserép lesz, a homlokzatok 10cm Grafitos, a padló 10cm lépésálló, a födém 25cm ásványgyapot szigeteléssel lesz ellátva.
A külső nyílászárók 6 légkamrás háromrétegű üveggel szerelt műanyag thermók lesznek.
A fűtést hőszivattyús rendszer fogja ellátni, padlófűtéssel.
Műszaki tartalom:
-Csempe, járólap 3000 ft/m²
-Meleg burkolat 3000 Ft/m²
-Fürdőkád: 40.000.- Ft
-Beltéri ajtók 32.000.- Ft. /db
-Csaptelepek: 15.000.- Ft. /db
Magasabb árú választás is lehetséges a különbség finanszírozásával.
Elektromos kiépítés:
-Konnektorok szobákban: 3 db
-Konnektorok nappaliban 4db + internet és kábeltv kiállás
-Konnektorok konyhában: 6db
-Világítás helyiségenként 1-1 db
-Kábeltévé: Előkészítés
-Kapumozgató elektronika: előkészítés
-Riasztó: előkészítés
Az utcafronti kerítés színezett zsalukővel, fa lécezéssel készül.
A kivitelező Kókán számos ingatlant épített, melyeket már értékesítettünk. Komoly érdeklődés esetén szívesen megmutatjuk őket referenciaként.
INGYENES hitel tanácsadás, CSOK Plusz ügyintézés!
BANKFÜGGETLEN hitelcentrumunk az összes elérhető bank és hitelintézet ajánlatát versenyezteti az Ön kedvéért, ráadásul DÍJMENTESEN.
- Egyedi, bankfiókban nem elérhető kamat- és díjkedvezmények
- Hitelképesség vizsgálat
- Idő, energia és pénz megtakarítás
- Teljes hivatali ügyintézés
Amennyiben hirdetésem felkeltette az érdeklődését vagy egyéb információra van szüksége hívjon bizalommal!
|
|
Eladó ikerház Tápiószecső Dobó István utca
ID szám: 82015
Amerikai konyhás: Igen; Kertkapcsolatos: Igen;
Ajánlat
Eladó
Típus
Újépítésű
Épület jellege
Új családi ház
Ár
59.90 MFt
Ingatlan adatai
| Épült |
2025 |
| Megye |
Pest megye |
| Város |
Tápiószecső |
| Komfort |
Összkomfort |
|
Épületszintek
tetőtér
pinceszint
földszint
|
1 emelet
|
| Lift |
|
| Hasznos alapterület |
92 nm |
| Telek területe |
400 nm |
| Lakáshoz tartozó kert |
400 nm |
| Terasz területe |
16 nm |
| Egész szobák száma |
4 db |
| Parkolás |
Teremgarázs-garázs |
| Emelet
egyszerű emelet
tetőtér
tetőtéri kétszintes
|
Nincs adat
|
Ingatlan bemutatása
Tápiószecsőn a Dobó István utcában 809 m2-es telkeken, Sülysáp hatáűrától 150 méterre, panorámás kilátással, újonnan épülő nettó 92,3 m2 nettó hasznos lakótérrel rendelkező, kulcsrakész ikerházfelek eladóak
Az utcafronti ingatlan elkelt.
A fedett gépkocsibeálló az utcafronti ingatlanhoz tartozik.
Az ingatlanok 30-as Nútféderes téglából épülnek, fa födémmel.
A tető héjazata antracit betoncserép lesz, a homlokzatok 10cm Grafitos, a padló 10cm lépésálló, a födém 25cm ásványgyapot szigeteléssel lesz ellátva.
A külső nyílászárók 6 légkamrás háromrétegű üveggel szerelt műanyag thermók lesznek.
A fűtést hőszivattyús rendszer fogja ellátni, padlófűtéssel.
Műszaki tartalom:
-Csempe, járólap 3000 ft/m²
-Meleg burkolat 3000 Ft/m²
-Fürdőkád: 40.000.- Ft
-Beltéri ajtók 32.000.- Ft. /db
-Csaptelepek: 15.000.- Ft. /db
Magasabb árú választás is lehetséges a különbség finanszírozásával.
Elektromos kiépítés:
-Konnektorok szobákban: 3 db
-Konnektorok nappaliban 4db + internet és kábeltv kiállás
-Konnektorok konyhában: 6db
-Világítás helyiségenként 1-1 db
-Kábeltévé: Előkészítés
-Kapumozgató elektronika: előkészítés
-Riasztó: előkészítés
Az utcafronti kerítés színezett zsalukővel, fa lécezéssel készül.
A kivitelező Kókán számos ingatlant épített, melyeket már értékesítettünk. Komoly érdeklődés esetén szívesen megmutatjuk őket referenciaként.
INGYENES hitel tanácsadás, CSOK Plusz ügyintézés!
BANKFÜGGETLEN hitelcentrumunk az összes elérhető bank és hitelintézet ajánlatát versenyezteti az Ön kedvéért, ráadásul DÍJMENTESEN.
- Egyedi, bankfiókban nem elérhető kamat- és díjkedvezmények
- Hitelképesség vizsgálat
- Idő, energia és pénz megtakarítás
- Teljes hivatali ügyintézés
Amennyiben hirdetésem felkeltette az érdeklődését vagy egyéb információra van szüksége hívjon bizalommal!