Nyomtatás
Amerikai konyhás: Igen; Kertkapcsolatos: Igen;
|
Eladó ikerház Vasszécseny Nyugodt környezetben |
ID szám: 84954 |
|
Az Ön üzletkötője:
 Berkéné Szűcs Judit
 +36-70-575-9155
|
Főbb adatok:
| Ajánlat |
Eladó |
| Típus |
Újépítésű |
| Jelleg |
Új családi ház |
| Ár |
79 MFt |
|
Ingatlan adatai
| Épült |
2026 |
| Megye |
Vas megye |
| Város |
Vasszécseny |
| Komfort |
Összkomfort |
| Fűtési mód |
Cirkófűtés |
|
Épületszintek
|
1 emelet |
| Lift |
nincs |
| Hasznos alapterület |
86 nm |
| Telek területe |
330 nm |
| Lakáshoz tartozó kert |
330 nm |
| Terasz területe |
16 nm |
| Fűtési mód |
Cirkófűtés |
| Egész szobák száma |
4 db |
| Parkolás |
Udvaron-felszíni beálló |
| Emelet |
Nincs adat + Egyszerű emelet |
|
Ingatlan bemutatása
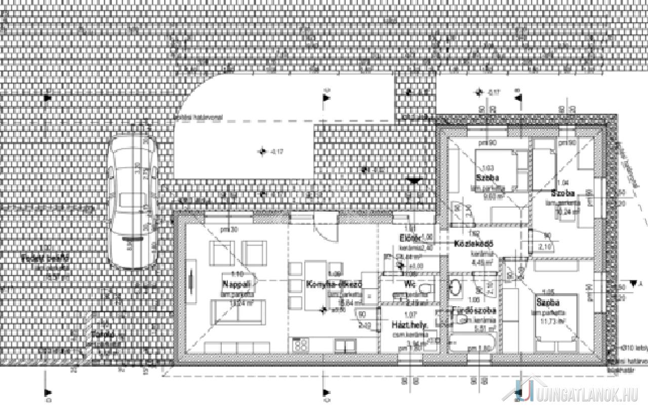
Dinamikusan fejlődő településen Vasszécsenyben, nyugodt környéken osztott telken családiházak eladók. A jól átgondolt tervezésnek köszönhetően a házak fedett gépkocsibeállókkal érintkeznek. Az ingatlanok magas műszaki tartalommal épülnek. A sávalapra épülő lakóegységek Porotherm téglából készülnek, vakolt felületekkel. A tető héjazata Bramac Római Novo cseréppel történik. Három rétegű nyílászárói fokozottan hang-és hőszigetreltek, motoros aluredőnyökkel felszereltek. Homlokzatára Austrotherm EPS hőszigetelő rendszer kerül, 15 cm vastagsággal. Födémere 30 cm szigetelést terveztek. Fűtéséről, meleg vízellátásáról kondenzációs gázkazán gondoskodik, padlófűtéses hőleadással. Az ingatlan nappaliában hűtő-fűtő klíma gondoskodik a kellemes hőmérsékletről. Elektromos ellátottsága 3x25 Amperrel történik. Az ingatlanokat vízlágyítókkal is felszerelik. A házak 86 m2 nagyságúak, 15 m2 terasszal. Három hálószoba + nappali kialakításúak. Az utcafronti házhoz 330 m2 saját kert tartozik. A hátsó ingatlan 755 m2-es telekkel rendelkezik. Térkövezés bizonyos hányada, tereprendezés a vételár részét képezi. A Beruházó rugalmasságának köszönhetően belső módosításokra van lehetőség.
|
|
Eladó ikerház Vasszécseny Nyugodt környezetben
ID szám: 84954
Amerikai konyhás: Igen; Kertkapcsolatos: Igen;
Ajánlat
Eladó
Típus
Újépítésű
Épület jellege
Új családi ház
Ár
79 MFt
Ingatlan adatai
| Épült |
2026 |
| Megye |
Vas megye |
| Város |
Vasszécseny |
| Komfort |
Összkomfort |
|
Épületszintek
tetőtér
pinceszint
földszint
|
1 emelet
|
| Lift |
|
| Hasznos alapterület |
86 nm |
| Telek területe |
330 nm |
| Lakáshoz tartozó kert |
330 nm |
| Terasz területe |
16 nm |
| Fűtési mód |
Cirkófűtés |
| Egész szobák száma |
4 db |
| Parkolás |
Udvaron-felszíni beálló |
| Emelet
egyszerű emelet
tetőtér
tetőtéri kétszintes
|
Nincs adat
|
Ingatlan bemutatása
Dinamikusan fejlődő településen Vasszécsenyben, nyugodt környéken osztott telken családiházak eladók. A jól átgondolt tervezésnek köszönhetően a házak fedett gépkocsibeállókkal érintkeznek. Az ingatlanok magas műszaki tartalommal épülnek. A sávalapra épülő lakóegységek Porotherm téglából készülnek, vakolt felületekkel. A tető héjazata Bramac Római Novo cseréppel történik. Három rétegű nyílászárói fokozottan hang-és hőszigetreltek, motoros aluredőnyökkel felszereltek. Homlokzatára Austrotherm EPS hőszigetelő rendszer kerül, 15 cm vastagsággal. Födémere 30 cm szigetelést terveztek. Fűtéséről, meleg vízellátásáról kondenzációs gázkazán gondoskodik, padlófűtéses hőleadással. Az ingatlan nappaliában hűtő-fűtő klíma gondoskodik a kellemes hőmérsékletről. Elektromos ellátottsága 3x25 Amperrel történik. Az ingatlanokat vízlágyítókkal is felszerelik. A házak 86 m2 nagyságúak, 15 m2 terasszal. Három hálószoba + nappali kialakításúak. Az utcafronti házhoz 330 m2 saját kert tartozik. A hátsó ingatlan 755 m2-es telekkel rendelkezik. Térkövezés bizonyos hányada, tereprendezés a vételár részét képezi. A Beruházó rugalmasságának köszönhetően belső módosításokra van lehetőség.