Nyomtatás
Kisállat vihető: Igen; Bútorozott: Nem; Gépesített: Igen; Amerikai konyhás: Igen; Kertkapcsolatos: Igen;
|
Kiadó ikerház Tura Csendes utcában |
ID szám: 85147 |
|
Az Ön üzletkötője:
 Suba Sándor
 +36-30-556-5226
|
Főbb adatok:
| Ajánlat |
Kiadó |
| Típus |
Újszerű |
| Jelleg |
Új családi ház |
| Bérleti díj |
250 Ezer Ft/hó + rezsi |
|
Ingatlan adatai
| Épült |
2026 |
| Megye |
Pest megye |
| Város |
Tura |
| Komfort |
Összkomfort |
|
Épületszintek
|
1 emelet |
| Lift |
nincs |
| Hasznos alapterület |
140 nm |
| Telek területe |
630 nm |
| Lakáshoz tartozó kert |
630 nm |
| Terasz területe |
20 nm |
| Egész szobák száma |
3 db |
| Parkolás |
Udvaron-felszíni beálló |
| Emelet |
Nincs adat + Egyszerű emelet |
|
Ingatlan bemutatása
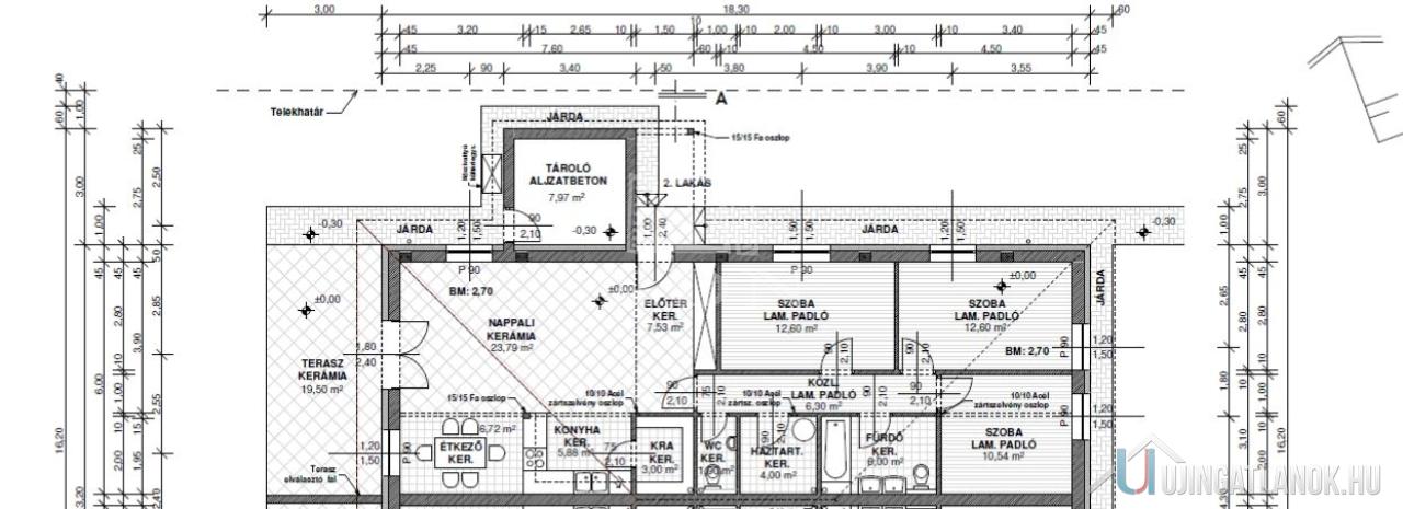
Kiadásra kínálok Tura csendes utcájában egy újépítésű ikerház felet, mely nettó 102,86 nm, bruttó 140,33 nm, 3 szobás és 630 nm-es saját telekrésszel rendelkezik.
Magas minőségű anyagok felhasználásával készült, szinte 0 energiaigényű, H-tarifás mérővel, hőszivattyú + klímával ellátott, padlófűtéses hőleadással.
Kérem, olvassák el a bérbevételi feltételek!
- legalább fél éves igazolható munkaviszony
- erkölcsi bizonyítvány
- munkáltatói igazolás
- bérleti díj: 250.000 Ft/hó
- rezsi költség: számla alapján
- kaució: min. 2 havi kaukció
- bérleti szerződés: határozatlan idejű, de minimum 1 év!
Kizárólag közjegyző által írt bérleti szerződés, mely a bérlő költsége!
Műszaki és egyégg információk:
Alapterület: 102,86 nm lakóterület
Fűtés: padlófűtés hőszivattyúról + klíma
Melegvíz: hőszivattyú
Felszereltség:
Gépesített konyha
tárolórendszerrel ellátott kamra
Helyiségek:
3 db hálószoba
konyha+étkező+nappali
vendég WC
előtér
gépészeti/háztartási helyiség
kamra
fürdő
terasz
További információkért és megtekintési időpontért keressen bizalommal! S.S.
|
|
Kiadó ikerház Tura Csendes utcában
ID szám: 85147
Kisállat vihető: Igen; Bútorozott: Nem; Gépesített: Igen; Amerikai konyhás: Igen; Kertkapcsolatos: Igen;
Ajánlat
Kiadó
Típus
Újszerű
Épület jellege
Új családi ház
Bérleti díj
250 Ezer Ft/hó + rezsi
Ingatlan adatai
| Épült |
2026 |
| Megye |
Pest megye |
| Város |
Tura |
| Komfort |
Összkomfort |
|
Épületszintek
tetőtér
pinceszint
földszint
|
1 emelet
|
| Lift |
|
| Hasznos alapterület |
140 nm |
| Telek területe |
630 nm |
| Lakáshoz tartozó kert |
630 nm |
| Terasz területe |
20 nm |
| Egész szobák száma |
3 db |
| Parkolás |
Udvaron-felszíni beálló |
| Emelet
egyszerű emelet
tetőtér
tetőtéri kétszintes
|
Nincs adat
|
Ingatlan bemutatása
Kiadásra kínálok Tura csendes utcájában egy újépítésű ikerház felet, mely nettó 102,86 nm, bruttó 140,33 nm, 3 szobás és 630 nm-es saját telekrésszel rendelkezik.
Magas minőségű anyagok felhasználásával készült, szinte 0 energiaigényű, H-tarifás mérővel, hőszivattyú + klímával ellátott, padlófűtéses hőleadással.
Kérem, olvassák el a bérbevételi feltételek!
- legalább fél éves igazolható munkaviszony
- erkölcsi bizonyítvány
- munkáltatói igazolás
- bérleti díj: 250.000 Ft/hó
- rezsi költség: számla alapján
- kaució: min. 2 havi kaukció
- bérleti szerződés: határozatlan idejű, de minimum 1 év!
Kizárólag közjegyző által írt bérleti szerződés, mely a bérlő költsége!
Műszaki és egyégg információk:
Alapterület: 102,86 nm lakóterület
Fűtés: padlófűtés hőszivattyúról + klíma
Melegvíz: hőszivattyú
Felszereltség:
Gépesített konyha
tárolórendszerrel ellátott kamra
Helyiségek:
3 db hálószoba
konyha+étkező+nappali
vendég WC
előtér
gépészeti/háztartási helyiség
kamra
fürdő
terasz
További információkért és megtekintési időpontért keressen bizalommal! S.S.