Nyomtatás
|
Amerikai konyhás: Igen; Kertkapcsolatos: Igen;
|
||
Eladó lakás Budapest, XI. kerület Vasút utca |
ID szám: 84980 | |
|
Eladó lakás Budapest, XI. kerület Vasút utca
ID szám: 84980
Amerikai konyhás: Igen; Kertkapcsolatos: Igen;
Ajánlat
Eladó
Típus
Újszerű
Épület jellege
Új lakás
Ár
87.31 MFt
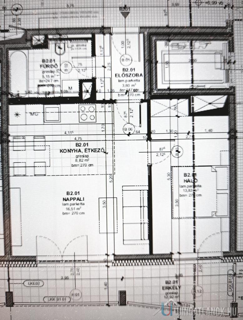
Ingatlan adatai
| Épült | 2025 |
|---|---|
| Kerület | Budapest XI. kerület |
| Övezet | Kelenföld |
| Komfort | Összkomfort |
| Épületszintek tetőtér pinceszint földszint |
4 emelet
|
| Lift |
|
| Hasznos alapterület | 55 nm |
| Terasz területe | 13 nm |
| Fűtési mód | Házfűtés egyedi méréssel |
| Egész szobák száma | 2 db |
| Parkolás | Teremgarázs-garázs |
| Emelet egyszerű emelet tetőtér tetőtéri kétszintes |
2. emelet
|
Nagyításhoz kattintson a képre
Az Ön üzletkötője:
Szabó-Szamosközi Beáta
+36-20-555-3029


