Nyomtatás
|
Amerikai konyhás: Igen; Kertkapcsolatos: Igen; Közös költség összege: 40000 Ft
|
||
Eladó lakás Budapest, XIII. kerület Klapka utca |
ID szám: 84131 | |
|
Eladó lakás Budapest, XIII. kerület Klapka utca
ID szám: 84131
Amerikai konyhás: Igen; Kertkapcsolatos: Igen; Közös költség összege: 40000 Ft
Ajánlat
Eladó
Típus
Újépítésű
Épület jellege
Új lakás
Ár
100 MFt
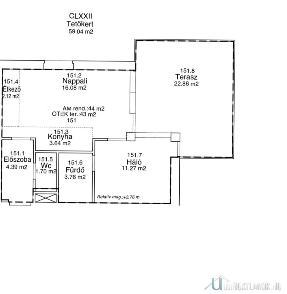
Ingatlan adatai
| Épült | 2020 |
|---|---|
| Kerület | Budapest XIII. kerület |
| Komfort | Összkomfort |
| Épületszintek tetőtér pinceszint földszint |
8 emelet
|
| Lift |
|
| Hasznos alapterület | 44 nm |
| Terasz területe | 23 nm |
| Fűtési mód | Házfűtés egyedi méréssel |
| Egész szobák száma | 2 db |
| Parkolás | Udvaron-felszíni beálló |
| Emelet egyszerű emelet tetőtér tetőtéri kétszintes |
1. emelet
|
Nagyításhoz kattintson a képre
Az Ön üzletkötője:
Dániel Mónika
+36-20-524-0257


